Contenuti trattati
Unire due appartamenti e trasformarli in un’unica abitazione è in qualche modo una sfida doppia. Ancor di più se i due immobili sono su piani diversi da collegare, e se ce n’è anche un terzo livello con il terrazzo da rendere accessibile dalla casa. Vi raccontiamo in questo articolo alcuni degli interventi più salienti del progetto di ristrutturazione. Diamo la parola all’architetto Clara Bona che, dopo averci mostrato un loft per una piccola famiglia e il restyling di un bilocale, ci accompagna ora nel cantiere di un’abitazione per 6 persone.
“Io e la mia socia di studio98, Isabella Franco, siamo state chiamate per seguire un interessante progetto di ristrutturazione per una famiglia con 4 figli, che aveva acquistato gli ultimi tre piani (due con appartamenti e uno con il terrazzo) di un palazzo anni Settanta.
Era stata acquistata anche la scala condominiale, fin dal principio elemento cruciale del progetto, perché doveva diventare il collegamento interno dei tre piani. Per le sue caratteristiche di partenza, risultava imponente e un po’ triste; dovevamo pertanto cambiarne completamente l’immagine, modificandone lo stile (ndr, ve la mostreremo nel prossimo post, non perdetela!).
La pianta dei due appartamenti andava riprogettata per risolvere le esigenze di una grande famiglia. Il terrazzo all’ultimo piano (anch’esso argomento di un prossimo articolo) doveva diventare un fulcro vitale della casa, da studiare nei minimi dettagli per trasformarlo in luogo di ritrovo per pranzi di famiglia, cene con amici, giochi, feste dei ragazzi…

Per i pavimenti, si è scelto di recuperare i parquet a spina esistenti, facendoli integrare dal parquettista là dove mancavano i rivestimenti a causa delle necessarie demolizioni. porte e finestre sono state realizzate ex novo, in quanto non recuperabili.
Lo stile del nuovo appartamento doveva prediligere linee moderne ed essenziali, senza fronzoli, ma con molti tocchi decor.
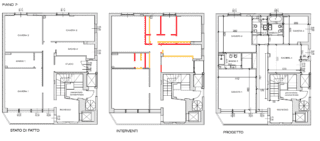
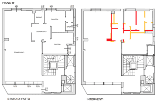
Le planimetrie della casa
Guardando le planimetrie, si possono evidenziare le principali modifiche al lay-out: lo stato di fatto (cioè le piante prima dei lavori di ristrutturazione); poi quelle con le demolizioni (in giallo) e le costruzioni (in rosso) per visualizzare gli interventi sulla muratura; infine quelle del nuovo progetto.

Planimetrie zona giorno: viene spostata la cucina, che diventa camera e viene messa così in diretto collegamento con il soggiorno; ridotto il disimpegno centrale; ricavata una cabina armadio; ingrandito un bagno e trasformato l’altro in comoda lavanderia-bagno.
La zona giorno
Un unico grande spazio comprende nel nuovo progetto living, pranzo e cucina; una grande vetrata in ferro in stile industriale, realizzata su disegno degli architetti Bona e Franco e poi realizzata su misura dal fabbro, è stata prevista per isolare la cucina che resta comunque a vista.
Altro punto fondamentale nel cambiamento della zona giorno è stata la realizzazione di nuove finestre, con meno partizioni di quelle originali (foto a sinistra), che hanno ampliato notevolmente la bellissima vista sulla città”.
Gallery: i lavori nella zona giorno
Progetto di interior design e foto: architetto Clara Bona
Le piante dei tre livelli a lavori finiti
Seguici ancora per vedere come prosegue il cantiere e per vedere le foto di alcuni ambienti!





















































