Contenuti trattati
Nel panorama immobiliare contemporaneo, un bilocale ampio – soprattutto se compreso tra i 70 e gli 85 mq – rappresenta una tipologia abitativa molto interessante, sia per giovani coppie che per piccoli nuclei familiari in evoluzione.
Si tratta infatti di una metratura generosa, che, se ben distribuita, può garantire una notevole qualità della vita. Oltre a un soggiorno vivibile e una cucina abitabile, un bilocale può offrire spazi flessibili da adattare nel tempo: dalla possibilità di ospitare amici, alla creazione di un home office, fino alla trasformazione in un trilocale vero e proprio, con una seconda camera dedicata a un figlio in arrivo o a una stanza multifunzione, per gli ospiti.
Queste trasformazioni, però, non sono sempre semplici né immediatamente realizzabili. Richiedono una progettazione attenta, che tenga conto di numerosi fattori: dalle normative comunali su superfici minime, rapporti aeroilluminanti e requisiti igienico-sanitari, fino ai vincoli impiantistici legati alla posizione delle colonne di scarico e delle reti tecnologiche. Senza dimenticare gli obiettivi funzionali ed estetici del progetto, nonché il budget disponibile.
Nel presente approfondimento esaminiamo, attraverso tre casi concreti, alcune soluzioni progettuali che consentono di trasformare un bilocale in un trilocale efficiente e ben distribuito. Ogni proposta è calibrata su specifici vincoli distributivi, impiantistici e dimensionali, con l’obiettivo di valorizzare al massimo la metratura disponibile, limitare gli interventi invasivi e garantire la piena abitabilità dei nuovi ambienti.
Dato che anche un appartamento con dei limiti può offrire con un buon progetto una qualità abitativa superiore, pronta a rispondere ai cambiamenti della vita, mostriamo qui tre esempi che sfruttano spunti progettuali differenti:
- spostamento della cucina e riprogettazione della zona giorno con modifica dei tramezzi esistenti.
- accorpamento cucina-soggiorno con suddivisione dello spazio per ricavare una nuova stanza
- spostamento del bagno per liberare una finestra utile e destinare l’ambiente originario a cameretta
1) Da bilo a trilocale aggiungendo seconda camera e cabina armadio
Quando si ha a che fare con un appartamento ormai datato spesso nasce la tentazione di ribaltare e riorganizzare gli ambienti interni a seconda di nuove necessità. La casa di oggi è sicuramente molto diversa di quella ad esempio degli anni 50/60 ed è vissuta in modo totalmente nuovo.
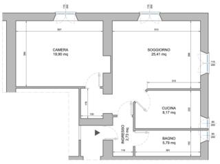
Vediamo un secondo esempio, preso in esame dall‘ingegnere Alessia Avancini in risposta alla lettrice Valeria B., che aveva necessità di aggiungere una stanza nel proprio bilocale e voleva ristrutturarlo (ad eccezione del bagno, già ristrutturato di recente) trasformandolo in trilocale, aggiungendo una stanza. Ecco la sua richiesta: “Vorrei trasformare un bilocale di mia proprietà, attualmente affittato, in trilocale mantenendo uno spazio da usare come piccolo ripostiglio. Inoltre mi piacerebbe creare una cabina armadio nella camera da letto, sempre che sia possibile. Il bagno è già stato completamente ristrutturato a fine 2016 e pertanto non lo vorrei modificare. Anche gli infissi sono stati sostituiti nello stesso anno. Si trova nel Comune di Milano”.
Spesso la creatività e la voglia di cambiamento però si scontrano con alcuni fattori imprescindibili: tra questi i limiti imposti dalle normative, in particolare dai Piani Regolatori e dai Regolamenti Edilizi comunali, ed i limiti imposti da questioni di natura tecnico-impiantistica.
Per quanto riguarda le normative comunali, ogni ambiente deve avere specifiche metrature minime da rispettare per poter procedere con i lavori. Ogni Comune ha il proprio regolamento edilizio che deve essere consultato per capire quali siano le indicazioni su superfici minime, altezze interpiano, materiali da utilizzare, superfici di illuminazione e aerazione eccetera.
Nel caso di Milano, ovvero dove si trova la casa, le metrature minime previste sono: per una camera con un posto letto almeno 8 mq; una matrimoniale 12 mq (escluso la superficie della cabina armadio); un soggiorno con cucina almeno 17 mq.
Nel bilocale che stiamo valutando attualmente è presente un cucinino di circa 8.8 mq, una stanza ed un soggiorno di circa 17.7 mq distanziati da un piccolo ripostiglio e un bagno, che è da poco stato ristrutturato. Come spesso accade, non ci sono molte aperture sull’esterno. In questo caso troviamo una finestra per locale, quindi l’aggiunta di una nuova stanza dev’essere già esclusa. L’unica possibilità poteva essere quella di spostare il bagno rendendolo cieco ma, oltre ad essere una soluzione “peggiorativa” da un punto di vista di vivibilità del servizio, sarebbe una spesa aggiuntiva che vanificherebbe l’intervento realizzato nel 2016.

La stanza matrimoniale viene rimodulata per ospitare una cabina armadio mentre il ripostiglio viene mantenuto ma leggermente ridotto.
Trasformazione da bilo a trilocale se si può spostare la cucina
Nel progetto in esame, attualmente la parete con tutti gli attacchi è quella che divide il bagno dal cucinino. Vedendo la disposizione dei sanitari è probabile che la colonna di scarico sia unica per bagno e cucina e sia posizionata dietro al water. La prima cosa da fare è comunque quella di verificare la posizione della colonna del bagno e verificare l’eventuale presenza di un’ulteriore colonna già esistente e dismessa all’interno del muro perimetrale. Trattandosi di un appartamento in un condominio, non si considera l’idea di una nuova colonna che risulterebbe sicuramente più complicata (dovrebbe passare attraverso gli appartamenti ai piani inferiori oppure, nel “migliore” dei casi, in facciata, quindi si tratterebbe di una soluzione difficilmente percorribile).
Volendo spostare la cucina è bene valutare fin dove spingersi per non posizionarsi ad eccessiva distanza dalla colonna di scarico ed avere problemi di pendenze. Per questo, nonostante l’attuale stanza matrimoniale presenti una portafinestra con poggiolo ideale per una zona giorno, si decide di spostare la cucina nell’attuale soggiorno appoggiandosi alla parete esterna. Il lavabo e quindi lo scarico acqua sarà posizionato più vicino possibile al bagno ipotizzando di raggiungere la colonna di scarico percorrendo la parete perimetrale. L’intenzione è quella di intervenire il meno possibile sul bagno: un passaggio a pavimento vorrebbe dire sollevare tutta la pavimentazione esistente e la rimozione probabile dei sanitari.
Se questa soluzione non dovesse risultare percorribile, si dovrà per forza di cose optare per una pompa elettrica (vedi più sotto, pro e contro) e correre a pavimento attraverso il corridoio o in un controsoffitto sopra al bagno.
La soluzione con gradino non è percorribile nell’ottica di non effettuare troppi lavori nel bagno o comunque evitare di rifarlo completamente. Significherebbe avere un rialzo sia nella cucina che nel bagno: questo perché, ipotizzando sempre la colonna di scarico nel bagno, si dovrebbe alzare tutto il percorso che va dalla cucina alla colonna di scarico.
(la questione condominio riguarda il fatto di aggiungere un elemento verticale, la nuova colonna, che dovrebbe passare attraverso gli appartamenti ai piani inferiori oppure, nel “migliore” dei casi, in facciata…)
Da un punto di vista distributivo si divide l’open space in due parti tramite una penisola centrale. Da un lato la zona divano e conversazione dall’altra la cucina.
2) Da bilocale a trilocale dividendo il soggiorno e accorpando la cucina
Il bilocale della pianta può essere ristrutturato e trasformato in trilocale per una famiglia di tre persone? La risposta affermativa prevede che vengano accorpati soggiorno e cucina, soluzione peraltro di grande tendenza.
Le modifiche necessarie dovranno tenere conto di quanto previsto dalle norme in merito alle superfici minime utili dei locali per abitazione, della necessità di avere un ambiente di disimpegno fra cucina e bagno (antibagno) ed della verifica del rapporto di aero-illuminazione fra le aree calpestabili delle singole stanze e i relativi infissi esterni.
Per contenere il costo dei lavori, la nuova distribuzione può cercare di mantenere la posizione originaria degli impianti idrico e di scarico di bagno e cucina. E scegliendo una nuova pavimentazione a spessore ridotto la si potrà sovrapporre all’esistente, senza nell’ottica di risparmiare e anche di rendere il lavoro meno invasivo. Vediamo il progetto dell’architetto Ornella Musilli.
Il soggiorno cucina
L’entrata all’appartamento avviene direttamente nel soggiorno cucina; la porta del bagno è arretrata e risulta riservata rispetto al soggiorno come quelle scorrevoli delle camere che invece prospettano su un disimpegno che ospita arredi ed un piccolo ripostiglio.
Bagno suddiviso in tre zone, di cui una fa da antibagno
Vi si distinguono tre aree: una di ingresso con doccia in nicchia e piccolo lavabo; da questa si accede a quella centrale tramite un’apertura ad ante pieghevoli in vetro, qui è ricavato un vano per lavatrice ed asciugatrice, mentre nel terzo ambito, prossimo all’infisso esterno, ci sono sanitari, lavabo e scaldasalviette.
Camera matrimoniale
Ha una conformazione planimetrica regolare ed ospita, oltre agli altri arredi, un’ampia armadiatura a sei ante.
Camera in più
Lo spazio lungo e stretto all’entrata è allestito con attrezzature per cabina armadio, mentre l’altro con letto, comodino, scrivania e libreria.
3) Il bilocale diventa trilocale spostando il bagno: casa riprogettata per l’arrivo del bebè
Ricavare la seconda camera in vista della nascita di un bambino è una necessità di molti. Ecco la proposta di un nostro esperto per trasformare il bilocale del nostro lettore Cristian in un pratico trilocale.
La trasformazione da bilocale in trilocale è sempre possibile a patto che il progetto di ristrutturazione rispetti le condizioni imposte dai regolamenti edilizi comunali in merito alla misure minime dei locali e alle norme igienico sanitarie. Si tratta di un intervento che comporta
la stesura di una pratica edilizia da parte di un professionista abilitato, geometra, architetto, ingegnere. Qui di seguito, in risposta al nostro lettore Cristian, vi proponiamo il progetto realizzato dall’ingegnere Alessia Avancini.
Si tratta di un appartamento in origine composto da un living open space, una stanza matrimoniale, un bagno e un ripostiglio ricavato da una nicchia nel muro perimetrale. Il living e la camera si trovano sullo stesso lato e affacciano entrambi su un balcone ciascuno con una porta finestra. Gli ambienti risultano quindi molto luminosi. Nella zona giorno è presente un’ulteriore apertura, una sorta di taglio a tutt’altezza,
che accentua la luminosità e dà carattere alla stanza. Anche il bagno è finestrato.
La posizione delle finestre è uno degli aspetti più importanti da considerare quando si affronta una ristrutturazione, considerato che spesso, soprattutto se si tratta di edifici condominiali, la modifica dei prospetti risulta impossibile o comunque complicata.
Nel nostro caso, le due porte finestre sul balcone bloccano nella posizione attuale camera matrimoniale e cucina (in questo modo è possibile sfruttare la componente impiantistica attuale). Per passare da bilocale a trilocale, dunque, le uniche finestre utili per ricavare la cameretta risultano essere quella del bagno e quella della zona giorno. Entrambe hanno dimensioni adeguate a garantire il rapporto aeroilluminante alla nuova stanza, che dovrà avere una metratura minima di 8 mq (come da regolamento edilizio) e quindi un’apertura di almeno 0.8 mq (1/10 della superficie calpestabile, in alcuni casi può essere 1/8). L’altezza accentuata della vetrata del living impone però, quasi naturalmente, di posizionare la nuova stanza al posto dell’attuale bagno e lasciare quindi entrambe le finestre alla zona giorno garantendo così una buona illuminazione a un ambiente di superficie ridotta.
Nella nuova disposizione, il bagno è posizionato sulla parete cieca perimetrale a destra dell’ingresso ed è accorpato al ripostiglio che ora fungerà anche da antibagno (necessario da normativa poiché direttamente a contatto con la zona giorno che comprende anche l’angolo cottura). Questa soluzione, che comporta lo spostamento del bagno, implica il rifacimento dell’impianto idraulico per favorire il collegamento degli attacchi dell’acqua e dello scarico del vaso igienico. Inoltre poiché il locale risulterà privo di finestra sarà necessario predisporre un sistema di ventilazione meccanica controllata. I nuovi ambienti rispettano tutti i requisiti minimi di abitabilità che, per esempio, nel comune di Milano sono: soggiorno con spazio cottura 17 mq, stanza singola 8 mq, stanza matrimoniale 12 mq. A tale proposito, la stanza ricavata ex novo è a tutti gli effetti una stanza singola, perfetta da 0 anni in su. Il più delle volte, quando si trasforma un bilocale in trilocale, oltre ai lavori di muratura va preventivato l’acquisto di nuovi arredi. In questo caso, il progetto proposto permette di recuperare per intero la camera matrimoniale che, anche se leggermente ridimensionata a favore del living, rimane nella posizione originaria.
La zona giorno, cui si accede direttamente dall’ingresso (dove in una nicchia di fianco alla porta è stato ricavato un pratico guardaroba) è arredata con una cucina in linea chiusa su un alto da una struttura a giorno che scherma i mobili e offre una pratica libreria. Di fronte è previsto il tavolo da pranzo: fa parte di una composizione che integra un pilastro che è mascherato con un rivestimento in legno coordinato al modulo libreria e prosegue oltre con un mobile basso portatv. Di fronte a questo c’è il divano che gode della vista sull’esterno.
La cameretta è una stanza di forma rettangolare che include una piccola anticamera. È arredata con una culla e un fasciatoio completo di un ampio cassettone e di un vano chiuso da due ante, sufficienti per il corredo di un bebè.
Spostare la cucina e gli impianti: quando si può fare e come?
Con lo spostamento della cucina entra in gioco una delle problematiche più delicate cioè quella legata allo spostamento degli impianti.
A differenza di qualsiasi altro ambiente della casa, spostare una cucina richiede una serie di scrupolose attenzioni per verificare che ci sia la concreta possibilità di effettuare gli interventi.
Affinché una cucina possa funzionare ha bisogno di 4 tipi di impianto: l’impianto di adduzione dell’acqua (legato a quello di produzione dell’acqua calda) e quello di scarico, l’impianto elettrico e quello del gas (potrebbe essere evitato nel caso di piano cottura ad induzione).
Impianto di adduzione e scarico dell’acqua: il problema maggiore
Proprio per l’impianto idraulico, ci possono essere, in relazione allo spostamento della cucina, maggiori problemi, poiché il suo funzionamento è “per gravità”, non c’è alcuna forza che “sposta” l’acqua e quindi, perché possa funzionare, deve essere realizzato con tubazioni posate con adeguate pendenze. La pendenza minima adottabile per le diramazioni che collegano i vari punti alla colonna di scarico deve essere ≥ 1,0%, questo vuol dire che per ogni metro di lunghezza bisogna abbassarsi di 1 cm. Si intuisce quindi che uno spostamento a breve distanza non comporta particolari problemi, mentre se la distanza inizia a superare il metro, la problematicità aumenta.
Se lo spostamento avviene sulla stessa parete le tubazioni possono essere fatte scorrere a parete e quindi non dovrebbero presentarsi troppe problematiche. Diversamente, però, dovendo far passare i tubi a pavimento quindi, si dovrà verificare che il massetto abbia uno spessore adeguato per poter garantire la pendenza.
Soluzione 1): realizzare un gradino per la pendenza
Pur se con diametri ridotti rispetto a quelle delle tubazioni dei bagni, molto spesso il massetto non ha spessori sufficienti e si deve in caso ricorrere ad espedienti diversi, come ad esempio la realizzazione di un gradino per recuperare l’altezza. Questa soluzione dovrà essere ben progettata perché risulti anche esteticamente ben integrata e bella.
Soluzione 2): installare pompe di scarico. Con pro e contro
Un’alternativa è quella di ricorrere a pompe di scarico elettriche che aiutino il giusto deflusso delle acque reflue permettendo di realizzare la cucina anche in una posizione molto distante dalla colonna di scarico. L’acqua viene spinta sia in verticale che in orizzontale verso la rete fognaria attraverso tubi di piccolo diametro. Nonostante i numerosi vantaggi che l’installazione di una pompa offre, si devono tenere presenti alcuni possibili aspetti negativi soprattutto se si aggiunge un trituratore.
Prima tra tutti è la rumorosità sia della pompa, sia delle tubazioni e dell’innesto tra diramazioni orizzontali e verticali. Oggi vengono prodotti modelli sempre più silenziosi ma un minimo di disturbo è sempre percepibile. Se la pompa viene installata a muro o meglio all’interno di un mobile si può limitare questo inconveniente con sportelli o involucri coibentati con materiale fonoisolante (ovviamente, spazio permettendo). Per quanto riguarda le tubazioni è buona norma usare condotti antirumore, rivestire l’innesto tra tubazioni con un materassino fonoassorbente e prevedere un diametro maggiore del tratto orizzontale per evitare l’effetto “pistone”.
Altro problema da considerare è la necessaria alimentazione elettrica: se viene a mancare la corrente, non è possibile utilizzare l’acqua del lavello. Pompe di questo tipo hanno poi bisogno di alcune attenzioni riguardo ad esempio ai prodotti usati o alle temperature dell’acqua che fluisce: spesso sono più delicate nei confronti delle alte temperature. Come dovrebbe essere anche nel caso senza pompa, inoltre, non è possibile immettere materiale solido. La pompa non è a tenuta stagna quindi, in caso di malfunzionamento o di blocco, il liquido fuoriesce dalla macchina.
La verifica della pressione dell’acqua
Sempre in relazione all’impianto idrico, sono richieste infine alcune accortezze, come quello di verificare la pressione dell’acqua prevedendo un’eventuale autoclave se non dovesse risultare sufficiente.
Impianto elettrico e del gas
Per quanto riguarda lo spostamento degli altri impianti, elettrico e del gas, non ci sono particolari problematiche.
Per la sicurezza dell’impianto a gas
Per lo spostamento del punto gas è sempre sconsigliato mantenere il vecchio impianto con una semplice “aggiunta” del tratto nuovo. Sarebbe meglio optare per un rifacimento dell’intera linea del gas a partire dal misuratore, installando un nuovo rubinetto d’arresto ad incasso ispezionabile, se mancante. Questa operazione ci permette di certificare il nuovo impianto abbandonando il vecchio.
A fine lavori la certificazione della conformità degli impianti
In ogni caso è sempre fondamentale rivolgersi a degli esperti che sappiano consigliare la soluzione migliore e specifica per ogni situazione in modo da assicurarsi un lavoro eseguito a regola d’arte che sia conforme le normative in merito a materiali, dimensioni, percorsi, ventilazioni, ecc… A fine lavori dovrà sempre essere richiesta la conformità degli impianti che certifica il lavoro fatto a norma di legge.
4 bilocali trasformati in trilocale: foto e progetti
Progetti con render 3D
- Ricavare la seconda camera: 7 progetti
- Progetto salvaspazio: come trasformare un bilocale in quadrilocale con tre camerette




















































