Contenuti trattati
Il piano superiore sottotetto di un appartamento su due livelli doveva essere completamente ristrutturato e sfruttato al meglio per ospitare una zona “craft room”, una sorta di laboratorio di pittura, e una cameretta per due bambini. Lo spazio mansardato era un unico ambiente aperto, grande ma illuminato solamente da tre lucernari.
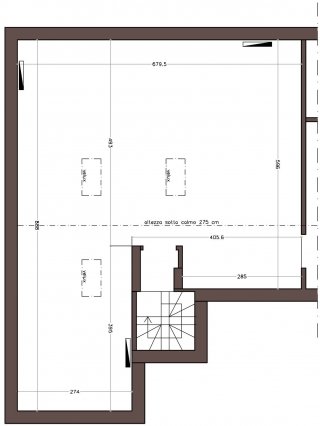
La pianta del progetto. Come viene trasformata la mansarda
L’obiettivo è stato quello di sfruttare al meglio la poca luce naturale esistente. È stata creata quindi un’unica cameretta, di modo che le due aperture nel tetto fossero all’interno di questa. Per ricavare spazi separati e ben distinti per i due bambini, si è inserita una libreria bifacciale, dove il colmo della copertura è più alto. Questo elemento contribuisce a dare privacy ai due ambienti ma non ostacola il passaggio della luce. Ai lati c’è lo spazio per le grandi scrivanie ai lati.
La cameretta dei bambini divisa da scrivanie e libreria bifacciale al centro
La “craft room” per il laboratorio di pittura
In questo ambiente la scrivania e la zona pittura sono collocate sotto al lucernario per sfruttare al meglio la luce naturale, mentre sulla parete opposta è stato fissato un grande specchio che ha la funzione di creare un effetto ottico di profondità per chi entra nella stanza oltre che di riflettere ed enfatizzare la luminosità.
Progetto: Architetto & Interior Designer Elisa Coffinardi, https://www.archcoffinardi.weebly.com













































