Contenuti trattati
Sfruttare il sottotetto per aumentare la metratura della propria casa o addirittura per ricavarne una indipendente, quando possibile, può portare a risultati sorprendenti, con la corretta progettazione, una rigorosa pianificazione dei lavori. I lavori possono essere impegnativi ma l’obiettivo finale ripaga sempre, anche in termine di investimento economico. Con la giusta attenzione a tutto ciò che è imprescindibile, come il rispetto delle leggi locali, ma anche ai dettagli, il sottotetto può diventare uno spazio prezioso e funzionale.
Regolamenti locali e autorizzazioni
La prima cosa da fare è ottenere le necessarie autorizzazioni dopo aver esaminato il Regolamento edilizio locale, prima di iniziare i lavori, per la conversione del sottotetto in uno spazio abitabile. Questo è un passaggio fondamentale e può variare notevolmente da un luogo all’altro. Di questa fase e delle seguenti deve necessariamente occuparsi un professionista (geometra, architetto, ingegnere).
Ispezione e preparazione
Una volta ottenute le approvazioni, è importante effettuare una dettagliata ispezione, controllando la copertura per escludere la presenza di eventuali perdite d’acqua, accertandosi del tipo di isolamento dei muri e del tetto, e valutando la sicurezza dal punto di vista strutturale.
Isolamento e aeroilluminazione
Un sottotetto ben isolato è essenziale per garantire comfort e risparmio energetico. Nel caso non ci fossero le condizioni ideali di coibentazione, è bene valutare come migliorarne il livello e con quali opere. Inoltre, fondamentale per il benessere, anche la luce naturale che deve essere ottimizzata attraverso la realizzazione di nuovi lucernari o finestre, singoli o anche accoppiate per un effetto davvero straordinario, specie rispetto al punto di partenza. Utile prevedere nella fase di scelta dei serramenti anche la possibilità di schermarli con opportune tende solari.
Riscaldamento e raffrescamento: la climatizzazione
Per mantenere la temperatura a un livello confortevole in ogni stagione, oltre all’isolamento termico dell’involucro edilizio, occorre prevedere un impianto adeguato per riscaldamento e raffrescamento, che consenta anche di ridurre i costi energetici (per esempio le pompe di calore o i sistemi ibridi (che le abbinano a una caldaia a condensazione).
Arredi su misura per sfruttare le altezze sotto lo spiovente
La progettazione su misura di alcuni arredi nel sottotetto è la chiave per massimizzare il potenziale nascosto di alcuni spazi: quelli bassi possono essere sfruttati con mensole o chiusi da ante per creare piccoli armadi o ripostigli; quelli alti, invece, possono essere usati, laddove ce ne sia la possibilità, per realizzare soppalchi veri e propri oppure letti a soppalco che sotto lasciano lo spazio libero per il gioco, una zona lavoro o per un guardaroba.
Nel caso che vi riportiamo qui sotto, invece, sono stati realizzati moduli su misura anche per un altro scopo, che non c’entra con l’altezza del soffitto ma che ha a che fare con la quota a pavimento. Andate avanti per scoprirlo!
UNA CASA DA COPIARE
Dal recupero del sottotetto una mansarda di 65 mq: foto e piante
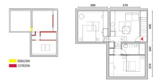
In un edificio in cui è stato recuperato il sottotetto, è stata creata una mansarda indipendente di 65 mq. Lo spazio sotto la copertura è abitabile grazie all’altezza media di 240 cm e al rapporto corretto tra aerazione e luce naturale garantito dalle aperture sul tetto.
Le due stanze sono abitabili grazie alle finestre sul tetto: ne sono state collocate due per ogni ambiente, ciascuna con apertura a bilico, raccordi isolati, tende avvolgibili.
Tutto il piano della mansarda si regge su un nuovo solaio, in laminato flottante effetto rovere, tenuto da selle in acciaio ancorate alla struttura, con cordolo in cemento armato.
Vista 3D della mansarda: il soggiorno-cucina
L’ingresso nella casa avviene direttamente nel piccolo soggiorno cucina. Gli arredi total white enfatizzano la luminosità che invade la stanza, scaldata dal legno delle travi dello spiovente e della scala. La cucina ha le funzioni riunite su un’unica parete con arredi su misura in legno laccato bianco opaco e piano al quarzo color sabbia.
La mini scala-contenitore a forma di “t”, che si articola su tre rampe, dal living conduce alle stanze ed è stata creata per raccordare i livelli sfalsati degli ambienti e per disporre di un volume contenitore in più: è infatti apribile nella parte centrale che fa da pianerottolo.
Mentre la mini scala in legno porta agli altri vani, la cucina sviluppata in linea lascia uno spazio confortevole per il pranzo sotto la finestra. L’infisso a soffitto, del tipo multiplo, si apre sul cielo e permette di godere anche del panorama.
Scegliere la distribuzione funzionale assecondando l’altezza
In ogni locale lo spazio è organizzato in base alla pendenza del tetto e in modo da sfruttare al meglio l’illuminazione naturale diffusa. Nelle camere, questa attenzione si traduce nella collocazione ottimale dello studio che, laterale sotto la falda, può contare sul vantaggio della luce zenitale.
Sulla parete inclinata si sviluppano in successione l’armadio sagomato in altezza per assecondare la falda e, a seguire, lo scrittoio su misura.
Coordinato all’arredo monocromatico e dalle linee pulite, il letto – realizzato ad hoc – ha la base con cassettoni: una scelta dettata dalle esigenze di contenere.
La scala-contenitore scende con quattro gradini nella camera. Nel disegno sono tratteggiate le due finestre che si aprono in falda e illuminano in modo diffuso l’ambiente.
La camera da letto con la zona studio
Spazio essenziale per l’home working
La zona studio sotto la falda è basica ed essenziale, costituita da un semplice top in laminato, in armonia con le nuance presenti nella stanza, ancorato da un lato alla struttura dello spiovente e dall’altro appoggiato a terra tramite una spalla, appaiata al fianco dell’armadio.
L’armadio su misura
Colori di tendenza da aggiungere alla casa bianca per creare contrasto
Una casa tutta in bianco enfatizza la luminosità. Per chi però ama inserire negli ambienti uniformi alcuni tocchi di colore, per i mobili si può suggerire, oltre all’essenza rovere che scalda l’atmosfera e riprende il parquet, di aggiungere toni a contrasto nei colori della terra, bordeaux o ruggine, oppure in ottanio, una sorta di verde blu di grande tendenza.
Foto: Marco Zanca
Progetto: arch. Giorgio La Leta – https://www.laletaarchitettura.com; collaboratore: Marco Zanca

























































