Sfruttare l’altezza in una casa è fondamentale, non solo quando si ha a disposizione una metratura contenuta e si deve recuperare a tutti i costi dello spazio per contenere, ma anche quando si voglia trasformare un anonimo “vuoto” in un volume bello da vedere, oltre che utile.

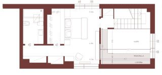
“Oggi voglio mostrarvi alcuni step di un progetto realizzato insieme all’architetto Isabella Franco di studio98 per una casa su tre piani, con una zona a doppia altezza. Quando capita l’occasione di progettare l’interior di uno spazio alto più di 8 metri, con finestre su più livelli, sarebbe un peccato non sfruttarlo in altezza.
Abbiamo quindi da subito pensato a un progetto che valorizzasse l’intero volume, senza però togliere lo slancio e la verticalità. I padroni di casa hanno subito pensato a una libreria con un ballatoio, a cui si arriva dall’ultimo piano, che è quello della loro camera da letto. La zona sottostante viene utilizzata come salotto studio, con scrivania.
A questo punto si poteva procedere con diverse soluzioni; noi abbiamo optato per una libreria in gesso, molto architettonica, che ci è sembrata in linea con le caratteristiche della casa. A questa libreria a tutta altezza si accede attraverso un ballatoio, che crea delle viste prospettiche molto scenografiche.
Progettando la passerella, ci siamo accorte che sarebbe stato bello vederla dalla camera: così abbiamo deciso di aprire una “finestra” interna, realizzata con vetri fissi e struttura in ferro stile industriale, che mette in connessione visiva la camera da letto con la zona libreria. E fa passare molta luce, oltre ad aprire nuove visuali.
Ma veniamo al ballatoio. Come si vede nelle foto del PRIMA, la trave in cemento armato preesistente è servita da appoggio per posizionare le putrelle a sbalzo, realizzate dal fabbro su disegno di un ingegnere strutturista interpellato per il progetto strutturale della passerella che sporge a sbalzo solo dei 60 centimetri necessari al passaggio davanti alle mensole.
La struttura portante in ferro è stata poi rivestita in cartongesso e sempre in cartongesso è stata realizzata la libreria, progettata alternando vani grandi e piccoli, studiati in proporzione agli oggetti che i proprietari volevano sistemarci: non solo libri ma anche oggetti, quadri, coppe… 
I montanti verticali e i ripiani orizzontali hanno uno spessore di 10 centimetri, e il loro disegno non simmetrico movimenta la parete.
Il pavimento della passerella è stato rivestito in parquet di rovere come il resto della casa, mentre la ringhiera è stata realizzata su nostro disegno dal fabbro, con montanti sottili e leggeri dipinti a smalto bianco, proprio come i profili della vetrata. Così tutto l’insieme risulta chiaro e leggero, con il risultato di aver aggiunto all’ambiente proprio quella nota caratterizzante che volevamo”.
Progetto di interior design e foto: architetto Clara Bona
Gallery


































































