Contenuti trattati
Creare un progetto che rispecchia le esigenze attuali di un’architettura circolare ovvero far fronte alle necessità dell’oggi utilizzando l’esistente e pensando agli sviluppi futuri riducendo al massimo gli sprechi.
In questo caso, la sfida non è solo funzionale, ma anche educativa: proporre uno spazio che cresca insieme ai bambini, che favorisca autonomia, ordine e gioco, senza interventi invasivi.
Punto di partenza una cameretta bianca e rosa con due culle, un armadio e due grandi porte finestre – che occupano quasi tutti i muri esistenti che deve essere trasformata in stanza per tre bambini.
La cameretta di due gemelle prima
Della camera originaria si mantiene praticamente tutto, con la sola eccezione di una culla. Anche lo spazio per il gioco rimane, solo diversamente organizzato. L’armadio e la cassettiera restano nella stessa posizione, un accorgimento che consente di evitare spese e lavori di muratura, ottimizzando ciò che è già presente.
Il nuovo progetto si concentra quindi sull’ottimizzazione della zona centrale della stanza e, possibilmente, anche l’altezza, risorse preziose in un ambiente dalle dimensioni contenute.
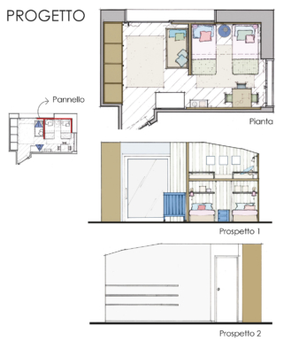
Un progetto che rivoluziona senza demolire
Come trovare una soluzione ordinata, razionale e piacevole, in grado di ospitare tre bambini con funzioni diverse nello stesso spazio?
La risposta arriva dal progetto dell’architetto Vera Franco (Via Verdelli 11 26013, Crema CR, cell. 331 6798581, vera.franco@verafranco.com https://www.verafranco.com) che progetta un pannello in legno rivestito con carta da parati adesiva a righe verticali.
Questo elemento architettonico, apparentemente semplice, svolge funzioni multiple: distribuisce in modo più razionale le aree, diventa supporto tecnico per nuovi punti luce e impianti, e introduce una componente decorativa che ritma la stanza.
Il pannello consente di aggiungere nuovi punti elettrici necessari per la nuova distribuzione funzionale e di articolare la cameretta in tre zone distinte in modo ordinato, razionale e gradevole:
– sotto, i due letti (grandi) per le gemelle
– oltre il pannello divisorio, la culla per il neonato
– in alto, con un materasso, che in futuro può essere usato dal fratellino una volta cresciuto
In questo modo lo spazio è pensato come un organismo dinamico, capace di adattarsi alla crescita dei bambini.

Ai piedi dei due letti, c’è il tavolino con le seggioline per i bambini. Una volta che la culla non servirà più e che anche il terzo bimbo potrà dormire in un letto standard, potrà essere spostato davanti all’armadio.
La flessibilità di questo tipo arredo mobile garantisce la possibilità di ridefinire i flussi e le funzioni senza difficoltà.

Sopra i due letti delle bambine c’è il terzo letto; quando sarà sicuro nel salire la scaletta, il bambino avrà già pronto un suo letto separato. Ognuno ha la sua lampada personale con accensione autonoma, una scelta che valorizza l’individualità dei bambini e favorisce piccole routine quotidiane come la lettura serale.
Arredi e soluzioni low cost ma d’effetto
Il progetto si fonda su un mix di arredi low cost e dettagli d’effetto: la combinazione di elementi facilmente reperibili e scelte su misura dimostra come sia possibile ottenere un risultato professionale, coerente e funzionale senza ricorrere a investimenti onerosi.

Carta da parati azzurra di Leroy Merlin; carta da parati Mappa Mondi di Il Mondo di Alex; mini comodino blu Kartell; applique Amazon, biancheria da letto La Redoute.
















































