Contenuti trattati
Il racconto dell’ideazione di un progetto di ristrutturazione è una storia in genere carica di indecisioni e di possibilità inesplorate. Per questo l’architetto propone in genere diverse opzioni, che richiedono lavori più o meno invasivi, per raggiungere uno o più obiettivi possibili, tenendo conto di una molteplicità di richieste, di cui alcune possono non essere realizzabili. Talvolta però possono emergere migliorie che nemmeno erano state auspicate, e questo fa spesso la differenza nel risultato finale. Vediamo l’esempio di questa casa, con un vero e proprio racconto dello stato di fatto in cui l’appartamento si trova, delle richieste dei proprietari e le 5 ipotesi di progetto realizzate dall’architetto Ornella Musilli.
Come è la casa, ossia il cosiddetto “stato di fatto”
L’appartamento, al primo piano di un condominio in una località di montagna, ha soffitti alti 270 cm e riscaldamento autonomo con caldaia a gas (che diffonde aria calda con tubi di ventilazione sul soffitto, schermati da legno). La casa è composta da:
- ingresso (spazio ampio inutilizzato)
- sala/soggiorno con camino e accesso sul balcone in comune con la camera da letto matrimoniale
- piccolo bagno di servizio senza finestra con box doccia
- cucina (con un angolo occupato da un ripostiglio ove è allocata la caldaia) con un piccolo balconcino/terrazzino (sul quale vi è un ulteriore piccolo ripostiglio)
- camera matrimoniale con balcone (in comune con la sala/soggiorno) avente affaccio soggetto alla visuale di altri fabbricati
- camera ospiti con coppia di letti a castello (4 posti a dormire) con finestra
- bagno con vasca da bagno e finestra.
Le criticità dell’appartamento per i proprietari
- L’attuale cucina è stretta e lunga, è difficile pranzare e ospitare più persone a tavola.
- Il ripostiglio presente in cucina toglie luce e spazio alla stanza.
- Il disimpegno di ingresso dà molta aria all’appartamento ma di fatto è uno spazio inutilizzato, con una colonna/pilastro staccata dal muro molto limitante.
- Il balcone della camera matrimoniale è poco utilizzato sia perché nella zona notte sia perché troppo esposto alla vista e con scarsa privacy per una stanza da letto (fatto che obbliga a tenere le tende chiuse).
Come la casa deve diventare
I committenti per questo appartamento, oltre a richiedere di tenere conto del mobilio da conservare (due divani di cui uno apribile a letto matrimoniale), auspicano da parte dell’architetto una proposta che contempli una soluzione meno invasiva giocando sulla distribuzione degli attuali locali adibiti a cucina/bagno di servizio/ingresso e una più radicale con inversione camere-cucina o altro.
Obiettivi da raggiungere
- organizzare/ recuperare meglio spazi, recuperando quello attualmente inutilizzato dell’ingresso;
- avere uno spazio comodo per pranzare/cenare e ospitare più persone a tavola;
- avere sempre due bagni ma con box doccia.
Vincoli da rispettare nei lavori per obbligo di legge
Quelle che seguono sono le prescrizioni normative che interessano le residenze, per una verifica dettagliata si consiglia di fare riferimento agli strumenti urbanistici vigenti nel Comune dove è ubicato l’edificio:
- la superficie del soggiorno non può essere inferiore a 14 mq;
- la superficie della camera singola non può essere inferiore a 9 mq;
- la superficie della camera doppia non può essere inferiore a 14 mq;
- la cucina deve essere disimpegnata dal bagno attraverso uno spazio filtro (antibagno);
- se la cucina è chiusa in un locale dedicato, deve avere la finestra;
- la superficie aero-illuminante delle aperture esterne (infissi) di ogni stanza dove si prevede la presenza continuativa di persone (soggiorno, camera, cucina), deve essere pari ad almeno 1/8 di quella calpestabile.
Progetto A: piccoli interventi in ingresso, bagno e cucina, sfruttando un poco il corridoio
- Come da richiesta della committenza in questa prima ipotesi sono previsti interventi che coinvolgono la zona ingresso-cucina-bagno di servizio ed è eliminato il ripostiglio in cucina, al suo posto ci sono le colonne con frigorifero combinato e dispensa.
- La sporgenza con box doccia attuale è traslata più in basso e sfrutta parte dello spazio dell’ampio ingresso. Nel bagno, a lato del piatto doccia c’è una rientranza attrezzata mentre vicino alla porta è posizionata la lavatrice con ripiani alti.
- In cucina si entra con una porta scorrevole in vetro: compattando l’arredo in due linee, di cui una con piano sporgente servito da sgabelli, si ottiene lo spazio per il tavolo da pranzo estensibile.
- All’entrata dell’appartamento è realizzato un armadio a muro che ingloba il pilastro ed è apribile verso la cucina, fra pilastro e tramezzo ci sono dei piccoli ripiani in serie sfruttabili dal soggiorno, di fronte alla porta è collocato uno specchio dal design verticale.
Confronta il prima e il dopo del progetto A
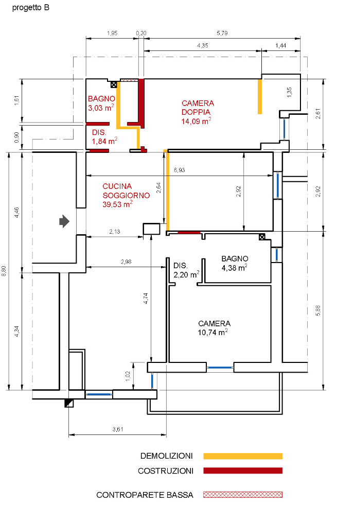
Progetto B: soggiorno e cucina a L, collegati e aperti uno sull’altro: bagno di servizio più grande e con antibagno-lavanderia
- In questo caso la stanza con i letti singoli è spostata nella ex cucina ed ottiene le dimensioni della camera doppia poiché la superficie è portata a 14 mq.
- Il living, con cucina aperta nel soggiorno pur se in un ambito a sé ben definito, assume una conformazione ad L ed ingloba tutto lo spazio di ingresso.
- Anche in questa ipotesi la cucina ha due linee e penisola ma è previsto lo spostamento degli impianti ad essa dedicati.
- Al bagno di servizio ampliato si accede da un anti-bagno con lavatrice, in questo disimpegno si accede anche dalla camera. Nel bagno con finestra è inserito il box doccia.
Confronta il prima e il dopo del progetto B
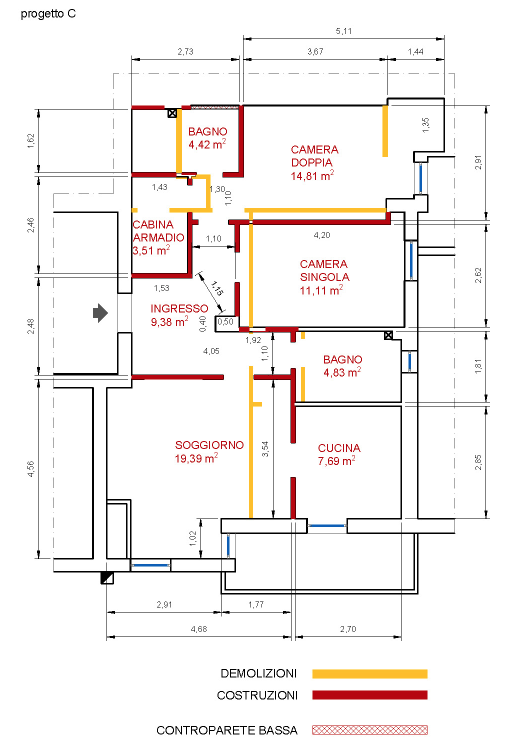
Progetto C: la cucina viene spostata e separata da una scorrevole dal soggiorno. In più c’è una cabina armadio
La distribuzione è in gran parte modificata con la stanza matrimoniale che cambia posto e la cucina che resta abitabile, a se stante.
- la camera matrimoniale raggiunge i 14 mq necessari per una stanza doppia ed ha bagno e cabina armadio dedicati;
- la camera con letto singolo, conserva una superficie simile allo stato di fatto ma ha una conformazione più lunga e stretta e l’ingresso spostato;
- la cucina è chiusa con porta scorrevole in vetro ed ha dimensioni adeguate ma non ospitare il tavolo;
- la zona pranzo si trova in soggiorno;
- nel divisorio fra ingresso e soggiorno ci sono due aperture vetrate, una scorrevole e una fissa “a finestra” sopra il divano; entrambe danno luce all’entrata.
Confronta il prima e il dopo del progetto C
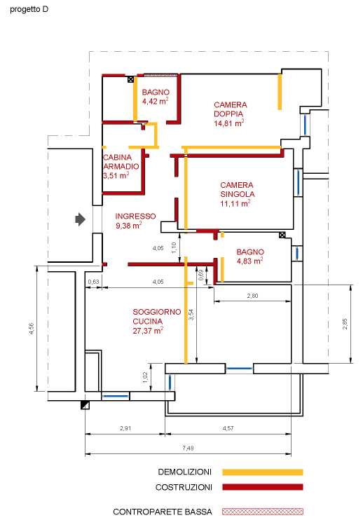
Progetto D: soggiorno open space con divani ad angolo e cucina compatta a vista
- Questa ipotesi è simile alla precedente ma la cucina è aperta sul soggiorno.
- Ne consegue un ampio spazio per la zona pranzo ed il soggiorno con divani ad angolo.
Confronta il prima e il dopo del progetto D
Progetto E: soggiorno open space con ampia cucina a vista ad angolo
- La zona notte è la stessa delle soluzioni precedenti, mentre sono differenti il living ed anche il bagno, che ha un ampio box doccia sotto la finestra.
- In questo caso il soggiorno open space ingloba una grande cucina ad angolo.
Confronta il prima e il dopo del progetto E
In sintesi, l’opinione dell’architetto sulle 5 ipotesi progettuali
I progetti prevedono interventi via via più invasivi e migliorativi, come richiesto dalla lettrice che vorrebbe valutare più soluzioni. Gli obiettivi prioritari sono: sfruttare lo spazio di ingresso, rendere meno interferente il pilastro centrale, avere la possibilità di una zona pranzo con più posti a tavola per ospitare gli amici, aumentare la superficie della zona notte. In tutte le ipotesi viene eliminato il ripostiglio dall’attuale cucina dal momento che ce ne è un secondo sul terrazzo.
Nel progetto A si interviene solo nella zona ingresso/bagno di servizio/cucina: la sporgenza nella cucina attuale si sposta verso l’ingresso e la lavatrice viene collocata nella nuova rientranza del bagno (mentre attualmente si trova nella linea lunga della cucina, vedi foto), la cucina è più compatta ed il tavolo da pranzo ha intorno più spazio.
Nel progetto B si coinvolge anche una delle due camere che viene scambiata con la cucina, come suggerito dalla lettrice, con conseguente aumento della superficie utile della camera e completo inserimento dell’ingresso nel living ad L, nel bagno con finestra si elimina la vasca e si inserisce il box doccia.
Nei progetti C, D ed E, vengono coinvolti anche l’altra camera, che attualmente ha una superficie limitata, ed il bagno con finestra; hanno in comune la stessa disposizione di camere, bagno di servizio e cabina armadio e differiscono nella zona giorno e nel bagno con finestra (i sanitari vengono allineati ed il bagno ingrandito): l’ipotesi C è stata elaborata perché i proprietari potrebbero preferire la cucina chiusa ma il risultato è meno soddisfacente perché ovviamente gli spazi giorno sono più limitati.
Le soluzioni migliori secondo l’architetto Musilli sono – dulcis in fundo – le ultime due, ma sono quelle più invasive e comportano ognuna disposizioni che potrebbero non essere preferite per gusti personali, come la cucina aperta nel soggiorno.
Nella D l’ingresso alla zona giorno che avviene dalla cucina e nella E la doccia è sotto la finestra (anche se in questa ultima il bagno è ancora più grande).



























































