In un appartamento già ristrutturato il proprietario era in difficoltà sulla disposizione degli arredi, partendo dagli attacchi della cucina già definiti. L’obiettivo da raggiungere era quello di avere comunque una cucina a vista ma di delimitarla in qualche modo rispetto al soggiorno. Sono state proposte due soluzioni.
La penisola che separa
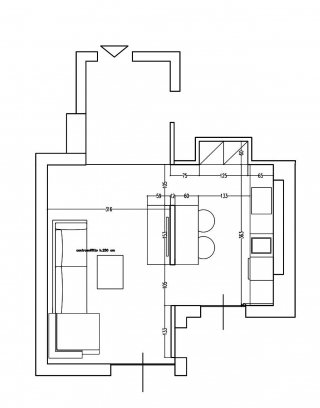
Nella prima, la cucina stessa, sviluppata a U, diventa elemento di separazione attraverso una comoda penisola che attrezzata come zona pranzo può ospitare 3/4 persone. Il divano con chaise longue trova la sua naturale collocazione lungo la parete libera di fronte. Dove sistemare la tv? Un mobile con funzione anche di contenimento assolve la funzione: la paretina accanto alla portafinestra viene prolungata con un setto in cartongesso, distanziato dal muro perimetrale di modo da non oscurare la vista della finestra della cucina, ottenendo così la possibilità di posizionare un mobile base tv con cassettoni da 180 cm. Un controsoffitto in cartongesso delimita ulteriormente lo spazio cucina rispetto al resto del soggiorno. Di fronte al divano è posizionato un tavolino trasformabile che allʼoccorrenza viene utilizzato come tavolo da pranzo.
Clicca sulle immagini per vederle full screen
Seconda soluzione: una quinta rivestita in pietra divide i due ambienti
Nella seconda soluzione invece la cucina sfrutta la possibilità offerta dalla dimensione del corridoio retrostante di incassare le colonne nel muro e di sfruttare la parete di fondo unicamente con basi. Si è inoltre utilizzata ed evidenziata, attraverso un gioco di strip led e con un colore a contrasto, la nicchia presente, creando così un piano di lavoro più profondo in sua corrispondenza. La parete a destra invece è pensata libera e colorata di nero con finitura effetto lavagna. La separazione rispetto al soggiorno avviene in questo caso con unʼunica parete, sempre realizzata in cartongesso e rivestita in pietra. Dal lato cucina è posizionato un banco snak per due persone, mentre verso il soggiorno un mobile a cassetti per la tv. Restano invariati rispetto alla prima soluzione la posizione del divano e il tavolino trasformabile.
Progetti: Architetto & Interior Designer Elisa Coffinardi, https://www.archcoffinardi.weebly.com
























































