Contenuti trattati
Questo appartamento di circa 100 mq è la seconda casa di una coppia desiderosa di uno spazio accogliente dove ospitare amici e familiari. Immerso nella quiete della cittadina termale di Abano Terme, nasce come rifugio lontano dalla frenesia quotidiana, concepito per momenti di relax e convivialità.
Le richieste ricevute da parte della committenza sono chiare fin da subito. I proprietari volevano trasformare l’appartamento in uno spazio funzionale e ospitale, capace di accogliere con facilità amici e familiari.
Precise anche le indicazioni in merito allo stile e all’estetica: senza rinunciare al calore dell’accoglienza, le linee dovevano essere minimal, sobrie ed eleganti, capaci di trasmettere ordine e raffinatezza.
In tutta la casa funzionalità ed estetica si fondono armoniosamente. L’abitazione si distingue per un carattere elegante e deciso, costruito su una palette di tonalità neutre – marrone, grigio, nero, bianco — arricchite da accenti in tonalità fredde, vicine all’azzurro e al blu.
Il progetto: layout più attuale e fluido
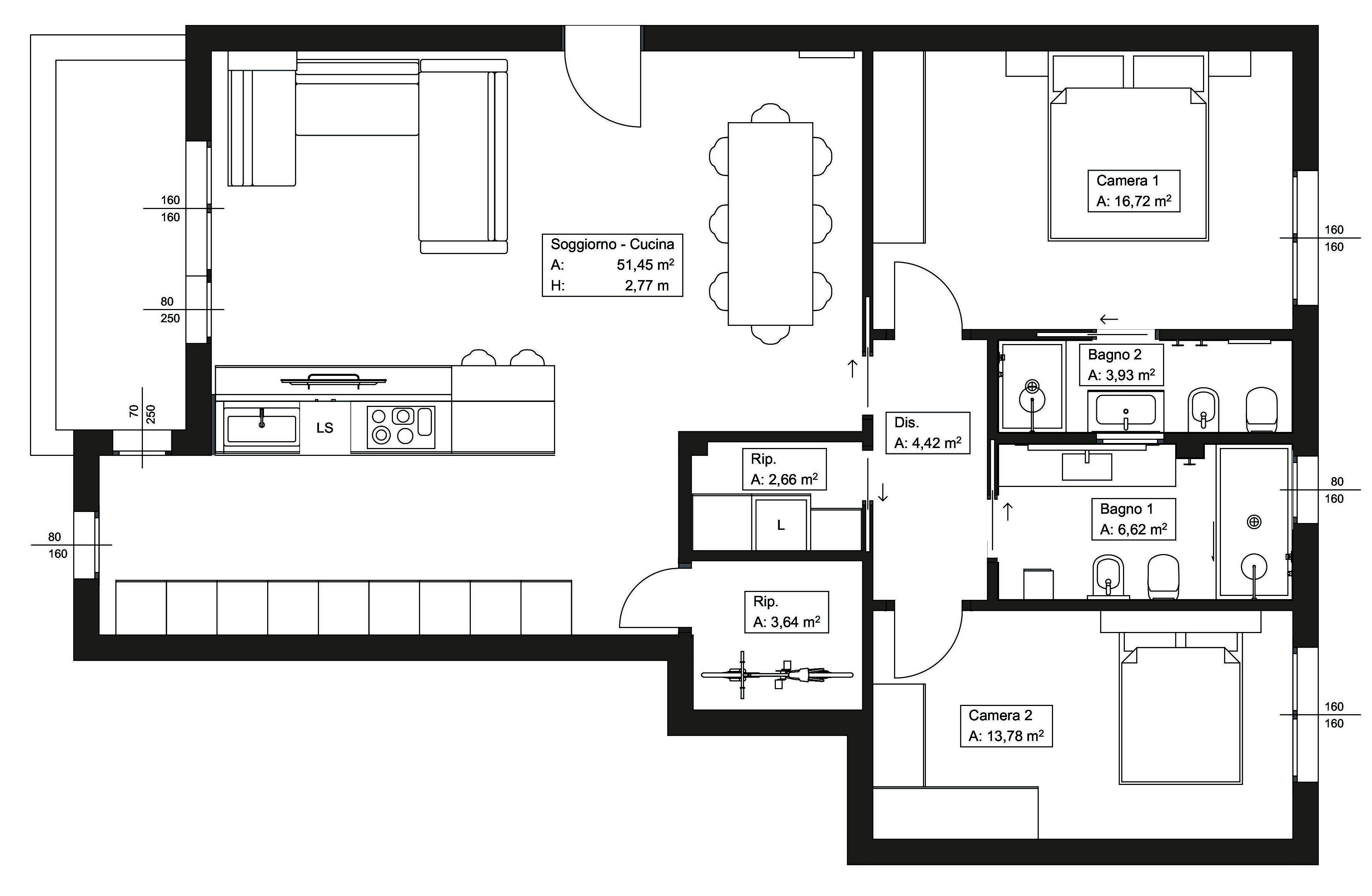
La priorità dell’intervento è stata creare un open space tra cucina e soggiorno e disporre anche di una grande tavolata intorno alla quale condividere la passione per la cucina e la convivialità.
Il progetto è stato affidato ad Architempore, che si è dunque prima di tutto occupato di rispondere e all’esigenza di rendere gli spazi più fluidi e funzionali.
L’intervento principale ha riguardato la demolizione delle pareti tra cucina e soggiorno, creando un ambiente unico, ampio e luminoso, ideale per ospitare molte persone.
Un’altra richiesta importante riguardava la seconda stanza, che doveva poter essere utilizzata sia come studio, sia camera per gli ospiti garantendo comfort e privacy.
- Localizzazione: Abano Terme (PD)
- Periodo: Gennaio 2025 – Aprile 2025
- Progetto Casa Helvetia: Arch. Violetta Breda, Arch. Gianluca Ardiani, Arch. Erika Anelli
- Foto: Stella Giulia Casarin
Chi è Architempore
Architempore, operante nel territorio di Milano e dintorni, è un general contractor con studio di architettura e impresa edile ed integra competenze progettuali e khow-how di cantiere per garantire un servizio completo e coordinato. Nato su iniziativa dell’arch. Violetta Breda e di Valter Breda, rappresenta oggi una realtà di riferimento per chi desidera affrontare con un metodo integrato, chiaro e personalizzato la ristrutturazione edilizia di appartamenti, ville, condomini, spazi commerciali, uffici e strutture ricettive. Scopri di più sul sito di Architempore
Cucina e soggiorno divisi solo da una penisola multifunzione
La cucina, cuore dell’appartamento, è stata progettata su due lati fronteggianti, uno lungo la parete e uno al centro stanza, che diventa una sorta di penisola a più funzioni. Le sue eleganti finiture grigie sono perfettamente coerenti con la palette cromatica scelta per l’intera abitazione.
L’ampia penisola – che si sviluppa a partire dalla cantinetta vini, tanto desiderata dai clienti e vicina alla finestra – diventa un naturale punto d’incontro, permettendo di interagire con gli ospiti che trovano posto sui comodi e raffinati sgabelli della collezione Lollipop di Diotti.
Lo sviluppo lineare degli arredi garantisce funzionalità senza mai limitare la visuale della zona giorno.
Al centro della scena troviamo il tavolo da pranzo Axy Comfort di MDF, che con le sue dimensioni generose accoglie tutti comodamente. Le sedute, modello Joe S di Midj, aggiungono una sensazione di comfort e raffinatezza grazie al tessuto color sahara, capace di bilanciare le tonalità più fredde scaldando l’atmosfera.
L’ampio living è valorizzato dal parquet prefinito in essenza Rovere di prima scelta e da un’illuminazione studiata nei suoi dettagli: la lampada a soffitto Collide di Rotaliana illumina il soggiorno, mentre la sospensione Aplomb Large di Foscarini cattura lo sguardo sul tavolo da pranzo. Proiettori e luci tecniche, tra cui Pound_T, Tara_R e Crew 2 di Linea Light, garantiscono una luce funzionale e diffusa negli altri ambienti.
L’impianto elettrico è completato dalle eleganti placche Plana di Vimar in finitura bianca.
Scelte coerenti per tutti gli ambienti
Anche nella zona notte l’obiettivo era quello di migliorare la vivibilità e la distribuzione degli spazi. Come nel resto dell’appartamento, anche nelle camere lo stile rimane coerente.
Gli ambienti offrono leggerezza e armonia grazie alla luminosità naturale e alla vista sul verde circostante.
L’arredo minimale, il parquet caldo e accenni di colore azzurro-grigio contribuiscono a creare un’atmosfera serena e accogliente.
Bagno en suite con doccia décor
Il bagno più piccolo è stato riorganizzato e reso accessibile direttamente dalla camera padronale, isolando così la suite dagli spazi condivisi e garantendo maggiore privacy.
Seppur di dimensioni contenute, offre comfort, personalità e luminosità. I rivestimenti, tutti firmati Marazzi, definiscono l’identità dello spazio: Cementum Wall Ash, posato come una boiserie, offre respiro all’ambiente, mentre Cementum Indigo, combinato con il decoro Urban Freddo Touch Cementum Wall riservato alla doccia, conferisce carattere e movimento.
Il mobile lavabo Smyle di IdeaGroup in finitura cobalto e la rubinetteria in nero opaco Laguna di Jaquar completano il design elegante ma deciso. Accessori come lo specchio rotondo e gli appendini Dots di Muuto aggiungono un tocco decorativo, mentre lo scaldasalviette elettrico Quadrè di Irsap offre funzionalità smart.
Bagno principale, con doccia più ampia
L’altro bagno riprende alcuni elementi stilistici del primo, come il blu indigo del pavimento, garantendo continuità negli spazi. Si differenzia tuttavia per le ampie dimensioni della doccia e per un’estetica maggiormente materica.
Il gres porcellanato Mystone Ceppo di Grè di Marazzi e il mobile lavabo My Time di IdeaGroup in finitura rovere trasmettono solidità e prestigio, senza rinunciare a un linguaggio contemporaneo e raffinato.
Linee essenziali e contrasti misurati definiscono un’atmosfera sofisticata, coerente con il gusto dei committenti, che cercavano uno stile sobrio ma ricercato, dove ogni dettaglio contribuisce a creare equilibrio tra eleganza e comfort.
Sei interessato ad un Progetto di Ristrutturazione chiavi in mano?
Contatta Architempore!
Fornitori
Rubinetterie
- serie LAGUNA di JAQUAR (miscelatori bidet, lavabo, doccia, soffione, doccetta… ).
Luci
- Collide di Rotaliana (lampada a soffitto);
- Aplomb Large di Foscarini (lampada a sospensione);
- Sottile 380 di Cini&Nils (lampada a parete);
- Pound_T di Linea Light (luci tecniche);
- Tara_R di Linea Light (lampada a soffitto);
- Crew 2 di Linea Light (lampada a soffitto);
- Dioscuri Wall di Artemide (lampada a parete).
Impianto elettrico
- Vimar, serie Plana, finitura Reflex bianca.
Arredi
- Axy Comfort di MDF (tavolo sala da pranzo);
- Joe S di Midj (sedie sala da pranzo);
- Lollipop di Diotti (sgabelli cucina);
- Oregon Pacific di Diotti (armadi);
- Otto Sospeso di Teulat venduto da Archiproducts (comodini);
- Dots di Muuto (appendiabiti a parete).
Sanitari e arredo bagno
- vaso sospesi Tesi di Ideal Standard;
- placca Sigma20 Round di Geberit;
- bidet sospeso Tesi di Ideal Standard;
- piatto doccia Custom di Novellini;
- box doccia Kuadra 2.0 2PH di Novellini;
- mobile lavabo My Time in finitura rovere fight di IdeaGroup;
- mobile lavabo Smyle Cannettato in finitura cobalto di IdeaGroup.
Radiatori
- Calorifero elettrico con controllo elettronico wifi Quadrè di Irsap.
Rivestimenti
- pavimento Cementum Indigo (formato 60×60 cm) di Marazzi;
- parete Mystone Ceppo di Grè White (formato 60×120 cm) di Marazzi;
- parete Cementum Wall Ash (formato 40×120 cm) di Marazzi;
- parete Cementum Wall Decoro Urban Freddo Touch (formato 40×120 cm) di Marazzi.
Contenuto sponsorizzato


















































