Contenuti trattati
Se con la posa delle piastrelle una casa in via di ristrutturazione inizia a prendere forma, ad avvicinarsi all’aspetto che avrà alla fine dei lavori, con la tinteggiatura l’opera davvero inizia a essere completa. Diamo la parola all’architetto Clara Bona e seguiamola nel cantiere virtuale di una casa su due livelli di cui abbiamo già visto alcune fasi degli interni (la demolizione/ricostruzione di muri per definire i nuovi spazi del progetto; il mini bagno e il ripostiglio ricavati nel sottoscala chiuso da una nuova parete; la realizzazione degli altri due bagni con i nuovi rivestimenti; la scelta e la posa del parquet).
“Quando in un cantiere arrivano gli imbianchini è sempre una gioia. E passare a vedere i progressi giorno dopo giorno regala sempre sorprese, perché i cambiamenti si succedono nel giro di poche ore. E l’effetto finale del progetto di interior, quello che finora si era solo immaginato, diventa evidente”.
Pittura blu notte nell’ingresso
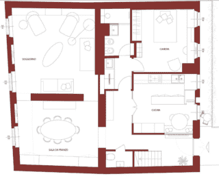
Per questa casa (sopra la planimetria del livello con zona giorno + camera del figlio) per la maggior parte delle pareti la scelta è caduta sul bianco. Ma poi ci sono dei colpi di colore molto forti, solo in alcune zone. Nell’ingresso per esempio, dove due pareti color blu notte creano un effetto molto speciale e fanno un bel contrasto con la vetrata bianca che conduce alla cucina.
Foto dell’avanzamento dei lavori di tinteggiatura nell’ingresso
Elegante grigio antracite nella zona pranzo
Altra parete di grande impatto è quella della sala da pranzo: qui il colore è un grigio antracite quasi nero. Nelle foto si vedono le varie fasi, dalla prima mano alle stuccature, alla parete finita, molto chic come sempre succede con i colori scuri.
Foto avanzamento lavori dell’imbianchino nella sala da pranzo
Tinte calde, invece, al piano superiore
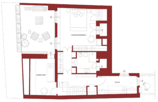
“Salendo al piano superiore (planimetria qui sopra)”, prosegue Clara Bona, “le scelte sono completamente diverse sia per lo studio, sia per il bagno della padrona di casa. Infatti, per questi ambienti, sono stati valutati il rosa cipria e il mattone, due colori che inizialmente non erano stati minimamente presi in considerazione, dato che si pensava di rimanere nella gamma degli azzurri e dei colori freddi. Ma, poi, guardando insieme ai proprietari alcune foto su riviste e su Pinterest, anche queste due tinte hanno iniziato a conquistarci. Alla fine le abbiamo scelte con convinzione e infatti il risultato finale ci piace moltissimo! Lasciare la strada che già si conosce per sperimentarne una nuova, a volte, può essere la soluzione vincente.
Foto del work in progress della tinteggiatura del bagno del piano superiore
Foto dello studio del piano superiore, dove si è utilizzata sempre la tinta mattone
…e infine, relooking anche al terrazzo
Anche sul terrazzo, nelle pareti a tasca che non si vedono dall’esterno ma solo da dentro casa, abbiamo scelto di abbandonare il giallo (che è il colore originale degli esterni del palazzo) e abbiamo optato per un tenue verde salvia, che si abbina ai colori dei mobili per esterno che sono stati scelti.
Foto del terrazzo a tasca prima e dopo i lavori
Ma dei terrazzini e di tutti i lavori che li riguardano parleremo in uno dei prossimi articoli. Seguiteci
Progetto di interior design e foto: architetto Clara Bona




























































