Contenuti trattati
L’appartamento al quarto piano di un palazzo anni ’60 è stato acquistato allo stato originario.
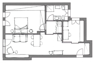
La pianta è tipica dell’epoca: un corridoio d’ingresso su cui affacciavano la cucina, il soggiorno e il disimpegno che collegava la zona notte, composta da una camera da letto e un bagno.
Gli ambienti hanno mantenuto la posizione preesistente. Poche le modifiche murarie: l’eliminazione della parete che divideva il soggiorno dal corridoio, il ridimensionamento del disimpegno, la demolizione di una porzione di muro in cucina a favore di una parete semivetrata. E in più…
Gallery
Soggiorno prima e dopo: da chiuso a open space integrando il corridoio
Togliendo la porta e il muro del corridoio si crea nuovo spazio per credenza e altri arredi.
L’apertura della stanza ha permesso di ottenere un ambiente unico, che comprende anche il corridoio. Di forma rettangolare, lo spazio è stato organizzato in più aree: oltre l’ingresso, arredato con una madia e una sedia, si sviluppa la zona pranzo, seguita dal salotto.

Nel soggiorno: TAVOLINO ROSA di Muuto. https://www.muuto.com TAPPETO di La Redoute. https://www.laredoute.it CREDENZA di recupero ARMADIO di recupero TAVOLO realizzato dal falegname con legno di recupero SOSPENSIONI IN VETRO COLORATO Ebb&Flow. ebbandflow.com SEDIE IN PAGLIA DI VIENNA vintage
La modifica della cucina amplia la prospettiva e diffonde la luce
L’infisso vetrato che divide: parte fissa (muro+vetro) e porta scorrevole
La nuova struttura del serramento ha un telaio in metallo verniciato bianco. È composta da una parte fissa con un grande vetro appoggiato su un muretto alto circa 120 cm e da una porta scorrevole a tutta altezza, che dall’ingresso aprono la vista sull’esterno.
L’ambiente, pur restando separato, ha guadagnato in luminosità ed è stato valorizzato dal nuovo parquet in rovere. Arredato con una cucina minimal bianca, in armonia con l’involucro, acquista carattere grazie a due pareti dipinte in una tonalità di rosa desaturato.
Rosa a parete
CUCINA su misura e su disegno LAMPADA &tradition. hwww.andtradition.com PARETE VETRATA su misura e su disegno TAVOLO di recupero SEDIE di recupero PARQUET Laborlegno. https://www.laborlegno.it
Camera alleggerita e resa più luminosa e moderna
Un armadio “a elle” sfrutta il muro sopra la porta
Salvaspazio: armadio a ponte sulla porta
La stanza è circondata su due lati da un armadio a tutta altezza: bianco, con ante lisce e prive di maniglie, si mimetizza con le pareti.
ARMADIO su misura Mobilificio Mobiline https://www.mobilinesrl.com SPECCHIO di Zara Home. https://www.zarahome.com LETTO di Tomasella. https://www.tomasella.it TAVOLINO-COMODINO di HK Living. hkliving.com TAPPETO di Ferm LIving https://www.fermliving.com
Bagno rosa e “green”
Funzionale, accogliente, in armonia cromatica, il nuovo bagno resta declinato in rosa ma con un nuovo rivestimento in piastrelle di moda, i “brick” posati in verticale.
Il bagno, con il nuovo pavimento in gres effetto graniglia, affaccia su un disimpegno che disegna una nicchia: uno spazio prezioso che è stato attrezzato come ripostiglio-lavanderia e chiuso con uno scenografico tendaggio in velluto verde fissato al soffitto.
SPECCHIO su misura APPLIQUE SPECCHIO di Artemide. https://www.artemide.com MOBILE IN METALLO BIANCO di Sklum. https://www.sklum.com PIASTRELLE di Appiani. https://www.gruppobardelli.com SANITARI E LAVABO di Ceramica Flaminia. https://www.ceramicaflaminia.it
Progetto d’interior e foto: Marianna Scarpis; IG @living_withnora





















































