Contenuti trattati
Nel cuore della città sabauda, affacciato su Piazza Savoia, un monolocale di appena 33 mq viene completamente ripensato da uno studio di architettura e trasformato in un piccolo gioiello dell’interior design.
Situato in un palazzo d’epoca, l’appartamento è stato oggetto di un intervento attento e raffinato, capace di coniugare eleganza classica e funzionalità contemporanea.
Il progetto ha previsto una sapiente suddivisione degli spazi, pur mantenendo l’unitarietà visiva dell’ambiente: un tramezzo e una quinta a listelli di legno schermano la zona notte, mentre la cucina trova posto in una nicchia preesistente.
Boiserie reinterpretate, materiali sostenibili e dettagli su misura definiscono un’atmosfera di charme, adatta sia per la residenza che per un uso ricettivo di alto livello.
Colori chiari e materiali naturali sono la base di partenza su cui si sono scelti arredi e finiture.
Foto monolocale a Torino
L’obiettivo era trasformare un monolocale open space di soli 33 mq in un’abitazione con una suddivisione razionale delle diverse zone funzionali, in particolare la separazione fra zona giorno e zona notte, in modo che il letto risultasse almeno parzialmente schermato. L’appartamento, così come è stato concepito, risulta poi adatto sia all’uso come B&B, sia come mini appartamento per un affitto breve, nel caso in futuro si decidesse di disporne diversamente; difatti è stato dotato di una cucina in linea completa di tutto, per quanto non molto grande.
I plus del progetto da copiare
- Separazione visiva zona giorno/zona notte: una quinta a listelli in legno con TV integrata (orientabile) crea privacy senza chiudere lo spazio.
- Nicchie sfruttate al centimetro: armadio su misura all’ingresso, cucina incorniciata nella parete rientrante con pensili a tutt’altezza.
- Palette neutra con contrasti decisi: il bianco amplifica lo spazio, i dettagli neri (rubinetti, lampade, profili) donano ritmo e identità.
- Boiserie e stucchi rivisitati: cornici in gesso e profili in polistirene ridanno carattere allo spazio con un budget contenuto.
- Materiali sostenibili e durevoli: linoleum naturale a pavimento, pareti in compensato marino, finiture di qualità pensate per durare.
- Illuminazione d’atmosfera: luci puntuali (ad arco o incassate) creano scenari accoglienti e differenziati.
- Soluzioni salvaspazio eleganti: porta scorrevole a specchio su binario a soffitto che dilata lo spazio e riflette la luce.
- Cucina attrezzata e discreta: incorniciata in una nicchia con top e alzatina in gres effetto marmo e illuminazione LED.
- Arredi versatili e coerenti: tavolini e comodini dal design leggero e flessibile, finiture coordinate per una visione d’insieme coerente.
- Progetto adatto anche ad affitto breve o B&B: impianti, arredi e materiali pensati per una gestione semplice e durevole nel tempo.
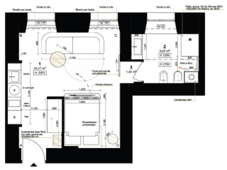
Planimetria del progetto monolocale
Entrando nel monolocale, a destra è stata creata una nicchia in cui inserire un armadio; all’altro lato del tramezzo, invece, viene addossato il letto, poi schermato anche con una struttura a listelli di legno, su cui è fissata la tv. Il divano sfrutta lo spazio tra le finestre e in parte quello sotto. A sinistra dell’entrata, invece, una grande rientranza già presente è stata sfruttata per i mobili cucina. La terza finestra del piccolo immobile è quella del bagno, disimpegnato da una doppia porta come richiesto dalla normativa.
Profili e boiserie in gesso, eleganza da sottolineare
Desiderio del cliente era di ristrutturare l’abitazione rendendola più interessante, ma conservandone il carattere originale, dato che si trovava in uno stabile d’epoca nel cuore della città di Torino.
Per il B&B un armadio a due ante era più che sufficiente; è stato inserito all’ingresso, dove la nicchia creata per contenerlo ha la lunghezza del letto che si trova dietro. Anche intorno al guardaroba a soffitto sono stati riprodotti gli stucchi d’epoca grazie a profili in polistirene (di Orac Decor), che sono leggeri e poco costosi, ma donano un tocco ricercato e raffinato all’ambiente.
All’entrata, poi, occorreva una seduta, che facesse anche da piano da appoggio; è stata affiancata all’armadio e valorizzata da una luce di gusto moderno che crea atmosfera e introduce una nota di gradevole contrasto.
Le modifiche apportate hanno mirato a valorizzare al massimo gli spazi, conservando gli elementi classici come le cornici a soffitto e riprendendo la boiserie su alcune pareti. Questa scelta ha permesso di infondere un tocco di eleganza anche a rivestimenti “contemporanei” come il linoleum a pavimento.
Una quinta a listelli di legno che divide e nasconde
Quando le dimensioni di un appartamento sono ridotte e quando si presenta come un unico ambiente aperto, non sempre è possibile o facile differenziare i vari spazi e renderli più funzionali.
In questo caso il progetto ha vinto la sfida e separato la zona giorno dalla zona notte offrendo la giusta privacy, progettando un elemento d’arredo a listelli verticali in legno che, oltre a svolgere la funzione di divisorio, integra la televisione che, ruotando a 360 gradi, riesce a essere visibile in entrambi sia dal letto (di Bolzan) che dal divano. Dal lato soggiorno, il letto risulta perlopiù nascosto. Visibile invece il particolarissimo comodino-tavolino (di Saba).
Total white con tocchi di nero
I toni dell’appartamento sono neutri con qualche dettaglio nero, come i tavolini e la lampada da terra ad arco in metallo (modello Ozz Floor di Miniforms, con contrappeso a terra in calcestruzzo) nella zona conversazione e la rubinetteria (di Imex) sia in cucina sia in bagno.
Finiture a pavimento e parete
L’utilizzo di materiali sostenibili e l’attenzione ai dettagli hanno contribuito a ottenere un ambiente accogliente e funzionale per i futuri ospiti. Per il pavimento è stato scelto il linoleum (di Forbo), un materiale sostenibile ottenuto con materiali riciclati. I pannelli di rivestimento di alcune pareti sono in compensato marino, che garantisce una lunga durata nel tempo.

Morbido ed elegante il divano (modello Bolzano di BoConcept) in una tonalità calda bianco burro. Nera invece la lampada ad arco che illumina la zona conversazione e il tavolino.
La cucina incorniciata nella nicchia
La cucina (di Arredo3) è stata inserita all’interno di una grande nicchia. Bianca come le pareti, si mimetizza alla perfezione nonostante la cornice modanata che la individua e la fila di pensili alti in un’essenza chiara, che spezza e scalda l’uniformità del total white.
Utile accorgimento, la parete di fondo della cucina è protetta da un’alzatina in gres effetto marmo come il top, delimitata in alto da una mensolina nello stesso materiale, che oltre ad avere la funzionalità di piano d’appoggio aggiuntivo, regala un tocco estetico gradevole alla composizione, enfatizzato dall’illuminazione a led che scende dall’alto.
La porta mimetizzata dallo specchio
Un particolare accorgimento nasconde l’unica porta che conduce alla zona di servizio: per mimetizzarla e aumentare allo stesso tempo la percezione dello spazio all’interno dell’appartamento è stata rivestita in specchio e installata grazie a un binario a soffitto che ne ottimizza l’ingombro all’interno dell’ambiente.

La porta a specchio – che nell’immagine riflette la cucina sul lato opposto – crea un effetto di profondità e maggiore spazio.

Dietro alla porta a specchio, si trova il bagno, con un mobile in legno chiaro e lavabo da appoggio effetto marmo, cui è abbinato un rubinetto nero (Imex), colore di tendenza ripreso anche dalla cornice dello specchio con una pratica mensolina dove appoggiare alcuni altri prodotti.
Progettazione interni e styling: Archventil, Via Gian Battista Vico 42 – 20123 Milano, archventil.com
Foto: Alessandro Santi


























































