Nel nuovo progetto di una casa da ristrutturare, tra le prime decisioni da prendere, c’è proprio quella che riguarda la collocazione della cucina e le sue dimensioni: la si vuole separata o nel soggiorno open space? Schermata o a vista? Chiusa o aperta? Dovrà essere un ambiente piccolo, da usare solo per cucinare (e magari anche poco), o grande, da vivere in più momenti della giornata da parte di tutti i membri della famiglia? Dalle risposte a queste domande prende forma l’idea di cucina che ognuno di noi vuole (o può) realizzare nella propria abitazione.

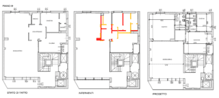
“In origine la cucina di questo appartamento era piccola e lontana dal soggiorno, disimpegnata da un piccolo vano. I nuovi proprietari, una famiglia con 4 figli, desideravano poter disporre invece di un ampio ambiente conviviale che fosse in stretta connessione con tutta la zona living.


La “luce” (cioè l’apertura sul muro) della porta vetrata (foto a sinistra) misura 210 cm di larghezza e 210 cm di altezza e viene posizionata al centro della nuova parete che si è costruita per delimitare la zona cucina.
Si progetta una disposizione dell’arredo semplice, su due lati paralleli e con un blocco centrale. Da un lato si decide di installare la zona operativa con fuochi, lavello, lavapiatti (foto sotto a sinistra), dall’altro, una parete attrezzata a tutta altezza (foto sotto a destra), con armadiature a colonna che contengono frigorifero, forno, cantinetta per i vini e – nella parte centrale – un vano chiuso da ante a libro in cui trovano spazio tutti i piccoli elettrodomestici.
Di ispirazione industriale, il serramento che chiude la cucina è realizzato su nostro disegno dal fabbro, con quattro ante: le due parti centrali saranno apribili e completamente ribaltabili sulle due fisse laterali; i vetri trasparenti, la struttura laccata a fuoco in laboratorio, color grigio antracite.
Al centro della cucina, un lungo bancone in pietra scura, in parte serve da contenitore, in parte come tavolo, attrezzato con sgabelli. A soffitto, sono state installate due lampade modello Spoke di Foscarini, che fanno luce sopra e sotto, creando un bellissimo gioco di luce a raggiera a plafone, molto bello da vedere anche dal soggiorno.
Per il pavimento della cucina (foto sopra), si è scelto di tenere il parquet del resto della zona giorno, prevedendo però un nuovo tappeto di piastrelle davanti alla zona del lavandino e dei fuochi, dove si lavora e si sporca di più. Abbiamo scelto piastrelle in gres (Estrela di Mutina), in bianco e nero, di sapore lievemente rétro ma con uno stile grafico che si abbina perfettamente allo stile moderno della casa.
La parete sopra il top della zona operativa è protetta con un’alzatina in lastre di un materiale in resina e quarzo; sopra la prima mensola, è invece dipinta di bianco mentre sopra la seconda mensola abbiamo scelto di tinteggiare con un colore grigio azzurro, per aggiungere un piccolo contrasto, che valorizza l’intero ambiente con un dettaglio decorativo eppure semplice: il risultato è stato sicuramente d’effetto rispetto alla scelta più scontata di tenere tutto il muro bianco. I mobili della cucina sono di Cesar, azienda che ha permesso di abbinare moduli standard di produzione ad altri fatti su misura, per un risultato completamente personalizzato.
Come ci eravamo immaginate, la cucina così progettata è diventata il fulcro di tutta la casa: i figli la usano anche per fare i compiti, la bimba più piccola disegna, la ragazza più grande si diverte a preparare torte… “.
Nella gallery, la trasformazione della cucina: prima senza divisione, poi chiusa dalla vetrata e arredata pezzo per pezzo
Progetto di interior design e foto: architetto Clara Bona


















































