Contenuti trattati
Che cosa è la serra solare? Scopriamolo all’interno degli appuntamenti di approfondimento coi nostri esperti sul tema “veranda“. La serra solare è una particolare veranda che, entro certi limiti, ha il vantaggio di non essere considerata un aumento di volumetria della casa. Si tratta di una soluzione sempre più utilizzata, soprattutto nelle case singole, ma che viene proposta anche per i terrazzi condominiali.
Serra solare: come fare per ricavarla
Risponde l’arch. Ornella Musilli – https://www.libera-design.it: Nel caso di serre solari, si tratta di sistemi bioclimatici passivi. Citiamo, a titolo di esempio, il Regolamento edilizio Milano e quello di Roma.
Nel caso di serre solari, si tratta di sistemi bioclimatici passivi. Entro determinati parametri che variano per Regione e Comune, si può realizzarle anche se non comprese in uno spazio abitabile di nuova costruzione o ampliamento, ma con destinazione esclusiva di captatore energetico, senza aumento di superficie abitabile ma sempre valutando in primis il rispetto dei vincoli storici e paesaggistici del contesto.
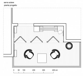
Serra solare: un progetto 3D
È stata ipotizzata ad un piano intermedio di un palazzo, con la chiusura di una piccola parte di terrazzo, tramite pareti vetrate (la copertura è costituita dalla sporgenza superiore del balcone). Gli infissi hanno apertura pieghevole e si affacciano sul resto del terrazzo.
Intesa esclusivamente come captatore energetico, deve rispondere a limiti normativi precisi che riguardano i requisiti di prestazione energetica dei componenti, la superficie e la forma, non è una zona abitabile che prevede la permanenza di persone ma è un volume funzionale al risparmio energetico.
Lo spazio progettato è quindi un ambito-filtro non riscaldato, esposto a sud, e arredato come orto urbano con sistemi per la coltivazione a parete.
Poiché la serra solare è arretrata rispetto al parapetto, la parte aperta restante del terrazzo sul davanti è allestita con arredi da esterno.
Che cosa dice la legge sulle serre solari
Citiamo, a titolo di esempio, il Regolamento edilizio Milano e, per quanto riguarda Roma, la Legge n. 6/2008 della Regione Lazio e la Deliberazione Comunale n. 7/2011.
√ Regolamento edilizio Milano, Art. 131 “SERRE BIOCLIMATICHE E SISTEMI PASSIVI DI CAPTAZIONE DELL’ENERGIA”
1. Le serre e i sistemi passivi per la captazione e lo sfruttamento dell’energia solare, realizzati negli edifici di nuova costruzione e negli edifici esistenti, non sono computati ai fini volumetrici purché rispettino tutte le seguenti condizioni:
- essere integrate nell’organismo edilizio;
- avere una profondità non superiore a 1,5 metri;
- avere superficie netta in pianta inferiore o uguale al 15% della superficie utile di ciascun subalterno a cui sono collegate;
- la superficie disperdente deve essere realizzata in elementi trasparenti con U ≤ 1,5 W/m2K per almeno il 50%;
- essere apribili per una superficie pari ad almeno un terzo dello sviluppo dell’involucro;
- essere dotate di schermature e/o dispositivi mobili o rimovibili, per evitare il surriscaldamento estivo, atte a ridurre almeno del 70% l’irradiazione solare massima durante il periodo estivo;
- garantire una riduzione pari ad almeno il 10% dell’indice di fabbisogno di energia primaria non rinnovabile per la climatizzazione invernale o il riscaldamento di ciascun subalterno a cui sono collegate; tale riduzione non è richiesta qualora la loro realizzazione avvenga nell’ambito di un intervento di ristrutturazione edilizia che coinvolga più del 25% della superficie disperdente dell’intero edificio a cui sono integrate e siano, di conseguenza, rispettati i requisiti di cui al D.D.U.O. 6480/2015;
- non essere dotate di impianto di riscaldamento o di raffrescamento.
Nel caso di serre e sistemi passivi per la captazione e lo sfruttamento dell’energia solare realizzati sulle facciate non orientate in un angolo compreso tra ±45° rispetto alla direzione sud, dovrà essere allegato, alla presentazione o alla richiesta del titolo, il file digitale (file .xml o eventuali aggiornamenti) con il dettaglio del calcolo eseguito a dimostrazione della riduzione del fabbisogno di cui sopra.
2. L’introduzione di impianti di riscaldamento o di raffrescamento comporta l’obbligo dell’inserimento delle relative superfici nel calcolo della s.l.p.
3. I locali retrostanti le serre devono rispettare quanto previsto dagli Articoli 103 (Aerazione naturale) e 105 (Requisiti di illuminazione naturale diretta). In particolare ai fini del calcolo del rapporto aerante potranno essere conteggiati anche i serramenti che si aprono sulle serre esclusivamente qualora ricorrano tutte le seguenti condizioni:
- la serra sia dotata di serramenti facilmente apribili e fronteggianti il serramento che si vuole utilizzare per la verifica;
- la superficie dei serramenti della serra fronteggianti l’apertura che si vuole utilizzare per la verifica non sia inferiore a un decimo della somma delle superfici in pianta della serra e del locale retrostante;
- i serramenti della serra prospettino su spazi di cui all’Articolo 103 comma 1 del presente Regolamento.
Legge Regione Lazio, n.6 del 27/05/2008 e s.m.i. – Disposizioni regionali in materia di architettura sostenibile e di bioedilizia – Capo IV – art.12 – Calcolo degli indici di fabbricabilità – comma 1.c
1. Al fine di favorire la realizzazione di edifici a basso consumo energetico, i comuni prevedono, per la determinazione dell’indice di fabbricabilità fissato dallo strumento urbanistico e fermo restando il rispetto delle distanze minime previste dalla normativa vigente, lo scomputo:
…
c) delle serre solari di dimensioni non superiori al 30 per cento della superficie utile dell’unità immobiliare, costruite sia in aderenza che in adiacenza, con almeno tre lati realizzati a vetro o materiali adatti allo scopo o con una superficie vetrata o di materiale equivalente di congrue dimensioni;
Comune di Roma – Deliberazione n.7 del 14 febbraio 2011 – riguardante variazioni ed integrazioni al vigente Regolamento Edilizio ed in particolare l’art.48/ter – Risparmio energetico e casi di esclusione dal volume imponibile e della superficie utile lorda.
- I sistemi bioclimatici passivi, come le serre captanti, nonché altri spazi strettamente funzionali al risparmio energetico per la captazione e lo sfruttamento dell’energia solare e il guadagno termico solare negli edifici, non sono computati nel calcolo dei volumi e delle SUL ammissibili purché rispettino le seguenti condizioni:
- dimostrino, attraverso calcoli energetici che il progettista dovrà allegare al progetto, la loro funzione di riduzione del fabbisogno di energia primaria per la climatizzazione invernale di una quantità pari ad almeno il 10% attraverso lo sfruttamento passivo e/o attivo dell’energia solare; le dimensioni in pianta non siano superiori al 15% della superficie utile dell’unità immobiliare connessa o dell’unità edilizia oggetto dell’intervento; la formazione della serra non deve determinare nuovi locali riscaldati o comunque locali idonei a consentire la presenza continuativa di persone (locali di abitazione permanente o non permanente, luoghi di lavoro, etc.); i locali retrostanti mantengano il prescritto rapporto di illuminazione e aerazione naturale diretta;
- se dotate di superfici vetrate siano provviste di opportune schermature e/o dispositivi mobili e rimovibili, per evitare il surriscaldamento estivo; il progetto deve valutare il guadagno energetico, tenuto conto dell’irraggiamento solare, calcolato secondo la normativa UNI, su tutta la stagione di riscaldamento. Come guadagno si intende la differenza tra energia dispersa in assenza del sistema bioclimatico e quella dispersa in presenza del sistema stesso; nel caso di serre solari, queste devono essere integrate prioritariamente nella facciata esposta nell’angolo compreso tra sud/est e sud/ovest.








































