Contenuti trattati
Nel periodo di forzata permanenza a casa dovuta alla pandemia da Covid-19, qualcuno ha iniziato a osservare che nei modernissimi living contemporanei – dove le funzioni (cucina, zona conversazione, zona pranzo e volte anche studio) si fondono in armonica convivenza – la mancanza di spazi separati in occasioni particolari può farsi sentire.
In effetti, quando tutti i componenti della famiglia sono fuori casa, è piacevole ritrovarsi e condividere gli spazi in allegria, ma quando li si devono invece usare tutti contemporaneamente per attività poco compatibili può diventare fonte di stress. Difficile concentrarsi, mentre qualcuno ascolta una videolezione o parla al telefono, guarda la tv o cucina con frullatore e cappa accesi.
È dunque giunto il momento della rivincita degli spazi separati? Probabilmente no, anche se la condizione attuale ci ha certamente reso propensi a un’ulteriore riflessione in merito.
Seguiamo l’architetto Clara Bona nel cantiere di una grande casa in cui gli spazi e le funzioni sono perfettamente separati e a sé stanti. In particolare, dopo avere già visto altri locali (i bagni, la nuova scala, i terrazzi), prendiamo in considerazione il progetto della cucina, resa più regolare e ingrandita a spese del corridoio a L, e del corridoio che – invece di risultare penalizzato – si avvantaggia ora di nuova luce naturale. Vediamo come.
Come far diventare luminosi corridoio e ingresso
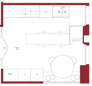
“In questa casa (sotto le planimetrie prima e dopo i lavori di ristrutturazione)”, dice Clara Bona, “la cucina è stata lasciata dove si trovava, adiacente all’ingresso. Le due finestre la rendevano molto luminosa, mentre invece l’entrata dell’appartamento risultava troppo buia. Come ribaltare in positivo anche questa caratteristica? Con il nuovo progetto abbiamo pensato di trasformare in modo radicale gli ambienti già dal primo passo dentro casa!
Due, quindi, gli interventi che hanno permesso di dare luminosità al corridoio e all’ingresso: si è deciso di allargare l’accesso alla cucina chiudendola con una grande porta vetrata al posto che con una tradizionale; e si è anche creata su un altro lato una sorta di finestra con vetri non apribili, che mettesse in connessione i due ambienti e lasciasse filtrare la luce naturale dalla cucina all’entrata (foto sotto).
In questa zona “finestrata” ha trovato spazio l’angolo dedicato alla zona pranzo, arredato con un tavolo rotondo (110 cm di diametro) con due sedie e una panca realizzata su misura attrezzata con cuscini come seduta. Di Flos la lampada bianca sopra al tavolo.
La vetrata tra cucina e corridoio
La nuova grande porta vetrata della cucina in legno laccat0 bianco (foto sotto) è stata realizzata da un falegname serramentista su disegno con il profilo meno grande possibile per questo tipo di materiale, circa 3 cm. Le quadrettature sottili, senza dettagli arrotondati, ne ingentiliscono lo stile: non doveva essere una vetrata di sapore industriale, ma un modello più adatto a un appartamento tradizionale.
Nelle foto della gallery sotto, si vedono la fase di costruzione in laboratorio, quando abbiamo verificato che tutto fosse come volevamo, e poi quelle di montaggio in cantiere. E il risultato finale è proprio quello che avevo immaginato!
Foto montaggio vetrata
Nella cucina, spazio d’angolo ben sfruttato anche sotto la finestra
Poiché anche in una casa grande lo spazio va utilizzato al meglio e senza sprecarne nemmeno un po’, la zona operativa della cucina (quella con fuochi, lavapiatti e lavello) si sviluppa in successione su una parete, per risultare più pratica nell’utilizzo; poi le basi “girano” sotto alla finestra, mentre i pensili si interrompono per lasciare libera l’apertura dell’infisso e non ostacolare l’ingresso della luce. La composizione prosegue con un’isola centrale, che viene utilizzata come piano di lavoro e come contenitore, perché nella parte inferiore è attrezzata con basi apribili sui due fronti. Questa soluzione consente di avere a portata di mano quanto serve sia nella zona pranzo, sia nella zona di lavoro.
L’illuminazione è risolta con piccole luci a sospensione (Flos) che scendono sul bancone centrale e illuminano questa zona in modo diretto. Altra fonte di luce è una lunga barra a led incassata sotto ai pensili, che non si vede quando è spenta, ma rende più pratico lavorare ai fornelli e al lavello.
Stile essenziale ma lievemente rétro per la cucina
I mobili sono essenziali ma lievemente rétro: le ante hanno una cornice riquadrata, e non sono lisce come invece si usa molto in questo periodo. Altro dettaglio in stile sono i pomoli utilizzati al posto delle maniglie: sono un modello realizzato a mano in fusione (ferramenta Spinardi di Milano), con un disegno a spirale, in acciaio satinato. I pensili invece non hanno maniglie: si aprono prendendo le ante da sotto.
Il top è stato realizzato in marmo di Carrara, con un’alzatina bassa (10 cm) che corre lungo i mobili. Solo nella parte dei fuochi si alza fino ai pensili, dove c’è anche la cappa a scomparsa, incassata così da essere invisibile.
La scelta dei colori dei mobili e della parete
Per non appesantire troppo l’insieme, ma per renderlo gradevole e accogliente, bisogna sapere dosare i colori, in modo da conferire all’ambiente una personalità distintiva ma anche da valorizzare la luminosità.
Per i mobili – realizzati su misura da un mobiliere di fiducia (Mobilart), con campioni di colore scelti da noi – per la parte bassa si è selezionato un blu polvere (di Sikkens), con il quale sono state dipinte anche alcune pareti dell’ingresso, mentre per la parte alta (i pensili e le armadiature a colonna) il laccato bianco, che ha alleggerito visivamente il tutto.
Delle pareti, una sola – quella dietro alla zona operativa – è stata dipinta con uno smalto satinato verde chiaro. Il pavimento è lo stesso del resto della casa: un parquet in rovere desaturato, posato a spina francese.
Sulla parete di fronte, invece sono sistemate le armadiature a colonna con frigorifero, freezer, armadio per le scope, colonna forni. Dopo questo blocco, in quella sorta di nicchia che abbiamo visto in una foto precedente, è inserita la zona pranzo con la vetrata fissa che illumina l’ingresso retrostante.
Foto montaggio mobili cucina
Progetto di interior design e foto: architetto Clara Bona



























































