Contenuti trattati
Organizzata su un solo livello, questa abitazione di 95 mq, situata al piano terra di una villa nella campagna marchigiana, è affacciata sul giardino circostante, da cui trae la luminosità e gli scorci verdi inquadrati dai serramenti esterni. Peculiarità che contraddistinguono il progetto degli interni, modulato sulle tinte chiare e su una brillante tonalità di verde-azzurro Tiffany per creare ambienti di segno minimale ma rilassanti, pensati – su richiesta della coppia di committenti – per viverci e per lavorarci.
Foto appartamento di 95 mq
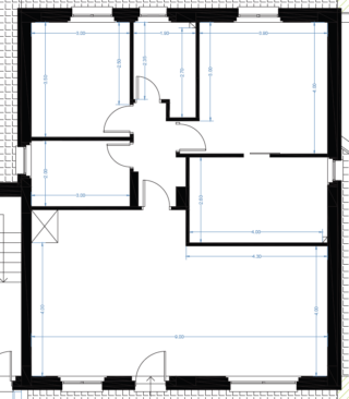
Il progetto: planimetria con arredi
La distribuzione funzionale degli spazi prevede una netta separazione tra zona giorno e notte, con ingresso alla casa di 95 mq baricentrico rispetto al soggiorno e alla cucina. Quest’ultima è aperta, organizzata a L con un grande tavolo centrale e una composizione che per stile e colori dialoga con la parete attrezzata che la fronteggia.
L’area notte, completata da due bagni (di cui uno più grande per gli ospiti, con lavatrice), prevede un’ampia stanza guardaroba, collegata direttamente alla camera da letto, e uno studio, posizionato all’estremità più tranquilla dell’abitazione. Una seconda postazione per l’home office è ricavata nella zona giorno, integrata nella parete di fondo.
Video zona giorno prima e dopo la ristrutturazione
Soggiorno con caminetto a tutta altezza
Protagonista della zona giorno è il caminetto angolare, inserito in un volume a tutta altezza rivestito da leggere lastre ceramiche nere (mentre in origine era tinteggiato di rosa-viola come nel video del prima), che interrompe in modo deciso la leggerezza della parete attrezzata. Un elemento tecnico-funzionale che – al pari del grande televisore – volutamente si discosta cromaticamente dal resto dell’ambiente.

Alla sporgenza del focolare, rivestito con lastre Blend Nero di Laminam, fa da contraltare una postazione lavoro integrata nella libreria al fondo del soggiorno. Tutto l’insieme è declinato in bianco, come il divano con pouf coordinato di Ditre Italia e la struttura del mobile tv di Alf da Frè, dall’inedito e moderno tocco di colore Tiffany sullo schienale dei vani a giorno. La pavimentazione, comune all’intera casa, è in gres porcellanato effetto parquet di Tagina.
Illuminazione differenziata con il controsoffitto
Nell’ampia zona giorno una parziale controsoffittatura accompagna e definisce lo sviluppo delle composizioni sia della parete attrezzata sia della cucina. Realizzata con lastre di cartongesso, tecnica a secco pulita e veloce, questa sorta di cornice diventa supporto per una serie di faretti incassati, che vanno a completare in modo più puntuale il progetto di illuminazione della casa.

La cornice a soffitto che delimita gran parte del perimetro dell’intera area giorno dinamizza la regolarità del volume architettonico. E grazie ai punti luce a incasso definisce luminose isole funzionali, indipendenti dal resto del sistema.
Cucina a vista con tavolo centrale scenografico
La cucina, a vista sul soggiorno, da cui è separata solo dallo schienale del divano a 3 posti, è organizzata con una composizione a L con grande tavolo centrale. Declinata in bianco e Tiffany, come gli arredi dell’area relax con cui dialoga, è resa particolarmente luminosa dalla presenza di una grande portafinestra, attraverso la quale è possibile raggiungere una zona pranzo esterna, in giardino.
Video cucina prima, senza mobili

Lo scenografico tavolo centrale di Lago, con piano di rovere, nonostante la matericità sembra fluttuare nell’aria grazie alla base di cristallo, smaterializzata dalla luce naturale. Il legno scalda l’architettonico grigio chiarissimo di basi e colonne della composizione di Veneta Cucine, dinamizzato anche dalle inserzioni in colore azzurro-verde per pensili a fascia e vani a giorno.


Un modo apprezzabile di spezzare l’uniformità di una cucina di colore chiaro è quella di inserire un modulo con vani a giorno colorato a contrasto.
Uno studio con “banco da lavoro”
Lo studio, posizionato all’angolo opposto della casa rispetto alla cucina, lontano dagli ambienti più rumorosi e affacciato sul verde del giardino, è pensato per aiutare la concentrazione e il lavoro intellettuale. Gli arredi sono essenziali, come nel resto della casa, ma protagonista è un vero e proprio “banco da lavoro” costruito concettualmente come il tavolo della cucina: piano spesso di rovere e struttura portante di cristallo trasparente che scompare alla vista grazie all’intensa luminosità dell’ambiente.

L’originale scrivania è di Lago, mentre la pavimentazione è come quella del resto della casa, vale a dire gres porcellanato effetto parquet di Tagina. Trait d’union anche la poltroncina di Maisons du Monde con la seduta imbottita, uguale a quella dell’angolo home office del soggiorno.
Prima e dopo: dalla parete tinteggiata grigio alla carta da parati verde
La camera matrimoniale, originariamente caratterizzata da una parete grigio spento, è stata rivista con un arredamento essenziale in tonalità calde e naturali. Spicca la parete di fondo – dietro alla testiera del letto tessile – rivestita con carta da parati in una inusuale tonalità di verde, che è stata qui preferita per portare anche all’interno i colori del contesto circostante e sottolinearne l’apprezzamento. Ai lati del letto, per lasciare liberi comodini, sono state previste delle applique di colore nero, prive di ogni sovrastruttura o elemento decorativo, rimandano invece a un gusto industrial.
Stanza guardaroba con angolo “beauty”
Il guardaroba collegato alla camera matrimoniale, più che una semplice cabina armadio, è un vero e proprio spazio per la cura personale, appartato e discreto rispetto al resto della casa. La generosità della superficie (resa possibile dai 95 mq di estensione dell’intero appartamento e dalla razionalità dispositiva dei locali) ha permesso infatti di inserire sia una armadiatura capiente sia un piccolo angolo “beauty” per la pulizia del viso e il trucco. Tavolino a consolle con specchio e sgabello in stile vagamente rétro danno carattere all’insieme, rendendo sofisticata e meno anonima una stanza accessoria.
Bagno in verde effetto piscina
La stanza da bagno, come tutti gli ambienti dell’abitazione affacciata sul giardino circostante, entra in risonanza con l’esterno mutuandone la tinta. Pavimento e rivestimento, nel medesimo materiale, ad effetto piscina, sono infatti in tonalità naturale, ritmati dagli accenti scuri della rubinetteria, dello scaldasalviette, degli accessori (come il porta-salviette freestanding o la placca a muro della cassetta wc).

Rivestimento e pavimento gres porcellanato Apogeo di Tagina.
Progetto interior design: Eligio Torre Design Office, via Appia Nuova 185, Roma, tel. 06 68 58 67 93 – https://www.eligiotorre.it
Fornitore arredi: Palma Arredamenti
Foto: Ginevra Brizioli




























































