Quesito di Raffaele F.: Come arredare una zona giorno fatta ad “L” dove l’ingresso rischia di togliere spazio al soggiorno e alla cucina? Quest’ultima mi piacerebbe fosse separata da divisori e attrezzata con un tavolo grande o allungabile per le cene con famigliari e amici. Data la mia passione per la lettura, non vorrei mancasse una capiente libreria.
- Risponde l’architetto Paolo Mereghetti – studio M&C Architetti Associati, Milano – https://www.mec-architetti.it
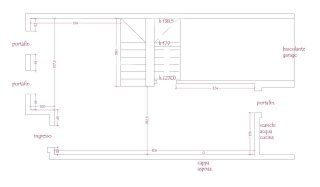
Il soggiorno a “L” dell’appartamento è caratterizzato da un’ampia zona ben illuminata da due portefinestre e da un ambiente, il lato lungo della L che conduce allo spazio della cucina, con funzione di disimpegno rispetto alla scala di accesso ai piani superiori ed alla porta di accesso al garage. Il progetto proposto prevede la valorizzazione degli spazi riducendone, dove presente, la connotazione di spazi di servizio destinati alla distribuzione e al disimpegno. Lo spazio destinato all’ingresso è stato quindi visivamente ridotto e confinato mediante un elemento di separazione, una “quinta” semitrasparente che senza ridurne la profondità identifica la zona di ingresso e la separa dalla zona pranzo.
A sinistra dell’ingresso, l’angolo relax con il divano, la parete attrezzata per la televisione, i libri, l’impianto di diffusione sonora. Da qui si potrà godere dell’illuminazione proveniente dalle portefinestre. La scala a vista contribuirà a caratterizzare e ad ampliare la percezione degli spazi. Oltre la quinta semitrasparente è prevista la zona pranzo, comunicante attraverso una parete vetrata ad ante scorrevoli con la cucina. Elemento d’unione tra i vari ambienti è una libreria a tutta altezza che dall’ingresso si sviluppa attraverso la zona pranzo sino alla parete della cucina. Volutamente tutti gli elementi di separazione sono stati pensati trasparenti per non ostacolare la diffusione della luce all’interno degli ambienti e in particolare nella zona pranzo che, essendo la più interna, rischierebbe altrimenti di restare poco illuminata.











































