Contenuti trattati
Unire cucina e soggiorno è un’esigenza sempre più sentita, non solo per rendere la zona giorno più spaziosa ma anche più conviviale, più in linea con i nuovi stili di vita. È un intervento che nella maggior parte dei casi, a cascata, coinvolge anche altri ambienti della casa, con risvolti spesso positivi. Vediamo come i nostri esperti hanno risolto tre situazioni completamente differenti.
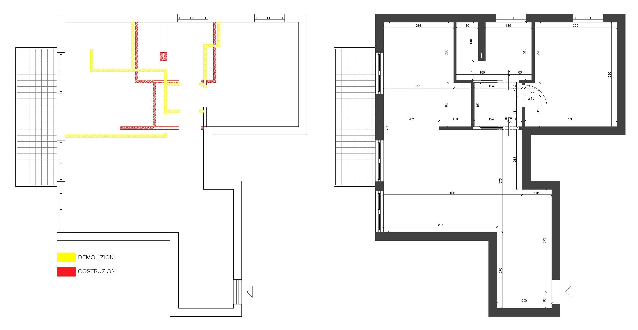
1) Cucina e soggiorno diventano open space, bagno la camera guadagnano spazio utile, il disimpegno accoglie la lavanderia
Per il bilocale con cucina indipendente e ambienti spaziosi ma di forma poco convenzionale, il nostro lettore Paolo C. ci ha chiesto come poter trasformare la cucina e il soggiorno in open space dedicando spazio a una zona pranzo “flessibile” per un tavolo allungabile e mantenendo una separazione almeno visiva fra i due ambienti. Cogliendo al contempo l’occasione della ristrutturazione, per riorganizzare anche il bagno in modo più razionale, ricavare un angolo lavatrice e rettificare la forma della camera da letto.
Vediamo due soluzioni proposte dall’arch. Federico Riva, partendo dall’analisi dello stato di fatto. L’appartamento ha un ingresso generoso aperto sul soggiorno da cui si accede alla cucina separata (che comunica con un ripostiglio) e a un disimpegno su cui affacciano la camera da letto e il bagno diviso in due da una semi parete. La parete di confine fra il bagno e la camera genera un sistema di nicchie che vincola la disposizione degli elementi d’arredo in entrambe le stanze.
Soluzione 1: cucina e soggiorno aperti ma separati da una libreria bifacciale
In questa prima soluzione vengono eliminate la parete divisoria fra la cucina e il soggiorno e quella fra la cucina e il ripostiglio, in questo caso a favore di una zona cottura più ampia.
Viene regolarizzata la forma del bagno e di conseguenza quella della camera da letto e ampliato il disimpegno per ricavare la zona lavanderia.
Dal ridisegno della pianta, fra la cucina e il disimpegno si genera una nuova nicchia sfruttata sul lato della cucina per inserire due moduli a colonna per il frigorifero e la dispensa. La zona operativa, attrezzata con basi e pensili, è invece concentrata sulla parete di fondo. A centro stanza c’è posto per un tavolo rettangolare per 6 persone abituali ma allungabile all’occorrenza.
Come filtro tra la zona cottura/pranzo e il soggiorno è prevista una libreria su misura che ingloba anche la porta del disimpegno, composta da cinque moduli larghi un metro ciascuno:
quelli più esterni sono a ponte sopra le aperture verso la zona notte e la cucina.
In salotto, sono previsti un divano a L rivolto verso la libreria con vano portatv e due tavolini. Nella zona d’ingresso, una consolle e una poltroncina di fronte alla porta, e alla destra di quest’ultima un appendiabiti a parete e un mobile contenitore.
Nella zona notte sono state apportate poche modifiche per regolarizzare e rendere più confortevoli i locali. Nello specifico la camera da letto ha assunto una forma più regolare mantenendo lo spazio per un ampio armadio a muro.
Nel bagno, invece, viene mantenuta una configurazione simile a quella attuale con una nicchia per la doccia alle spalle dei sanitari. In questo caso però, viste le dimensioni, è stata scelta una doccia walk-in, cioè senza chiusura. La porta del bagno è stata spostata il più possibile a destra per evitare di vedere direttamente i sanitari entrando nel locale.
Nel disimpegno è stata ricavata una nicchia ripostiglio e un vano per la lavatrice.
ARREDO
1. consolle – 120×45 cm 2. poltroncina – 60×60 cm 3. appendiabiti 4. mobile contenitore – 160×45 cm 5. divano a L – 320×160 cm 6. tavolini bassi – diam. 80 e 60 cm 7. libreria – 200×30 cm 8. libreria – 100×30 cm 9. cucina, moduli alti – 160×65 cm 10. tavolo – 150×75 cm 11. cucina, moduli bassi – 255×65 cm 12. vano lavanderia – 160×70 cm 13. mobile lavabo – 120×40 cm 14. sanitari – 35×55 cm l’uno 15. doccia walk-in – 140×80 cm 16. armadio a muro – 335×60 cm 17. scaffale – 100×30 cm 18. poltroncina – 50×50 cm 19. comodino – diam. 50
Soluzione 2: cucina e soggiorno aperti, divisi visivamente dal divano
Nella seconda soluzione viene massimizzato lo spazio dedicato alla zona giorno con un’area pranzo molto ampia che può ospitare un tavolo di dimensioni maggiori. Come nella soluzione precedente, la cucina si sviluppa nella parete di fondo, questa volta con una configurazione a L.
Non sono presenti divisioni tra la zona cottura e il soggiorno e lo spazio viene tenuto completamente aperto.
In salotto, il divano è girato in posizione speculare rispetto alla soluzione precedente: dà le spalle alla zona cottura ed è invece rivolto verso la parete opposta a cui è stata appoggiata una grande libreria modulare/mobile TV: in questa posizione funziona come elemento divisorio fra le due aree funzionali.La zona notte presenta una configurazione simile alla precedente con alcune differenze nel bagno e nella camera da letto. Per garantire maggiore agio nell’angolo cottura, la porzione di bagno che ospitava la doccia è stata ceduta alla cucina. La nuova doccia è posizionata di fianco ai sanitari in una nicchia ricavata appositamente. Di conseguenza il bagno è più lungo rispetto alla soluzione precedente. Per questo motivo la porta della camera da letto è stata spostata più in basso e la prima parte dell’armadio è stata sostituita da alcune mensole con minore profondità.
Come nella soluzione precedente, è stata ricavata una nicchia ripostiglio con la lavatrice nel disimpegno.
ARREDO
1. consolle – 120×45 cm 2. poltroncina – 60×60 cm 3. appendiabiti 4. mobile contenitore – 160×45 cm 5. libreria – 300×35 cm 6. divano a L – 250×160 cm 7. tavolino basso – diam. 60 cm 8. tavolo – 180×80 cm 9. dispensa – 125×35 cm 10. cucina – 345×160 cm 11. vano lavanderia – 160×70 cm 12. mobile lavabo – 160×40 cm 13. sanitari – 35×55 cm l’uno 14. doccia – 110×80 cm 15. mensole – 115×20 cm 16. armadio – 220×60 cm 17. scaffale – 100×30 cm 18. poltroncina – 50×50 cm 19. comodino – diam. 50 cm 20. letto – 160×200 cm
2) Unire soggiorno e cucina: progetto in 3D con tre vantaggi
Una doccia più grande, una lavanderia nascosta e una cameretta più ordinata sono i 3 plus ottenuti dal progetto di ristrutturazione che permette di unire soggiorno e cucina di questo trilocale. Piante e viste 3D.
In un trilocale per 4 persone, con cucina separata e ripostiglio, si sentiva l’esigenza di rendere la zona giorno più vivibile per l’intera famiglia: unire cucina e soggiorno avrebbe permesso di ricavare un unico locale più grande e fruibile, ampliando la prospettiva.
Approfittando dei lavori per ottenere l’openspace che, comportando la demolizione di una parete, necessariamente richiedevano la presentazione di una pratica in Comune da parte di un architetto (o di un geometra o di un ingegnere), si potevano decisamente modificare anche altri aspetti della casa, piccoli limiti che – una volta eliminati – avrebbero comportato un miglioramento non trascurabile.
Primo fra tutti i vantaggi del nuovo progetto, quello di riuscire a ricavare uno spazio lavanderia nascosto. Per fare questo era necessario capire dove “aggiungere” un’armadiatura a colonna con lavatrice ed asciugatrice a incasso, senza penalizzare la cucina o il bagno. Questo obiettivo è stato centrato grazie alla nuova nicchia ritagliata nel disimpegno, ottenuto dalle modifiche al precedente corridoio che per forma e dimensioni non poteva essere invece sfruttato in alcun modo.

Dai vantaggi “accessori” torniamo però al motivo principale che aveva portato alla ri-progettazione e alla ristrutturazione dell’appartamento, ovvero l’esigenza di unire soggiorno e cucina in un unico ambiente open space; divisi, i due ambienti risultavano abbastanza piccoli mentre, accorpati fra loro, le potenzialità si amplificavano in termini soprattutto di resa estetica.
Quanto allo stile, la giovane coppia di proprietari propendeva per un gusto contemporaneo con linee minimali. Il colore predominante nel progetto e nelle viste 3D è il grigio, sia per gli arredi, sia per il pavimento effetto cemento, accostato a qualche elemento in legno e a qualche tocco cromatico che rende il tutto fresco e rilassante.
Nella soluzione proposta dal nostro architetto Elisa Coffinardi, eliminando la parete di divisione tra i due locali, si è creata una zona living ampia con una cucina ben organizzata, composta da una parete lineare, una penisola che funge sia da piano di lavoro sia da piano snack e da colonne forno e frigo incassate.
Il tavolo da pranzo tondo e comodo per 4 è collocato vicino alla cucina;la zona relax si sviluppa con un grande divano dalla forma irregolare e arrotondata che permette una maggiore fruibilità degli spazi senza rinunciare a una parete tv attrezzata.
Un controsoffitto con faretti e gole led va a enfatizzare le linee non ortogonali del living e delimitare la zona dell’ingresso.
3) Come creare un collegamento tra soggiorno e cucina separati
Soggiorno, cucina e zona pranzo sono ormai uniti in open space nella maggior parte dei progetti, nella case grandi e a maggior ragione in quelle più piccole. In queste però, a volte, può risultare più difficile trovare una soluzione senza “difetti” e che soddisfi tutte le esigenze dei proprietari.

Nel piccolo appartamento di 55 mq (pianta sopra), la cucina/pranzo è completamente isolata dal soggiorno. Infatti, non sapendo come utilizzare l’ingresso abbastanza spazioso, gli ex proprietari avevano posizionato un armadio a muro davanti alla porta d’ingresso, dividendo cottura e living.
Come si potrebbe utilizzare questo spazio e collegare meglio i due ambiti fra loro e con la zona pranzo, e avere anche magari un’entrata un po’ separata (per esempio con scaffali)?
4 soluzioni di progetto per collegare cucina e soggiorno
L’elaborato contiene quattro ipotesi progettuali, in tutte le soluzioni sono state demolite le tramezzature che schermavano il soggiorno dall’ingresso.
Inoltre viene in tutte previsto lo spazio filtro dell’antibagno, così come prescritto dalla normativa in materia.
La cucina non cambia posizione, per la collocazione degli impianti, ma risulta in tutte ingrandite e aperta sull’ingresso.
Il bagno, infine, è organizzato con gli arredi necessari più una lavatrice slim, con profondità di 45 centimetri.
Il progetto – finalizzato a collegare soggiorno e cucina – si incentra quindi sul fulcro del disimpegno di ingresso, che nelle 4 soluzioni proposte risulta diversamente modificato.
La nostra soluzione preferita è l’ultima che vi presentiamo, la D, perché libera maggiormente gli spazi, che restano organizzati in modo più razionale, senza perdere nulla a livello d’arredo, come numero di contenitori e capienza.
- nella soluzione A, l’ingresso ha una nuova parete inclinata che favorisce quel senso di apertura e maggiore collegamento di soggiorno e cucina con la zona pranzo, a dispetto della parete portante e del pilastro che non permettono di eliminare la divisione dei due ambienti. Il tavolo da pranzo viene avvicinato al soggiorno.
- nella soluzione B è stata creata una rientranza in cui sono inserite delle colonne cucina. Di fronte viene sistemato il tavolo da pranzo, sotto a una sorta di soluzione a ponte che permette di avere più vani contenitore per la cucina.
- nella soluzione C ha un angolo stondato

- nella soluzione D, la zona giorno e il disimpegno bagno guadagnano spazio e vivibilità, il tavolo diventa esso stesso punto di collegamento e unione fra soggiorno e cucina. Tutto questo grazie alla scelta di creare l’accesso alla camera all’interno del soggiorno e alla scelta di nuove porte interno muro, scorrevoli salvaspazio. Il bagno diventa più piccolo per lasciare spazio alla zona pranzo, ma non perde nulla perché la doccia viene collocata nell’antibagno.



























































