Quando il soggiorno con cucina non è di dimensioni rilevanti spesso non è semplice trovare la giusta collocazione per le diverse funzioni. Spesso, iniziando la progettazione dalla cucina, la cui collocazione è decisa dalla posizione degli allacciamenti degli impianti, bisogna valutare con attenzione come dividere lo spazio rimanente tra zona pranzo e zona conversazione, oltre che per l’ingresso. Ecco il progetto che il nostro architetto Ornella Musilli ha preparato per la lettrice Rita L., che si trovava proprio in questa situazione.
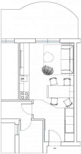
La conformazione planimetrica regolare della parte di soggiorno-pranzo-cucina vicina al terrazzo si aggiunge, verso l’ingresso, a una superficie resa irregolare da due rientranze che determinano un doppio restringimento. Nel piccolo locale devono essere concentrate più destinazioni d’uso: l’entrata/distribuzione, la zone pranzo, il soggiorno e la cucina.
La soluzione progettuale punta al posizionamento degli arredi più frequentemente utilizzati (cucina, divano e tavolo da pranzo) nella parte più ampia del locale. Vengono sistemati invece nell’area dell’entrata, più strette e meno illuminate, l’armadio con frigo/congelatore e dispensa più un piccolo guardaroba; sulla parete opposta, il radiatore esistente e lo specchio.
La zona con piano cottura, forno, lavello e piano lavoro è collocata lungo il tramezzo che divide il soggiorno dalla camera. In linea con questa e separata da un vetro di protezione, c’è una base sospesa con la tv, integrata con la cucina ma a servizio del soggiorno; tutto è sormontato da contenitori pensili.
Sulla parete opposta, si trova una boiserie attrezzata con mensole e pensili che definisce le aree pranzo e relax; vi si appoggiano infatti il tavolo scorrevole ed il divano.
Un controsoffitto uniforma l’area più articolata all’entrata dell’appartamento.







































