Sfruttare lo spazio in un piccolo bilocale. Progetto in 3D

Le soluzioni progettuali adottate - eliminare il corridoio e accorciare la cucina - hanno consentito di sfruttare lo spazio disponibile migliorando notevolmente l'estetica del bilocale.

Architetto Elisa Coffinardi
A cura di Architetto Elisa Coffinardi
Pubblicato il 02/10/2018Aggiornato il 10/01/2025
progetto 3D per sfruttare lo spazio

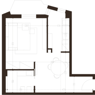
Quando una casa è piccola, non ci si può permettere di perdere nemmeno un centimetro: si deve sfruttare lo spazio mantenendone la vivibilità e anzi migliorarne l’estetica.pianta stato di fatto bilocale È l’obiettivo che l’architetto Elisa Coffinardi ha perseguito nel riprogettare questo mini bilocale con cucina separata, un ambiente dalla forma lunga e stretta, e un secondo vano con finestra, adibito prima a sola camera matrimoniale. Il piccolissimo bagno era cieco e il corridoio d’ingresso risultava inutilizzato. Il difetto principale dell’appartamento era la mancanza di una zona giorno. Come sfruttare lo spazio in modo da risolvere le problematiche?

L’idea è stata quindi quella di demolire parte delle pareti di cucina e camera per sfruttare lo spazio creando un ambiente aperto che potesse contenere una piccola zona pranzo vicina alla cucina e trasformare la camera in un ambiente a doppia funzione (zona notte e zona giorno), da arredare con un divano letto.
 
Questo ha permesso di dare maggior respiro a tutta la casa, migliorandone notevolmente l’impatto visivo oltre a sfruttare lo spazio nel modo più opportuno. Prima infatti, entrando in casa, si accedeva in uno stretto quanto inutile corridoio; grazie al progetto l’ingresso diventa ampio e aperto su altri ambienti, cosa che consente un effetto visivo di maggiore spazio.  
 
 
pianta bilocale ristrutturato che diventa monolocale
La zona pranzo vicino all'ingresso è arredata con un grande specchio che amplia visivamente lo spazio.

La zona pranzo vicino all’ingresso è arredata con un grande specchio che amplia visivamente lo spazio. La parete di appoggio è di nuova costruzione e consente dal lato della zona conversazione di accogliere in nicchia l’armadiatura del soggiorno/camera.

Nel nuovo soggiorno/camera la zona armadi viene mascherata sulla parete comune con il bagno.

Nel nuovo soggiorno/camera l’armadio viene inserito in una rientranza della parete appositamente costruita. Frontalmente al divano letto trova spazio il mobile tv.

Il bagno è stato anch’esso ampliato per creare una grande doccia con nicchie e una zona lavabo ben definita. Con l’inserimento di un abbassamento in cartongesso, con faretti e strip led si è cercato di dare massima luminosità all'ambiente privo di finestra.

Il bagno è stato anch’esso ampliato per creare una grande doccia con nicchie e una zona lavabo ben definita. Con l’inserimento di un abbassamento in cartongesso, con faretti e strip led si è cercato di dare massima luminosità all’ambiente privo di finestra. Il colore rosso è protagonista nel bagno, con le piastrelle tipo cementina e le fasce delle nicchie in finitura Microcemento®.

La cucina diventa angolo cottura ed è stata accorciata per far spazio alla zona pranzo pur riuscendo a contenere una comoda parete operativa e basi frontali in profondità ridotta.

La cucina lunga e stretta è stata accorciata e per far spazio alla zona pranzo. Ciononostante sfrutta al massimo le pareti per contenere: su un lato con basi da 60 cm in profondità, sull’altro con basi a profondità ridotta. Due pratiche mensole, che aumentano lo spazio d’appoggio in aggiunta a quello del top, offrono superficie utile per sistemare piccoli elettrodomestici di uso frequente, come centrifughe o frullatori.

I lavori da fare: demolizioni e costruzioni

progetto bilocale demolizioni costruzioni

 

Iscriviti alla nostra newsletter

Riceverai una volta alla settimana una mail con i più significativi articoli del nostro sito divisi per categoria. Riempi il form col tuo indirizzo mail e sarai automaticamente iscritto alla newsletter.
Come valuti questo articolo?
12345
Valutazione: 3 / 5, basato su 5 voti.
Avvicina il cursore alla stella corrispondente al punteggio che vuoi attribuire; quando le vedrai tutte evidenziate, clicca!
A Cose di Casa interessa la tua opinione!
Scrivi una mail a info@cosedicasa.com per dirci quali argomenti ti interessano di più o compila il form!