Contenuti trattati
Quando un giovane acquista casa, specie se da solo, spesso non ha la possibilità di intervenire da subito con ingenti e costosi lavori di ristrutturazione. Col passare del tempo, però, l’esigenza di rendere la casa più comoda, accogliente e attuale in fatto di finiture e colori può essere soddisfatta con interventi non troppo invasivi che possiamo definire di relooking, come per esempio il cambio di tinta alle pareti e agli infissi o il rivestimento dei vecchi pavimenti con soluzioni low cost, veloci da posare sopra gli esistenti senza la rimozione per esempio delle piastrelle.
Ecco il progetto per un lettore che ci ha chiesto consiglio per il suo il trilocale al primo piano, poco luminoso.
Che cosa cambiare
- Quale essenza per il pavimento? In vero legno o in laminato?
- Tinteggiare i muri con pitture decorative
- Come abbinare colori e finiture di pavimento, pareti e porte?
- Come risolvere la parete con nicchie create dai pilastri, vicino all’ingresso
Che cosa conservare
- mantenere gli infissi in pvc bianco
- mantenere la cucina esistente, con la possibilità di colorare solo le ante e/o le piastrelle, anche se il verde acqua attuale non dispiace
- mantenere i mobili esistenti ma in camera sostituire armadio e cassettiera
In questo primo articolo ci concentriamo sulla zona giorno, con la proposta di 4 soluzioni (ciascuna composta da moodboard e progetto in pianta) e sull’ingresso (per il quale alla fine dell’articolo trovi una proposta alternativa)
Restyling zona giorno: 4 moodboard
Le 4 soluzioni modificano gradualmente lo stato di fatto. In rosso vengono date le indicazioni cromatiche, relative ai materiali e ai cambiamenti apportati.
Nelle soluzioni A e B gli arredi sono tutti conservati. In entrambe, le modifiche riguardano il pavimento, il colore di porte, piastrelle e pareti, tende e tessuti. Nella seconda, anche le maniglie e le placche di comando elettrico; inoltre è inserito un secondo colore per i trattamenti decorativi delle pareti.
Nelle soluzioni C e D è ampliato il varco fra soggiorno e ingresso, attraverso la demolizione di una paretina e del muretto basso vicini al divano, in questo modo l’uso del tavolo da pranzo è più funzionale. In entrambi, è sostituito il mobile all’ingresso, che viene ora abbinato a mensole e pensili in soggiorno, nonché dipinte di bianco le ante della cucina. Viene inoltre inserita una porta filo muro in vetro per formare uno spazio filtro con zona notte e bagno. Nella soluzione D è modificata anche la cucina, per ottenere una zona tv più ampia su basi ribassate.
La tavola riepilogativa divisa in bande orizzontali riporta per ogni soluzione, i 4 prospetti e il moodboard associato.
Nelle tavole finali, proponiamo anche un’idea per la rientranza all’ingresso.
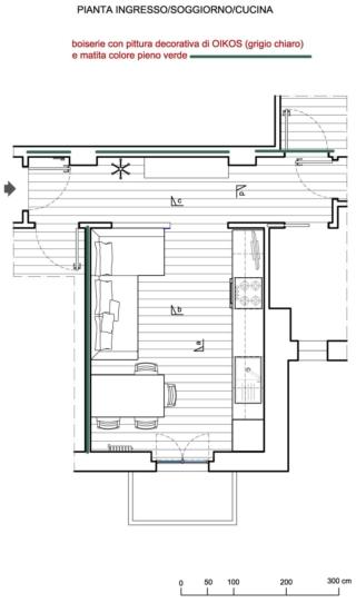
Soluzione A
Vengono conservati gli arredi esistenti. Per il pavimento è stato scelto un laminato effetto legno chiaro. Le porte sono in finitura laccata bianca. Bianchi, anche le piastrelle della cucina, così come le tende a pannello, le comici per stampe (di Ikea), la lampada sul tavolo da pranzo (Neuro di Davide Groppi) e quella nel disimpegno (di Kartell). Sono state invece conservate le ante color verde acqua della cucina, cui vengono abbinati cuscini e altri accessori. Uno specchio rotondo all’ingresso contribuisce ad aumentare la luce e dilatare lo spazio. Le pareti vengono tinte con una pittura decorativa color grigio chiaro (di Oikos, come nelle successive soluzioni).
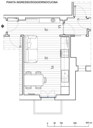
Soluzione B
Anche in questa ipotesi il pavimento è in laminato, effetto rovere chiaro; cambiano alcuni colori e il disegno delle tinteggiature, le maniglie sono uniformate dal punto di vista cromatico, le placche di comando elettriche sono bianche. Dietro al divano, una boiserie tinta con pittura decorativa color grigio chiaro e delimitata da una “matita” in colore pieno verde.
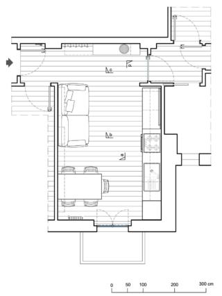
Soluzione C
Le ante della cucina sono state verniciate di bianco (ciò ha permesso di conservare gli arredi esistenti). Si realizza l’antibagno con l’installazione di un tramezzo e di una porta a battente filo muro con anta in vetro traslucido (di Eclisse). Le pannellature alla base degli infissi esterni vengono sostituite con una superficie vetrata, per far entrare più luce. Il divano è sostituito con un modello salvaspazio (Urban di Calligaris). Il muretto e la paretina accanto al divano vengono eliminati per recuperare spazio. Nella zona soggiorno e nel disimpegno si inseriscono arredi sospesi (basi, pensili e mensole, con profondità di 36 cm), in laccato lucido bianco (elementi per il living di Scavolini). Tre i tipi di pittura: decorativa grigio chiaro, colore pieno giallo e colore pieno arancione.
Soluzione D
Il pavimento è in parquet di rovere chiaro. In questa soluzione, per avere un angolo tv più ampio, la cucina è stata modificata inserendo moduli bassi a servizio del soggiorno e l’installazione di uno schienale per accogliere uno schermo più grande, a parete. Porte e ante della cucina sono in laccato opaco bianco, i nuovi arredi in laccato bianco lucido, con battiscopa, lampade e placche di comando elettriche in tinta. Anche in questo caso, alla pittura decorativa grigio chiaro si aggiungono altre due tinte piene, ma più sobrie.
Un’alternativa per l’ingresso
Come si vede in pianta e nel prospetto, la rientranza nel disimpegno che distribuisce le varie stanze è stata totalmente sfruttata con una composizione che alterna vani a giorno e vani chiuse da ante. In questo modo c’è ora tanto spazio per accogliere libri, oggetti e fa anche da vano guardaroba. La presenza degli specchi rende più arioso e accogliente l’ingresso.
Progetti: arch. Ornella Musilli
Consigli dell’architetto su colori e finiture
Risposte e soluzioni per rinnovare la casa
Finiture decorative nel trilocale di 70 mq
Omaggio al colore
Scegliere il colore per i vari ambienti della casa
Come definire l’ingresso







































































