Contenuti trattati
Affrontare una ristrutturazione integrale di un’abitazione di ampia metratura significa ripensare in modo radicale il rapporto tra spazi, funzioni e qualità dell’abitare. Quando i vincoli distributivi originari vengono azzerati, il progetto non è più un semplice esercizio di ridistribuzione, ma diventa un lavoro di equilibrio tra esigenze funzionali, luce naturale, comfort quotidiano e razionalizzazione delle superfici.
In questo scenario, la zona notte – e in particolare il sistema camera padronale, bagno e cabina armadio – assume un ruolo strategico, perché concentra aspettative elevate in termini di privacy, benessere e fruibilità.
Le diverse ipotesi progettuali nascono proprio dalla necessità di interpretare in modo flessibile questi temi, senza soluzioni standardizzate. Al centro del ragionamento ci sono alcuni principi guida: garantire ambienti principali illuminati e ventilati naturalmente, ridurre al minimo corridoi e spazi di puro passaggio, integrare funzioni tecniche come lavanderia e locali impiantistici senza compromettere la qualità degli ambienti residenziali.
Il progetto contemporaneo, infatti, tende a “nascondere” ciò che è servizio, trasformandolo in parte ordinata e silenziosa dell’architettura interna.
Un altro tema ricorrente è la gerarchia degli spazi bagno. La distinzione tra bagno principale e bagno secondario non è solo una questione dimensionale, ma soprattutto funzionale: doccia, area lavabo e zona sanitari vengono organizzate come ambiti distinti, capaci di convivere senza interferenze, mentre la presenza eventuale della vasca diventa una scelta ponderata, subordinata alla reale vivibilità degli spazi.
Allo stesso modo, la cabina armadio non è più un accessorio, ma un vero ambiente, progettato come filtro tra zona notte e servizi, talvolta passante, talvolta più riservato, sempre pensato per essere pienamente utilizzabile.
Infine, la gestione della luce naturale e delle visuali interne gioca un ruolo decisivo. Aperture calibrate, filtri visivi, arredi architettonici e soluzioni trasparenti consentono di portare luce negli ambiti più interni e di rendere fluida la percezione degli spazi, senza rinunciare alla necessaria separazione funzionale.
Tre approcci diversi, quindi, ma un’unica visione progettuale: trasformare la complessità delle esigenze in un sistema coerente, efficiente e misurato, dove ogni metro quadro è pensato per essere vissuto.
Un esempio concreto: tre proposte per bagno, lavanderia e cabina armadio
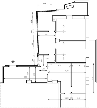
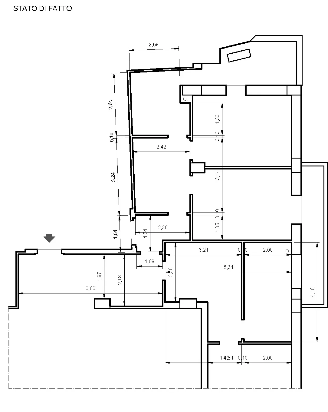
Richiesta della lettrice Martina P.: “Attualmente nella casa di 150 mq è in corso una ristrutturazione totale. Sono stati abbattuti tutti i tramezzi ed rimosso il massetto per avere una cucina molto ampia, un salone doppio, 3 camere, 2 bagni, una lavanderia e una cabina armadio. Il nostro dubbio su come procedere riguarda la zona con il bagno, la lavanderia e la cabina armadio a servizio della camera da letto principale. Vi chiedo la migliore distribuzione tenendo conto che vorrei:
- che il bagno non fosse cieco
- che la cabina armadio fosse di dimensioni generose
- evitare di avere aree non utilizzate e/o corridoi e disimpegni
- nel bagno principale solo la doccia e un’area lavandino/postazione trucco divisa da quella dei sanitari.
- nel bagno secondario una doccia e, solo se gli spazi lo consentono senza compromettere la vivibilità, una vasca.
- che la lavanderia con lavabo avesse accesso dal bagno oppure fosse una soluzione con armadiaura a scomparsa con accesso dal corridoio se in questo caso si riuscisse però a fare in modo che questo ambiente non invadesse troppo la zona notte.
Segnalo anche che la camera da letto padronale è esposta a Sud ed ha una gradevole veduta libera e luminosa; la zona ad est affaccia verso un palazzo; il secondo bagno è collocato nella zona nord dell’immobile ed è poco luminoso.
Tre ipotesi di progetto
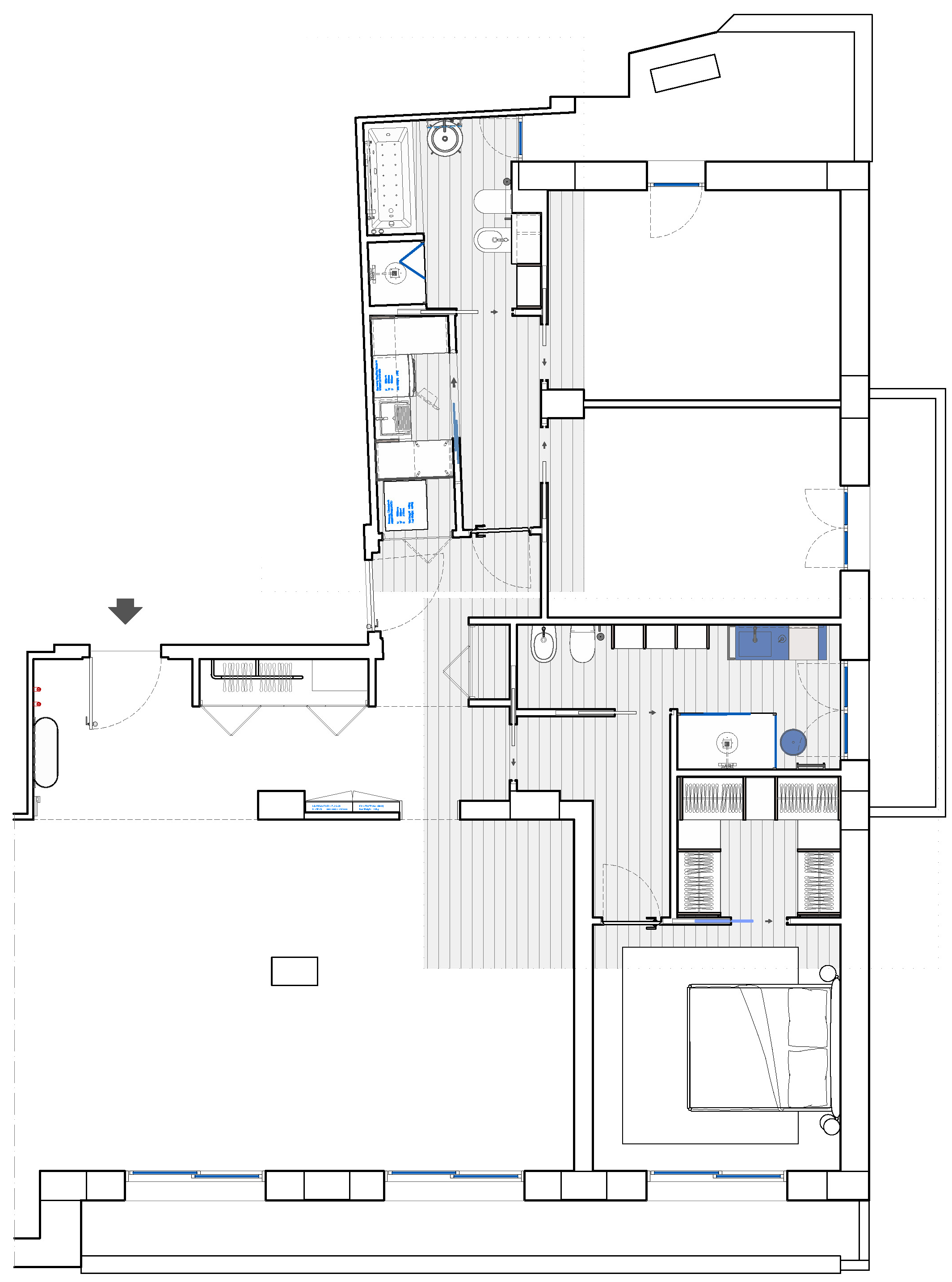
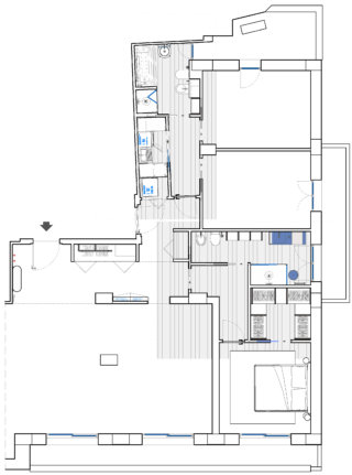
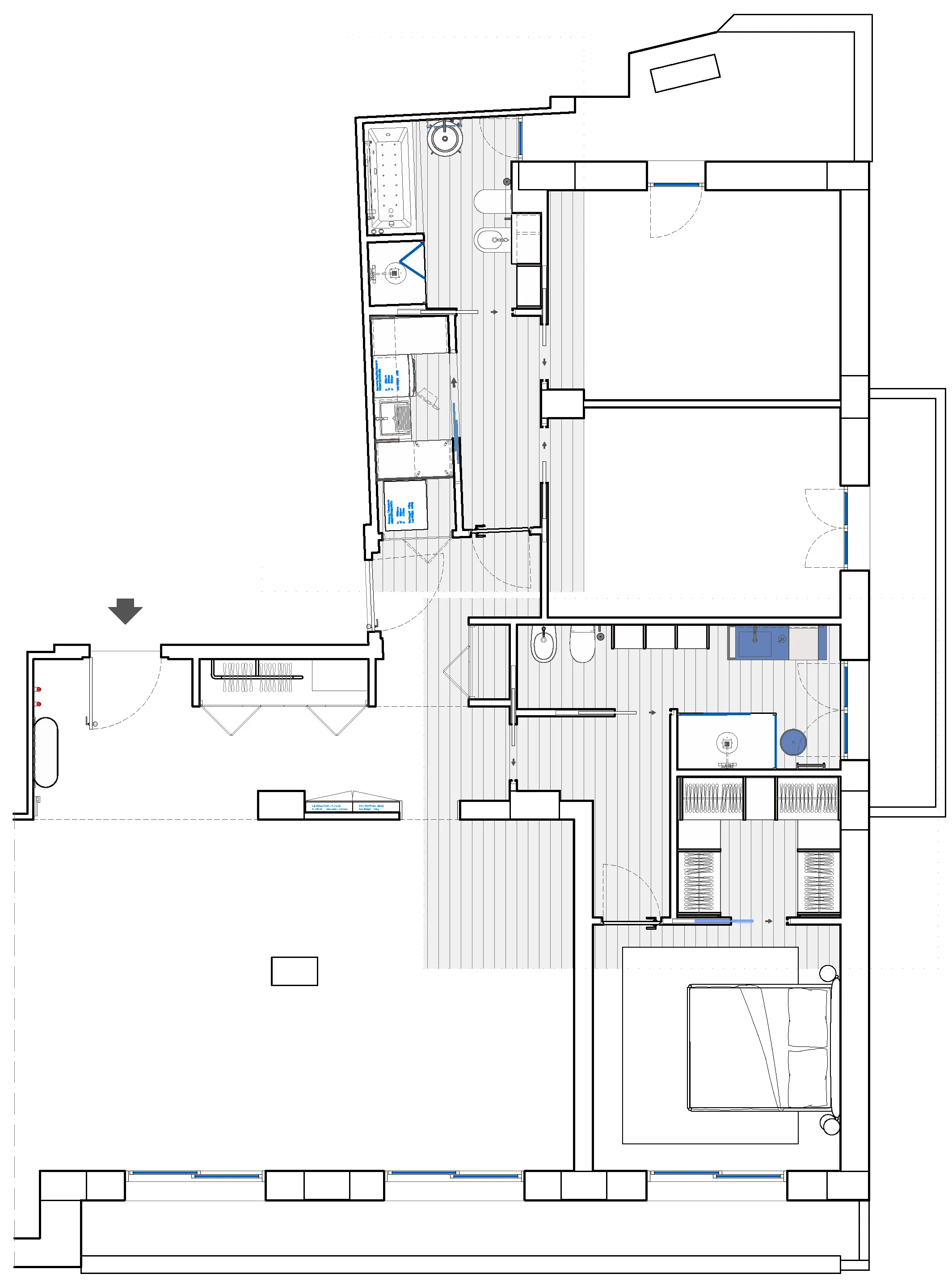
Progetto A
Questa impostazione progettuale privilegia una distribuzione chiara e ben gerarchizzata, in cui ogni funzione trova una collocazione dedicata e leggibile. I servizi sono organizzati come ambienti autonomi ma integrati nel sistema distributivo, con particolare attenzione alla separazione delle zone d’uso all’interno dei bagni. La lavanderia diventa uno spazio tecnico ordinato e schermabile, mentre i volumi contenitori e i passaggi filtranti contribuiscono a ridurre le superfici di disimpegno, migliorando al tempo stesso la diffusione della luce naturale.
- Il bagno a Nord è attrezzato con doccia e vasca.
- Alla zona lavanderia si accede dal disimpegno attraverso una porta a due ante scorrevoli ed a scomparsa in un unico controtelaio.
- La lavanderia è corredata di ripiano con due angoli, lavatoio, lavatrice sottopiano ed una composizione di scaffalature a ponte.
- Un piccolo locale tecnico contiene la macchina per la climatizzazione ed è accessibile dal secondo disimpegno.
- Nella zona di ingresso sono ricavati altri volumi contenitori chiusi da ante filo parete pieghevoli.
- È ipotizzata l’apertura fra il soggiorno ed il secondo ingresso: questo permetterebbe alla luce naturale di raggiungere gli ambiti distributivi meno luminosi.
- La cabina armadio ha l’entrata dalla camera ed è allestita a C con due angoli, la porta scorrevole è in vetro.
- Nel secondo bagno i sanitari sono distanziati dall’area lavabo/doccia e nascosti da una scaffalatura di design che può essere dotata di ante.
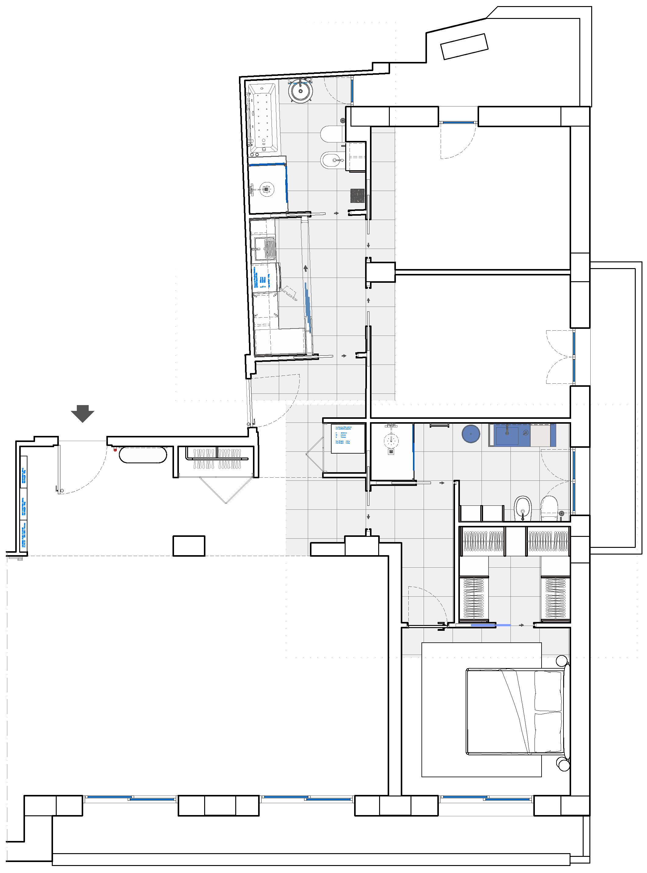
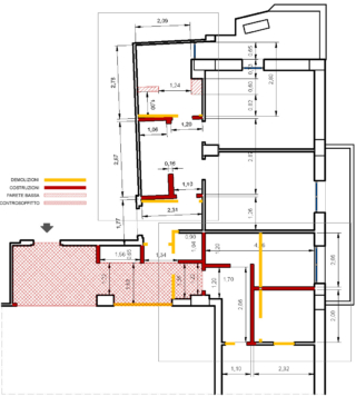
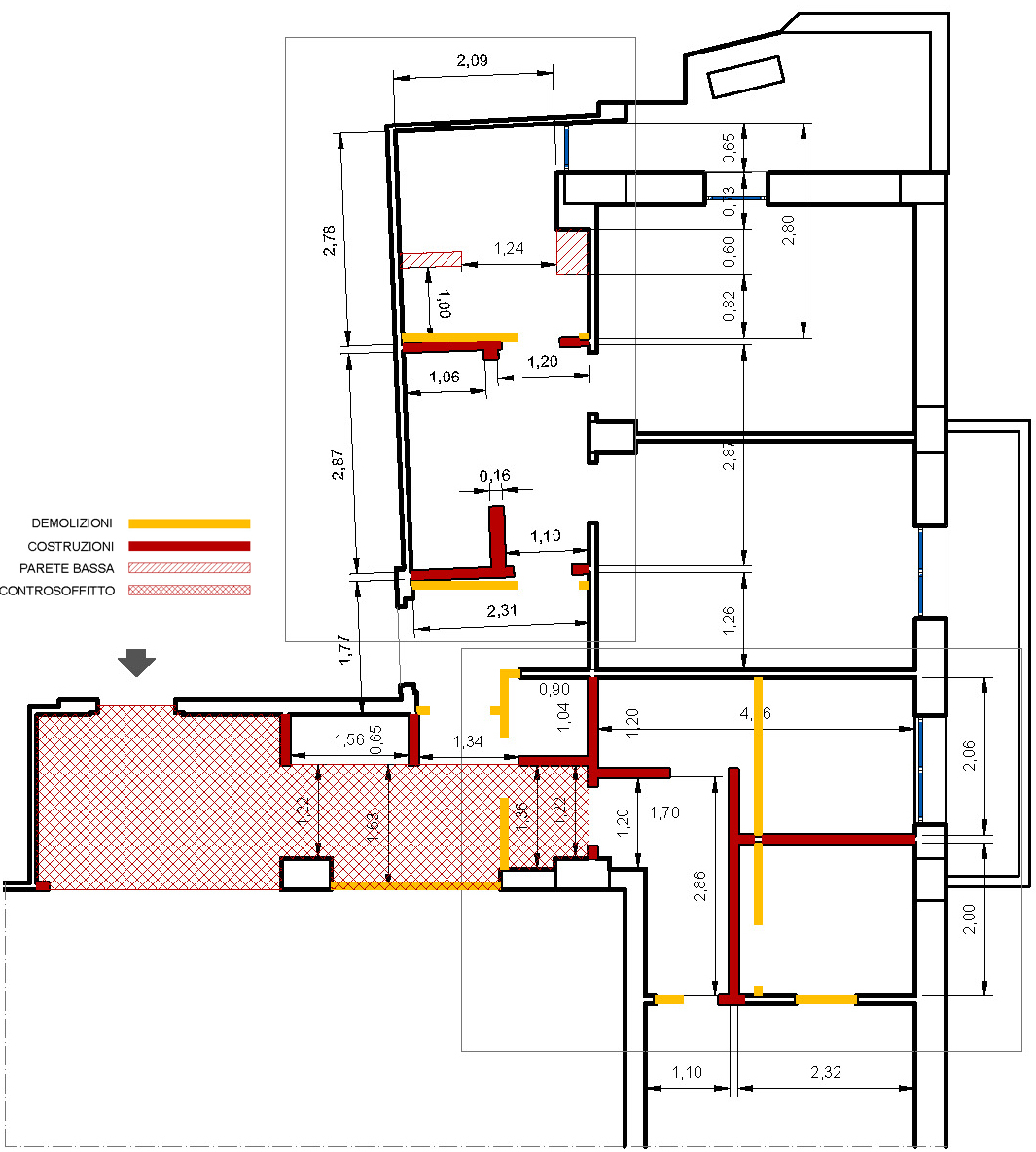
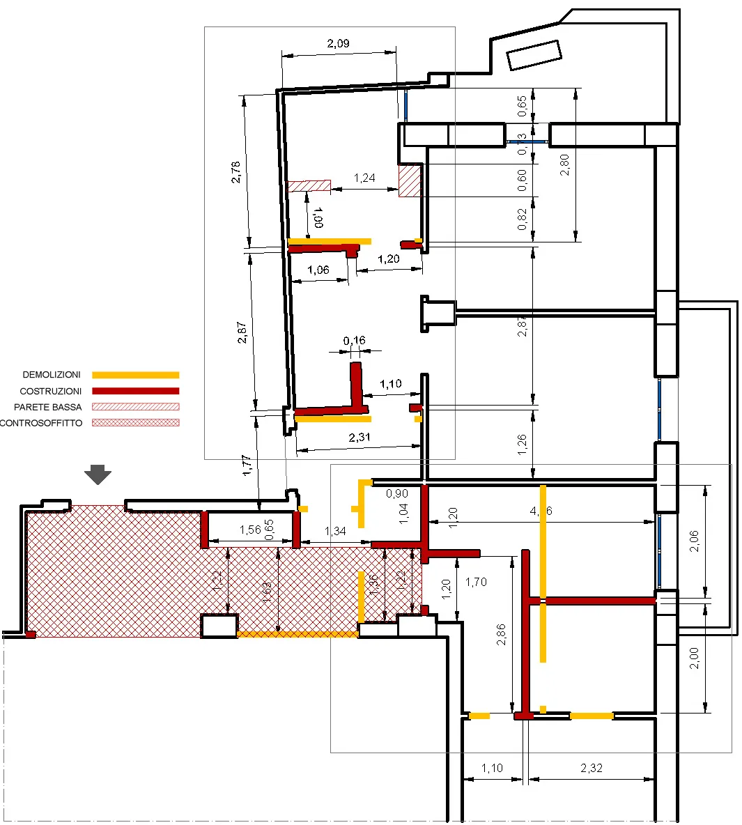
Progetto B
Progetto B lavori
L’approccio di questa soluzione è più compatto e razionale, orientato a ottimizzare le superfici riducendo al minimo gli spostamenti e le sovrapposizioni funzionali. Gli ambienti di servizio sono concentrati e messi in relazione diretta tra loro, con aperture ampie che favoriscono continuità visiva e flessibilità d’uso. La zona padronale mantiene una chiara distinzione tra funzioni, ma con ingombri più controllati, a vantaggio di una distribuzione efficiente e facilmente adattabile nel tempo.
- Le attrezzature della lavanderia sono disposte ad L e l’apertura sul disimpegno è ampia poiché un unico controtelaio ospita tre pannelli scorrevoli in vetro.
- La macchina per il condizionamento è alloggiata nel ripostiglio interposto fra le due aree di intervento.
- La zona a sud è divisa ed allestita in modo simile al progetto A ma il bagno ha una estensione minore in lunghezza ed i sanitari sono posizionati più vicino allo scarico esistente.
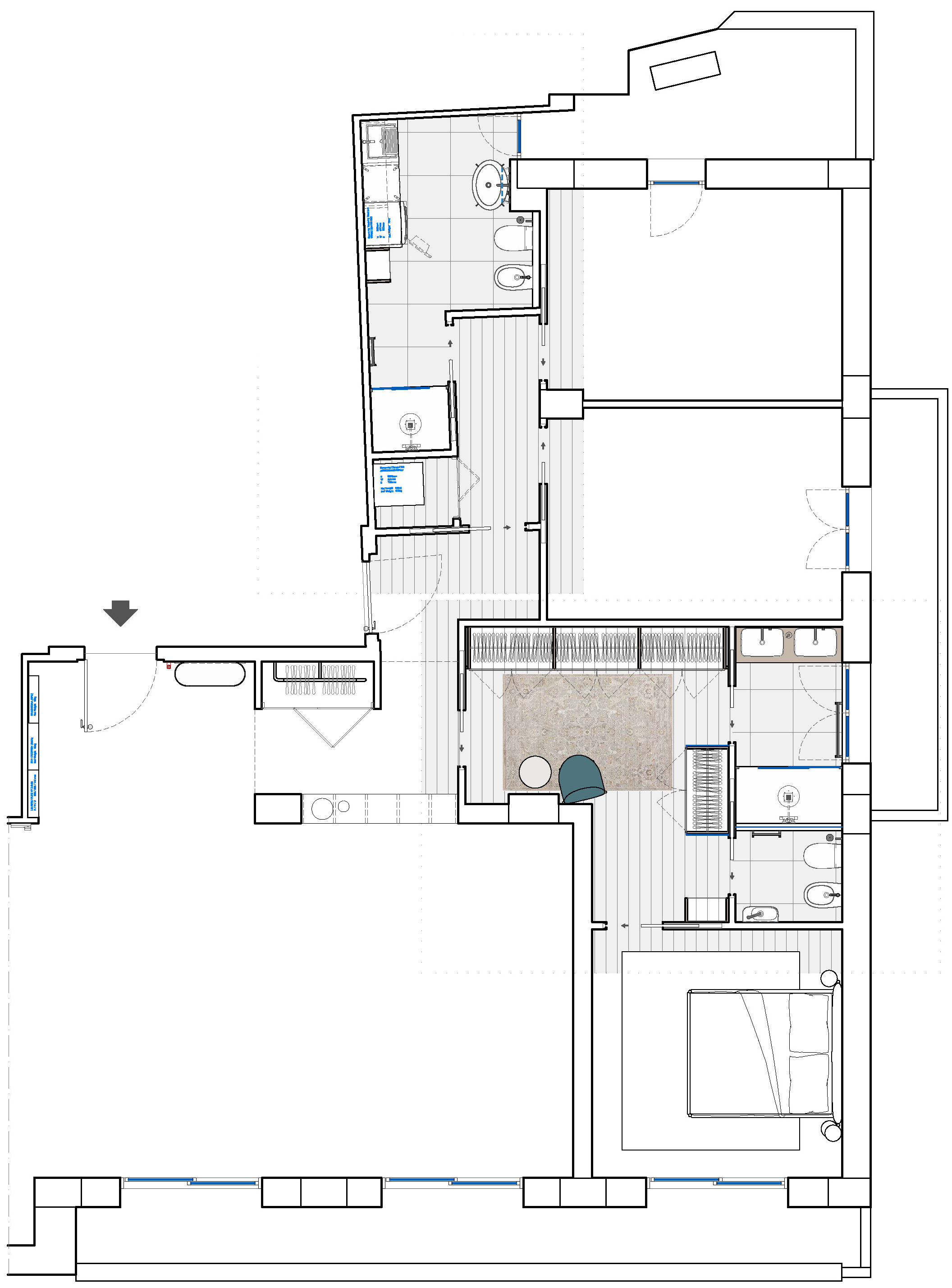
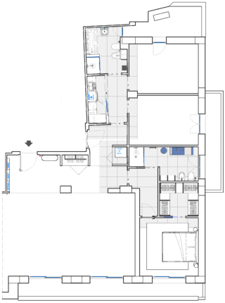
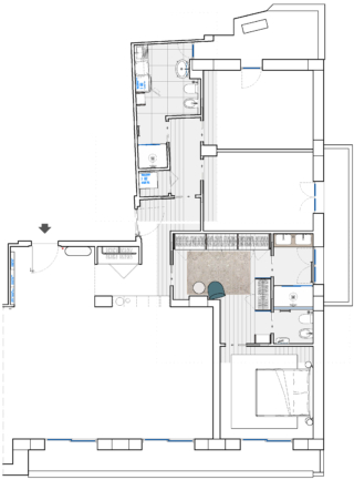
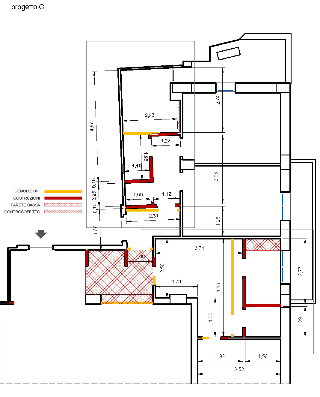
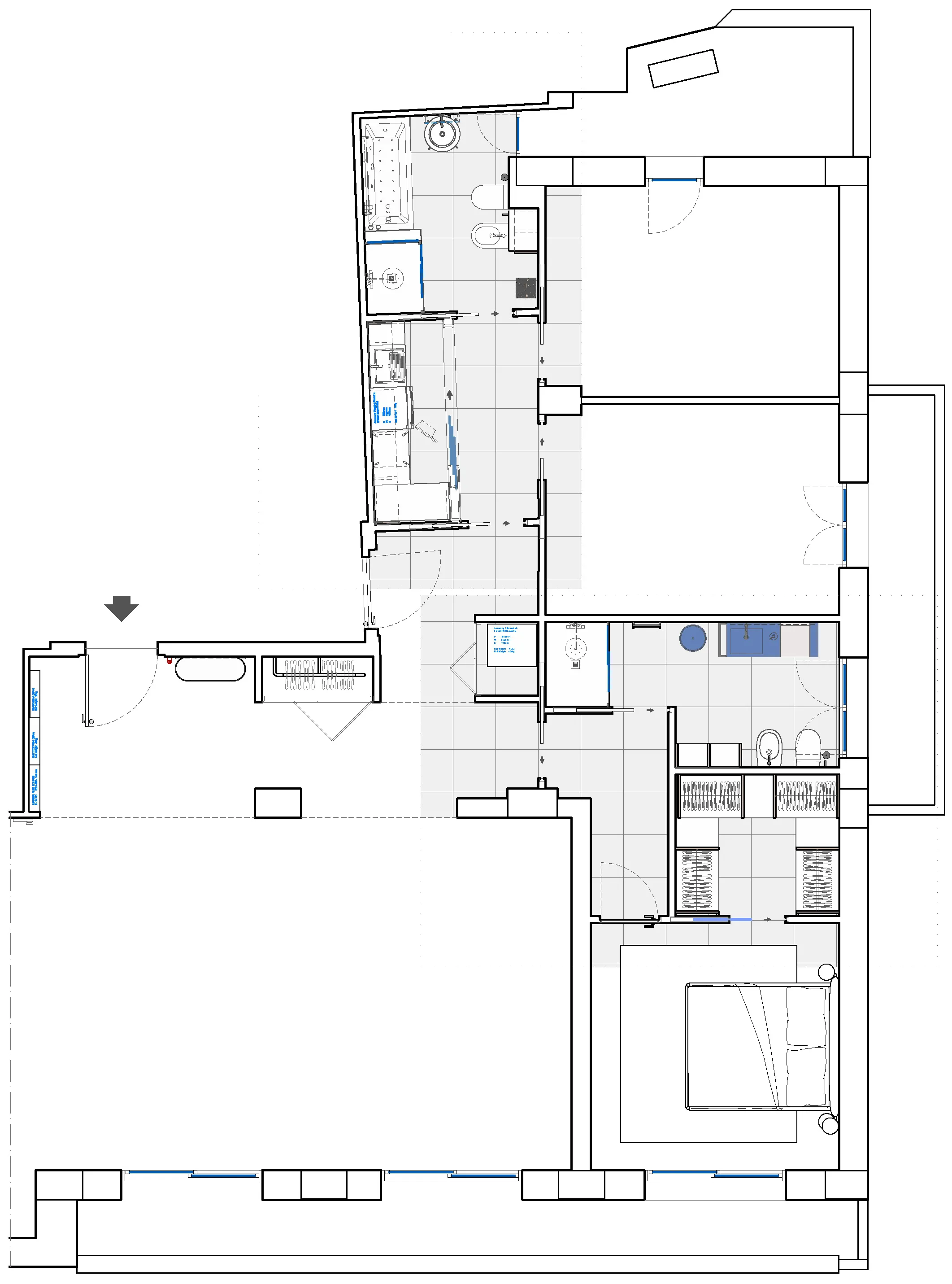
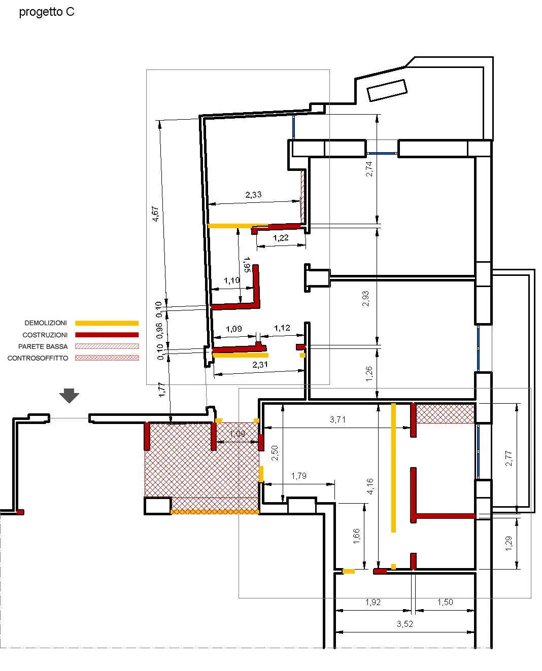
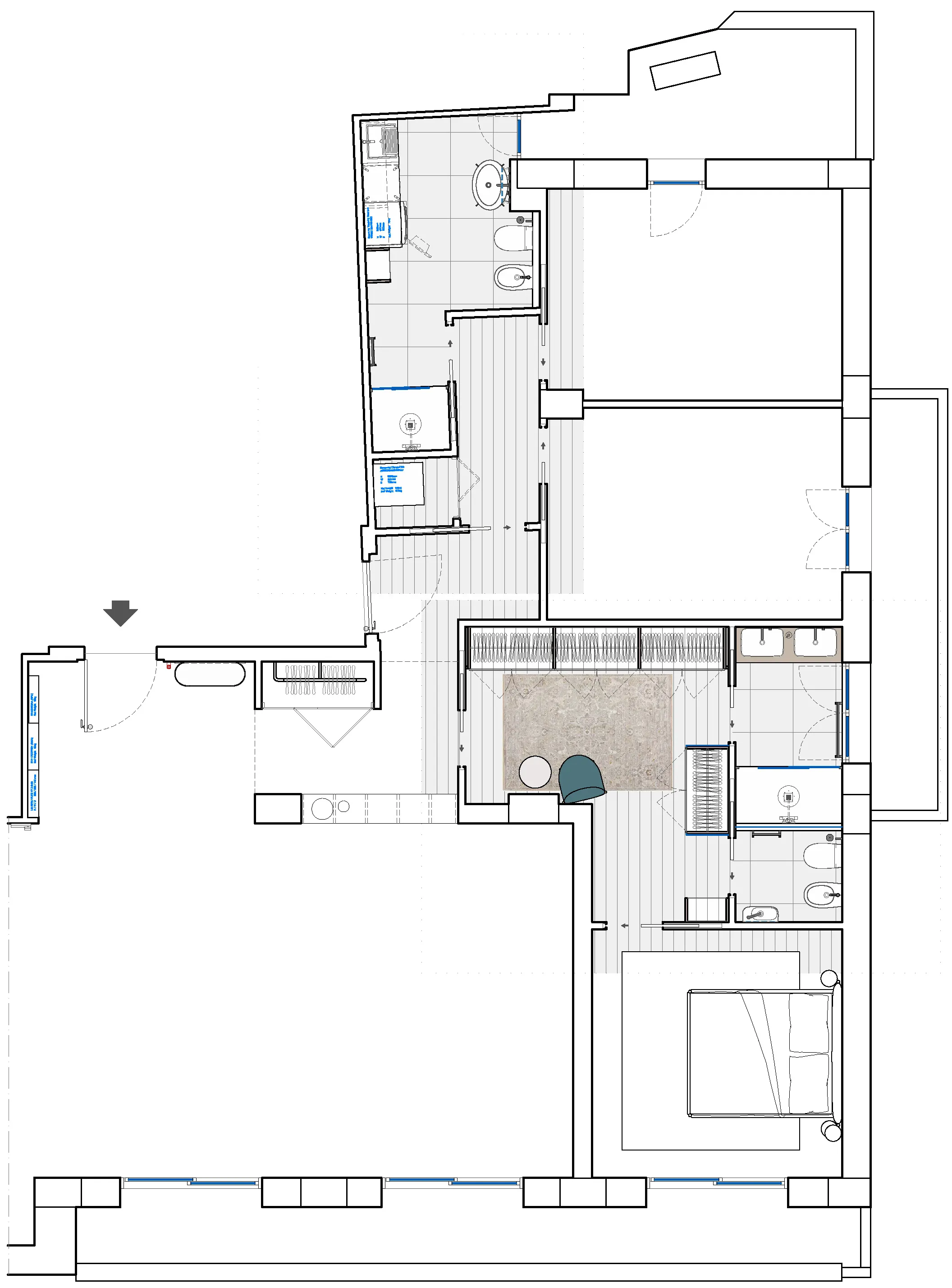
Progetto C
In questo schema il progetto lavora per integrazione, accorpando funzioni affini e trasformando i percorsi in spazi abitabili. La cabina armadio diventa elemento di connessione e filtro, mentre il bagno si articola in più ambiti per garantire comfort e privacy anche in presenza di utilizzi simultanei. L’uso di partizioni leggere e arredi architettonici consente di modulare luce e trasparenze, restituendo un’organizzazione fluida, contemporanea e altamente funzionale.
- La lavanderia si trova all’interno del bagno a nord, è una composizione compatta di arredi in linea con scaffalatura superiore.
- La cabina armadio è passante ed ampia.
- Il secondo bagno è diviso in due locali.
- Il varco fra soggiorno e zone distributive potrebbe essere aperto e schermato solo alla base da una libreria bifacciale.




























































