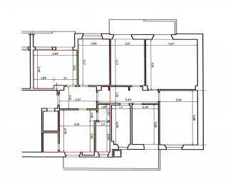
Quesito di Carla: Devo ristrutturare la mia casa e vorrei cambiare la disposizione degli ambienti separando nettamente la zona giorno dalla zona notte. Pensavo di demolire alcuni muri (segnati in giallo nella piantina) per avere un ampio ambiente diviso tra cucina/pranzo e zona giorno/salotto TV, per la quale chiedo il vostro consiglio per arredarla riutilizzando alcuni pezzi che già possiedo (divano, tv, vetrina), in particolare una tela dipinta su entrambe le facce.
- Risponde l’architetto Paolo Mereghetti – studio M&C Architetti Associati, Milano – https://www.mec-architetti.it
Le demolizioni ipotizzate portano in effetti a una migliore godibilità degli spazi giorno. Per l’arredo si propone una soluzione che prevede la formazione di un angolo conversazione/tv da realizzarsi con un divano ad angolo da 5 posti e un piano di appoggio per la tv nell’angolo opposto. Per consentire il posizionamento della televisione 42” sarà necessario realizzare un muro, meglio se di cartongesso, alto quanto basta (90/100 cm) per mascherarne il retro. In merito al dipinto da valorizzare, si possono usare dei tensionatori d’acciaio che, opportunamente fissati a soffitto e zavorrati a terra o come nel nostro caso al piano di copertura del muretto, permetteranno di mantenere l’opera in posizione verticale e di vederla da entrambi i lati. Il pianoforte verticale di proprietà trova ideale collocazione sulla parete antistante la portafinestra, lo spazio soprastante potrà essere attrezzato con ripiani e parzialmente controsoffittato in modo da creare una nicchia appositamente proporzionata per ospitare il piano. La vetrina inizio novecento è prevista in posizione centrale e ben visibile sulla parete a lato della portafinestra. Con gli arredi così disposti, la parte centrale del soggiorno resta libera e vi si potrà inserire a piacimento altri elementi o complementi d’arredo, per esempio una poltrona ed uno scrittoio – come nel progetto qui sotto – e alcune piante d’appartamento.










































