Come progettare una camera per ragazzi considerando la necessità di avere due letti (preferiremmo non a castello) e due piani studio, oltre che naturalmente libreria e armadio (uno o due piccoli). Quesito di Raffaele G.
- Risponde l’architetto Paolo Mereghetti – studio M&C Architetti Associati, Milano – https://www.mec-architetti.it
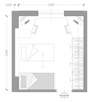
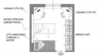
Come prima soluzione, in alternativa ai letti a castello, viene proposta una soluzione con letti scorrevoli sovrapponibili. In questo modo pur mantenendo due letti separati ed autonomi, si può eliminare – se necessario – l’ingombro del secondo letto guadagnando spazio durante il giorno per le attività all’interno della stanza. In produzione esistono molteplici soluzioni personalizzabili, a seconda delle differenti fasce d’età, e prevedono una pannellatura a parete detta boiserie, appositamente attrezzata per ospitare il meccanismo di scorrimento su cui si muovono i letti e in alcuni casi anche il piano scrivania che va a sovrapporsi ad essi, oppure mensole e contenitori posti nella parte superiore. È in genere presente nei cataloghi di quasi tutti i produttori di camerette, e lo si può quindi trovare nella versione più adatta alle singole situazioni per stile, colore, misure e costi. Nell’ambiente può così essere inserito un comodo armadio a 6 ante, due scrivanie vicino alla finestra (in modo da sfruttare in parte la luce naturale) e una boiseire attrezzata come libreria.
Questo progetto, più tradizionale, prevede il posizionamento dei due letti singoli ai due angoli opposti del locale, mantenendo libero lo spazio centrale per il gioco. In questo caso però le due postazioni studio sono affiancate e l’armadio a 4 ante, di dimensioni quindi un po’ più contenute rispetto alla situazione precedentemente illustrata.












































