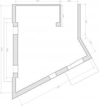
arredare la zona giorno quando questa abbia pianta irregolare può non essere semplice. Alla richiesta della lettrice Francesca, che vorrebbe inserire un camino nel salotto e una cucina open space con bancone-isola a vista e una piccola lavanderia, risponde il nostro architetto Donatella Ciriaco – https://www.studiodag.it/ con una soluzione pensata ad hoc. Il soggiorno ha forma irregolare, molte finestre e un angolo molto chiuso, tutti fattori che rendono meno scontata la disposizione ottimale degli arredi.
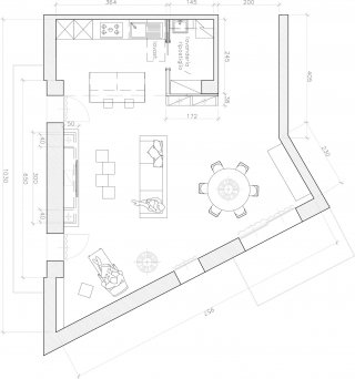
La prima considerazione è stata quella di trovare uno spazio adeguato per il locale lavanderia e la cucina; il primo ambiente viene naturale collocarlo nella zona meno luminosa e più defilata che si trova in prossimità del pilastro, mentre la cucina trova posto sulla parete di sinistra dove è presumibile siano già previsti gli attacchi dell’acqua e del gas. La lavanderia può essere realizzata con pareti in cartongesso da 6/8 cm, la parete più corta si sovrappone al pilastro e servirà anche da schienale per realizzare una piccola libreria, con spalle e ripiani sempre in cartongesso che si affaccia verso il soggiorno. Oltre allo spazio per il lavatoio e la lavatrice, entrambi posizionati sulla stessa parete dove sono presenti gli attacchi per la cucina, c’è posto anche per uno scaffale in cui riporre detersivi, stracci e scorte varie.
La cucina viene sviluppata in linea e comprende una colonna frigo, una colonna forno con 4 cassetti, una base da 120 cm con ante su cui poggia un piano cottura a 5 fuochi da 70 cm, una base lavello da 60 cm e una lavastoviglie. L’isola è composta da due basi da 90 cm attrezzate con cestoni: un modulo può essere usato come portapentole, l’altro come dispensa. Il top in aggetto per una profondità totale di 100 cm consente di affiancare due o più sgabelli, in modo da sfruttare l’ampia superficie per la prima colazione e pasti veloci. Volendo è possibile trasformare l’isola in zona operativa, posizionando il piano cottura fra le due basi, ovviamente sarà necessario anche prevedere una cappa che può essere di tipo a isola oppure estraibile incorporata nelle basi.
Sistemati questi due ambienti, lo spazio di fronte all’isola è perfetto per ambientare la zona living, collocando il camino fra le due portefinestre. Realizzato sempre con struttura in cartongesso ma di tipo ignifugo, presenta due nicchie con faretti incassati, dove accatastare la legna. Molto lineare, semplice ma di grande effetto scenografico, specialmente se viene appeso anche il televisore. Per mettere in maggior risalto la struttura è sufficiente dipingere le pareti ai lati di colore scuro, magari con una finitura in resina spatolata color tortora. A completare la zona un divano lineare da 3 o 4 posti con davanti dei piccoli tavolini cubici, che si possono utilizzare anche come occasionali sedute. Sull’angolo si sistemano due mensole, una chaise longue e una lampada da terra, in modo che questo spazio inizialmente angusto, viene trasformato in un gradevole angolo relax.
Davanti alla portafinestra scorrevole trova posto un grande tavolo rotondo di diametro 140/160 cm con basamento centrale in struttura tubolare leggera e un piano sottile, in modo che siano le forme ad attrarre l’attenzione di chi accede al soggiorno e non il suo ingombro. Si possono abbinare sedie dal design minimal con struttura laccata e gambe in metallo verniciato dello stesso colore (tipo la sedia Toa di Officinadesign Lema). La porzione di parete obliqua può ospitare una elegante madia di forma compatta con giochi grafici delineati dalle forme delle ante e dei cassetti (ad esempio la madia Ortelia di Lema). A completamento della zona pranzo si suggerisce di scegliere un lampadario a sospensione dalle linee morbide e sinuose, in grado di creare scenografici giochi di luce sul soffitto (come Pirce di Artemide).
Arredi utilizzati nel progetto: Divano Husk di B&B Italia, lampada Twiggy di Foscarini, sgabelli Puk Eurosedia, tavolini Blok di Porada, chaise longue Freud di Maison du Monde
Clicca sulle immagini per vederle full screen
Pianta dello stato di fatto
Pianta dello stato di progetto











































