Spesso, quando si ha voglia di rinnovare l’arredo della casa, non si deve necessariamente cambiare tutto. Alcuni pezzi, magari perché dal design intramontabile o perché sono ancora attuali o di nostro gusto, possono essere conservati: basta spostarli per dare all’ambiente un nuovo aspetto e una funzionalità migliorata. Vi proponiamo a titolo di esempio un progetto che prende spunto dalla richiesta di una lettrice.
Richiesta della lettrice Marina Z.: Con la mia famiglia (3 persone) vivo in affitto in un appartamento di circa 80 mq. La casa è stata costruita alla fine degli anni 50 ed è stata recentemente parzialmente ristrutturata (bagno e impianto elettrico). Il proprietario mi ha dato la possibilità di fare qualche modifica: ho aggiunto il parquet nella zona giorno (rovere sbiancato), coprendo la preesistente graniglia di marmo, diversa per ogni locale, ed ho sistemato le vecchie porte eliminando i vetri. Per arredare il soggiorno voglio conservare il tavolo e le sedie di design; i due divani invece li vorrei sostituire con un 3 posti con chaise longue. Il televisore vorrei fissarlo a muro, ma non so come risolvere il problema dei cavi elettrici a vista (il punto per l’antenna TV è unico ed è difficilmente spostabile). Adoro i colori naturali e il verde delle piante e vorrei mettere vicino al balcone un cactus alto e altre piante sparse.
Risposta dell’architetto Donatella Ciriaco, labD.interior – labdinterior.wordpress.com
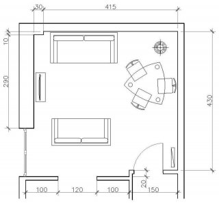
- La stanza di 20 mq ha una forma pressoché quadrata, con la particolarità di avere una zona di passaggio che coinvolge circa 6 mq dell’intera superficie. Inizia con l’ingombro della porta di accesso alla stanza (su cui dietro si suppone sia posizionato il calorifero), si sviluppa a sinistra con l’accesso al cucinotto e termina in corrispondenza della porta finestra. Per soddisfare la richiesta di mantenere il tavolo in cristallo e acciaio di dimensioni 125 x 125 x H 72 cm e le sedie in polipropilene, suggerisco di spostarlo dall’attuale posizione verso la porta finestra, con inclinazione tale da agevolare il passaggio sia alla zona cottura, sia al terrazzo.
- Sulla porzione di parete tra il vano di accesso alla cucina e la portafinestra si può creare un angolo per le piante, dove trova posto il cactus alto che magari può essere inserito all’intero di un portavaso rettangolare su ruote insieme ad altre piante ornamentali. Questi portavasi in poliuretano si trovano con ampia scelta di finiture, forme e dimensioni in qualsiasi garden center o centri per il fai da te come Leroy Merlin.
- Il divano a tre posti andrà sistemato sul lato destro della stanza, mantenendo nell’angolo la posizione della lampada da terra. In alternativa al tradizionale divano con penisola, si può scegliere un modello con sedute estraibili, hanno cioè all’interno dei meccanismi che danno la possibilità di slittare in avanti di circa 40 cm. In questo modo si può sfruttare al massimo il comfort di una seduta rilassante, senza l’ingombro fisso di una penisola. Un’altra possibilità è quella di acquistare un divano a tre posti fisso e un pouf con dimensioni di almeno 65 x 65 cm. In questo modo può essere affiancato al divano per una saltuaria posizione sdraiata oppure esso può essere sistemato davanti ed essere usato come piano di appoggio in alternativa al tavolino.
- La parete a lato della portafinestra di 290 cm può ospitare un mobile componibile, articolato da tre pannelli boiserie attrezzati H 180 cm da terra e tre moduli base H 40 cm. Le basi sono una con apertura a vasistas, una a due cassetti (entrambe profondi 55 cm) e una con cassettone di profondità ridotta 35 cm. La prima può ospitare il lettore dvd e/o il decoder e serve inoltre per poter convogliare in modo pratico i fili dell’antenna e del cavo elettrico della tv. Lo schienale dovrà avere due passacavi posti uno a sinistra in modo da convogliare i fili verso la posizione della tv e uno a destra in corrispondenza delle prese dell’antenna e della tv. In alternativa ai passacavi si possono forare gli schienali sul posto al momento del montaggio. Il secondo modulo a due cassetti è utilissimo per contenere (cassette dvd, libri, tovaglie… ). Il cassettone verso la porta finestra, profondo solo 35 cm, può essere usato per riporre bottiglie di vino o come piccolo angolo bar. La profondità ridotta lascia più spazio libero a disposizione per tavolo e sedie.
- La boiserie di spessore 5 cm consente di appendere la tv e di far passare al suo interno, attraverso il passacavi, i fili necessari per i collegamenti. Inoltre è attrezzata con due vani contenitori da 45 x P 35x H 45 cm e due mensole di spessore 5 cm. I cubotti possono essere sfruttati anche per collocarci sopra piccole piante ornamentali in modo da creare intorno alla portafinestra un vero e proprio angolo dedicato al verde.
- Questa disposizione degli arredi offre una soluzione pratica e gradevole dello spazio living, per renderla ancora più confortevole si consiglia di dipingere le pareti con un color tortora nella tonalità che meglio si abbina con il parquet in rovere sbiancato. In questo modo sia il divano sia la composizione del mobile rigorosamente in tonalità chiare e uniformi si potranno integrare in modo armonioso con il tavolo e le sedie esistenti, ed in contrasto con il colore delle pareti contribuiranno a rendere il soggiorno molto piacevole e rilassante.
Prima: il soggiorno era arredato così

Stato di Progetto











































