Nelle abitazioni di impianto tradizionale, almeno nei trilocali, è presente in genere un disimpegno di ingresso, a volte anche ampio, che qualora si abbia necessità di ricavare stanze o bagni in più possono essere accorpati alla zona soggiorno per sfruttare al massimo la metratura per realizzare nuovi vani. È il caso che ci ha proposto la lettrice Imma che nella casa con la planimetria sotto voleva aggiungere una stanza da letto e un bagno.
Domanda di Imma: Sono un’appassionata del mondo case, visito spesso il vostro sito ma non avrei mai immaginato di potervi contattare, ma la vita mi ha messo davanti ad una novità inaspettata. Ho dovuto vendere la mia piccola ma bellissima casa per prenderne una nuova più grande, dove abitare con altri 2 bambini che abbiamo adottato oltre ai miei 2 figli. Vorrei dividere i nuovi spazi, avremo bisogno di 2 stanzette e due bagni.
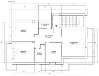
Il nuovo progetto
Per la nuova distribuzione è stata effettuata la verifica del rapporto aero-illuminante in ogni locale che prevede la permanenza di persone, secondo quanto disposto dalle norme, nel calcolo sono state utilizzate le larghezze riportate nella pianta fornita dalla lettrice mentre per quanto riguarda le altezze sono state considerate le misure standard di finestre e porte-finestre.
Anche le prescritte dimensioni minime dei singoli ambienti sono state rispettate.
La cucina è integrata nel living e con il tavolo da pranzo in appoggio su basi ribassate, è collocata in prossimità degli allacci dedicati esistenti.
La posizione dei sanitari del secondo bagno è in linea con quella esistente e, per nascondere gli allacci e le tubazioni, è prevista una contro-parete che in due tratti è bassa ed attrezzata sopra con mensole e scomparti chiusi da ante, utili per riporre.
Con la ristrutturazione e il nuovo layout comunque ogni stanza ha dimensioni a norma, adatte ad accogliere due persone. La prima camera che si incontra dall’ingresso ha il bagno interno.
Gli allestimenti delle camere comprendono letti con contenitore, per avere spazio in più per riporre biancheria, cuscini o quanto serve, armadiature a ponte o cabine armadio e quattro postazioni per lo studio.
All’entrata dell’area notte e servizi sono stati previsti anche un piccolo guardaroba a muro con ante pieghevoli ed un ripostiglio-lavanderia.
Le porte sono salvaspazio, senza cornici filo muro e dove possibile scorrevoli.
Progetti per aggiungere una camera o un bagno
- Soggiorno e cucina insieme per aggiungere la seconda camera
- Come allargare la zona giorno e aggiungere un bagno e la lavanderia
- Trilocale con cucina separata e una camera in più
- Aggiungere un bagno e una cabina armadio, e migliorare la zona giorno
- La casa diventa più grande: camera e studio ricavate nel sottotetto
- Progetto in 3D: ricavare la seconda camera e ingrandire il bagno
- Ricavare una camera in più: progetto in 3D










































