Contenuti trattati
Per molti anni la cucina è stata considerata un ambiente di servizio, da mantenere separato o addirittura celato rispetto al soggiorno. L’evoluzione dell’abitare degli ultimi decenni ha però ridefinito questo paradigma: oggi la continuità tra cucina e living è percepita come un valore progettuale, capace di aumentare la qualità degli spazi e la loro funzionalità quotidiana.
Quando si affronta una ristrutturazione, una delle richieste più frequenti riguarda proprio la possibilità di avvicinare la cucina alla zona giorno, oppure di integrarla in un unico ambiente open space.
Non sempre, però, la disposizione originaria dell’appartamento lo consente: capita spesso che la cucina sia collocata in un punto distante rispetto all’area conviviale della casa, penalizzando flussi e praticità d’uso.
In questi casi il primo obiettivo progettuale è riconfigurare la pianta, studiando un nuovo layout che metta in relazione diretta preparazione, pranzo e living.
La fattibilità dell’intervento deve però essere verificata in cantiere: la collaborazione con un idraulico è fondamentale per valutare la posizione degli scarichi e comprendere se e come sia possibile riposizionarli.
Lo spostamento della cucina richiede infatti un’attenta analisi degli impianti e il rispetto delle normative edilizie vigenti. Una corretta pianificazione consente di ottenere un ambiente più funzionale e coerente con il modo di vivere contemporaneo, senza compromettere sicurezza e conformità tecnica.
Vediamo un progetto che sposta il vano cottura e lo accorpa al living.
Impianti necessari in cucina
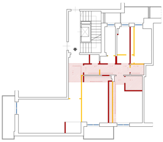
Il primo passo è assicurarsi che la modifica del layout possa essere effettuata anche a livello degli impianti idraulico ed elettrico. Lo scarico dell’acqua, per esempio, richiede una pendenza adeguata verso la colonna principale; una soluzione può essere in alternativa una pompa (che funziona solo con la corrente attiva e che produce rumore durante il funzionamento). Se si opta per il piano cottura a induzione non è obbligatoria la cappa, per quanto consigliata.
Se vuoi sapere di più sullo spostamento degli impianti della cucina. leggi anche i nostri articoli:
- Spostare la cucina:i vantaggi con un esempio in pianta
- Come spostare il lavello della cucina senza lavori
- Quando si possono spostare il bagno o la cucina?
Richiesta di permessi al Comune per spostare la cucina
Gli spostamenti significativi come è quello di una cucina richiedono autorizzazioni burocratiche con la presentazione di una CILA all’ufficio tecnico del Comune di pertinenza, che deve approvare tra l’altro la nuova distribuzione (con la cucina spostata) e il rispetto fra l’altro dei requisiti di ventilazione e aeroilluminazione.
Metrature minime della cucina e del soggiorno-cucina
La nuova distribuzione (con la cucina spostata) deve anche rispettare le metrature minime previste dal regolamento edilizio del Comune di pertinenza per la cucina abitabile separata (per esempio 5 mq a Milano) o per la cucina a vista accorpata al living (a Milano almeno 17 mq).
Un progetto con spostamento della cucina vicino al soggiorno
Vediamo come l’architetto Musilli ha risolto la richiesta della lettrice Giulia A. che desiderava:
- spostare la cucina vicino al soggiorno
- ottimizzare gli spazi anche per ricavare un ripostiglio o un vano analogo
- mantenere – oltre la camera matrimoniale – una seconda stanza da usare come studio o per gli ospiti
- creare una piccola zona lavanderia, non in cucina o in bagno
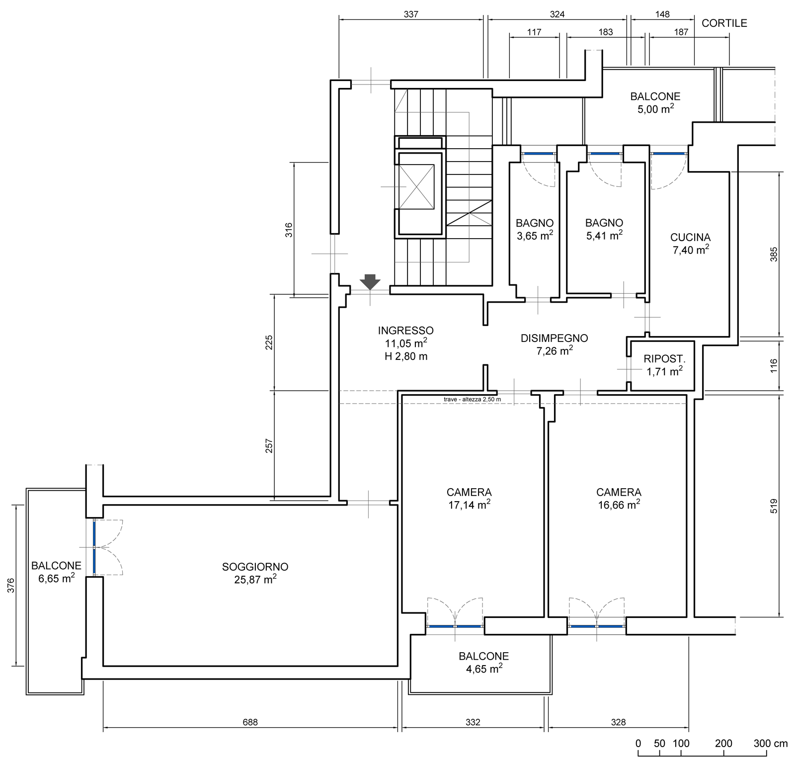
Planimetrie della casa prima dei lavori
Quali lavori devono essere previsti per spostare la cucina
I lavori di ristrutturazione trasformano la cucina in camera singola (9 mq minimi prescritti) con balconcino, ingrandendola quanto necessario, togliendo spazio al bagno vicino (che si allarga però verso il corridoio) e al ripostiglio, che viene ricreato più in là).
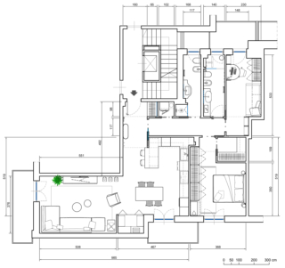
Descrizione del nuovo progetto con cucina spostata vicino al soggiorno
Con il nuovo progetto, l’ingresso nella zona giorno è diretto seppure mediato da un ambito di entrata arredato con un guardaroba nella rientranza, una console e specchi.
Soggiorno e cucina sono ora accorpati in unico un open space nell’area più luminosa dell’appartamento, servita da due balconi.
L’impianto idraulico della cucina è collocato nell’ambito più prossimo alla posizione presunta degli impianti di carico e scarico esistenti; la fattibilità dello spostamento di lavello e lavastoviglie va valutata in base soprattutto alla conformazione e alla dislocazione attuale degli scarichi.
L’ingresso ed il disimpegno sono ridimensionati e ridotti alla superficie necessaria per soddisfare le esigenze distributive, lo spazio eccedente è sfruttato per ricavare il guardaroba, la piccola lavanderia, l’allungamento dei volumi dei due bagni e quello della nuova camera, come visto.
Nella camera doppia viene ricavata una cabina armadio e – grazie allo spostamento di una parete – si può anche collocare anche un’armadiatura di fronte al letto, lasciando 90 centimetri utili per l’apertura delle ante.
Spostare la cucina
Per approfondire l’argomento leggi anche:
- Spostare la cucina, i vantaggi in un esempio con le piante del “prima e dopo” i lavori
- Progetto e costi ristrutturazione per spostare la cucina e ricavare stanza in più e lavanderia
- Spostare la cucina: pianta e progetto in 3D









































