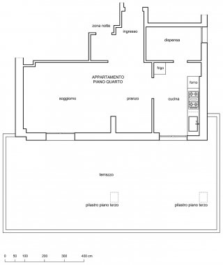
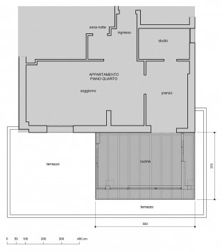
Domanda di Maria: La nostra famiglia composta inizialmente da due adulti e una bimba di 4 anni aumenta ora con l’arrivo di una coppia di gemelli. La nostra casa così come è non basta più. Avendo a disposizione 50 mq di terrazzo abbiamo pensato di usufruire del Piano casa e spostare lì la cucina. Poiché fuori è già presente un’area gioco per le bambine, avevamo pensato di ricavare una stanza gioco comunicante con questa parte del terrazzo. Vorremmo riutilizzare l’arredo della cucina, magari ampliandola con una penisola per colazioni e pasti al volo, o spostando i componenti, il tavolo e il divano. La struttura esterna dovrà poggiare sui pilastri del piano sotto, ma i muri non necessariamente devono corrispondere non vorremmo occupare troppo terrazzo (diciamo meno della metà), perché comunque è utile per cene con amici e non vorremmo arrivare a mettere i muri sulla soglia del parapetto per questione di costi (es. affitto impalcature visto che siamo al 4° piano), ma lateralmente (avevamo pensato a una vetrata). Lo spazio massimo utilizzabile è di 16 mq. Internamente vorremmo fare meno modifiche possibili. La dispensa vorremmo che diventasse il mio ufficio.
- Risponde l’architetto Ornella Musilli – https://www.libera-design.it
Sistema costruttivo scelto in legno. L’intelaiatura
L’ampliamento è ottenuto con l’installazione di pilastri, travi e travicelli in legno lamellare. I pilastri sono posizionati in corrispondenza degli elementi portanti esistenti; il volume, chiuso su una porzione di terrazzo, è arretrato rispetto al parapetto e lascia libero lo spazio esterno sui tre lati. Il peso ridotto e la rapidità della posa in opera, che avviene “a secco” con sensibile riduzione dei tempi, sono alcuni dei vantaggi della scelta di un sistema costruttivo in legno.
L’”involucro”
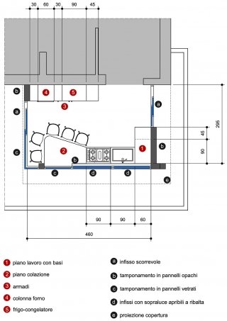
La nuova cucina è un ambiente luminoso che sfrutta passivamente l’energia solare grazie alle ampie superfici vetrate, alcune sono apribili ed alcune fisse. Ai fini del risparmio energetico il tamponamento, gli infissi e la copertura, devono avere caratteristiche termo-isolanti, come richiesto dalla normativa vigente per gli ambienti abitabili, meglio se anche fonoisolanti ed ecologiche.
La cucina
La disposizione del piano lavoro permette di cucinare spaziando con lo sguardo perché è addossata alla pannellatura esterna sormontata da infissi chiusi in basso e apribili a ribalta in alto. I moduli della cucina esistente sono riutilizzati; viene inoltre ampliato il piano lavoro su basi e realizzata un’armadiatura con forno, dispense e frigo-congelatore a due ante. Il piano colazione è plasmato ergonomicamente e in base alla superficie disponibile.
Arredi di produzione utilizzati nel progetto: poltrona da esterno CRINOLINE di B&B ITALIA, sistemi di illuminazione con binario LUMEN e LE PERROQUET di iGUZZINI Italia, sgabello AAS 33 di HAY
Clicca sulle immagini del progetto per vederle fullscreen

















































