Spostare la cucina: pianta e progetto in 3D

Cambiare funzione ai locali di casa: una soluzione proposta dal nostro architetto in risposta ad Anna M., la cui camera, era stata utilizzata come soggiorno, e ora deve diventare cucina.

Architetto Barbara Piccinno
A cura di Architetto Barbara Piccinno
Pubblicato il 16/07/2014Aggiornato il 10/01/2025
Spostare la cucina: pianta e progetto in 3D

Quesito di Anna M.: Nel mio appartamento l’entrata dava nel soggiorno ma io per comodità avevo preferito adibire quell’ambiente a cucina e quella che era una stanza da letto a salotto, dato che nella mansarda – ancora non abitabile – avevo molto spazio per ricavare in futuro due ampie camere e un bagno. Dopo alcuni anni, avere l’entrata direttamente in cucina ora non mi soddisfa più e mi piacerebbe poterla spostare nella camera da letto creando un ampio salotto all’ingresso. Tutti gli altri appartamenti, sia sotto sia a fianco, hanno la camera da letto dove io vorrei mettere la cucina; è possibile fare uno spostamento simile? Immagino di dover chiedere l’abitabilità anche per la mansarda?  

Clicca sulle immagini per vederle full screen

  • Picc-Stato-Di-Fatto
  • Picc-Stato-Di-Progetto
  • piccinno-render-vista-2
  • piccinno-render-vista-1
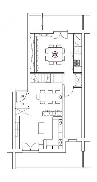
Stato di fatto

Picc-Stato-Di-Fatto

Progetto

Picc-Stato-Di-ProgettoAbbiamo cercato di fornire una soluzione alla esigenza espressa, invertendo come richiesto la posizione della cucina e del soggiorno. Nel nostro progetto il locale che ospita la cucina è abbastanza ampio da contenere sei moduli su una parete, una credenza lungo la parete opposta e un ampio tavolo da pranzo da otto posti nel centro. Per realizzare gli allacci dell’acqua e del gas riducendo le tracce nei muri si può prevedere una controparete, retrostante i moduli, che contenga le tubature necessarie. La controparete non deve essere necessariamente alta quanto il locale, ma è sufficiente che sia alta quanto il piano della cucina; la profondità addizionale della controparete può essere nascosta da mensole a scomparsa. L’altro locale, più ampio, è stato organizzato suddividendo lo spazio in ingresso, ampio soggiorno e zona studio (eventualmente utilizzabile, prevedendo una tavolo estendibile, per consumare i pasti come alternativa alla cucina). La porta di accesso all’appartamento è fronteggiata da un armadio guardaroba, che scherma parzialmente il soggiorno rispetto all’ingresso; soggiorno e zona studio sono invece separati da un arredo costituito da un mobile basso e una libreria, che scherma senza separare eccessivamente, permettendo al contempo alla luce naturale di raggiungere la zona studio. Parte dello spazio del sottoscala potrebbe essere sfruttato per ospitare dei ripiani, oppure delle cassettiere. Per la mansarda, l’abitabilità bisogna sempre averla; i requisiti necessari cambiano a seconda dei comuni.  

piccinno-render-vista-1 piccinno-render-vista-2

Iscriviti alla nostra newsletter

Riceverai una volta alla settimana una mail con i più significativi articoli del nostro sito divisi per categoria. Riempi il form col tuo indirizzo mail e sarai automaticamente iscritto alla newsletter.
Come valuti questo articolo?
12345
Valutazione: 4 / 5, basato su 1 voti.
Avvicina il cursore alla stella corrispondente al punteggio che vuoi attribuire; quando le vedrai tutte evidenziate, clicca!
A Cose di Casa interessa la tua opinione!
Scrivi una mail a info@cosedicasa.com per dirci quali argomenti ti interessano di più o compila il form!