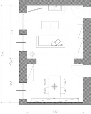
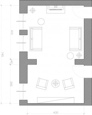
Vi proponiamo due soluzioni per il soggiorno di uno stabile anni ’30, di forma rettangolare, strutturalmente composto da due ambienti comunicanti con soffitti di altezza superiore a 270 cm e da un camino posto al centro della parete del vano più grande. Si è scelto di sfruttare la naturale separazione degli ambienti, distinguendo la zona pranzo da quella living (pianta A). In alternativa, se non si desidera inserire la zona pranzo nel living, si può sfruttare lo spazio in modo da avere un soggiorno incentrato unicamente sulla convivialità e il relax (pianta B). In entrambi i casi è stato scelto un arredamento moderno di colore bianco messo in risalto da pareti rifinite a stucco con calce traspirante sui toni del grigio-beige, caratterizzato da sfumature tono su tono. Questa tecnica decorativa risulta poi perfetta nell’ambiente d’epoca, con parquet posato a spina di pesce, di gusto classico, elegante e da qualche tempo di nuovo di tendenza. Il punto di riferimento per il progetto d’arredo è il camino, che posto in posizione centrale influisce molto sulla disposizione di mobili e complementi.
L’ambiente più piccolo, di dimensioni 430 x 295 cm, è arredato con pochi elementi d’arredo sistemati in punti strategici. Innanzi tutto il tavolo viene sistemato centralmente rispetto alla parete più corta e allineato in modo che tutti i commensali possono rivolgere lo sguardo verso il linea delle sedie, da scegliere quindi “particolari”, dal design unico, accattivante. Per arredare la parete si è scelto di utilizzare due contenitori pensili con ante scorrevoli, in modo poter sfruttare al meglio lo spazio per il tavolo. Nell’angolo dopo la finestra trova posto una madia, scelta per richiamare uno stile classico ma con elementi geometrici moderni. Sopra la zona pranzo, una scenografica sospensione con sfere trasparenti e riflettenti.
Nel secondo ambiente, di misura 430 x 410 cm, è sistemato un divano a tre posti in posizione non perfettamente centrale ma ottimale sia rispetto al focolare che alla posizione dell’apparecchio tv, collocato su un base in appoggio a lato della struttura del camino. Il lieve decentramento del divano consente inoltre di posizionare, sulla parete a fianco della porta, una doppia libreria composta da semplici moduli sfalsati tra loro. al posto di un tradizionale tavolino, di fronte al divano due pouf possono essere utilizzati anche come piani di appoggio. Sulla parete con il camino, un piccolo controsoffitto alloggia quattro faretti ad incasso di tipo Led. Oltre ad una base contenitore con anta ribalta, in cui prevedere apparecchi e accessori hi-fi, sono sistemate due mensole in cartongesso di differente lunghezza con spessore 6/8 cm che si integrano integrarsi gradevolmente con il volume del camino. Sul lato opposto invece, essendoci l’ingombro della porta, è possibile appendere uno o più quadri, valorizzati dalla luce puntata ad hoc proveniente dai faretti del controsoffitto (vedi prospettiva dall’alto).
La soluzione alternativa è molto minimal, caratterizzata da una grande libreria composta da vani giorno e contenitori chiusi, posizionata centralmente sulla parete dell’ambiente più piccolo. Davanti sono posizionate due poltrone da lettura con schienale alto e forma sinuosa rivolte verso il camino. La zona conversazione invece è delineata da due divani gemelli posti uno di fronte all’altro, con camino protagonista centrale.
Progetto: architetto Donatella Ciriaco – https://www.studiodag.it/











































