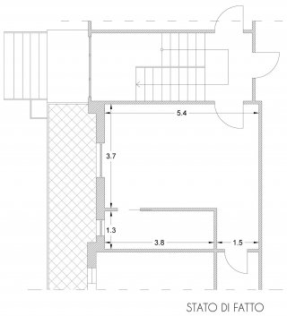
Cucina separata o a vista? Spesso si cerca una soluzione intermedia: una zona cottura aperta sul salotto, ma in parte schermata, defilata, specie se l’ingresso di casa dà proprio sulla zona giorno. Ecco il progetto che il nostro esperto ha preparato per la richiesta della nostra lettrice Maria U., che desidera aprire la sua cucina sulla zona giorno lasciandola eventualmente separata da un muretto.
- Progetto dell’architetto Stefano Gatti – Bellagio, Como – stefano@stefanogatti.eu
I lavori di ristrutturazione offrono spesso l’occasione per ripensare in una diversa prospettiva agli spazi nei quali siamo abituati a vivere quotidianamente. Nel caso particolare la lettrice esprime la necessità di riorganizzare la zona giorno del proprio appartamento, formata da un’area soggiorno e da una piccola cucina non abitabile ricavata sulla parete contrapposta a quella d’ingresso. Le dimensioni ridotte e lo sviluppo planimetrie del locale non consentono di poter ricavare una cucina abitabile separata dalla zona giorno: inoltre ripristinare questa separazione tramite una nuova parete in cartongesso, non farebbe che ridurre e limitare lo spazio a disposizione.
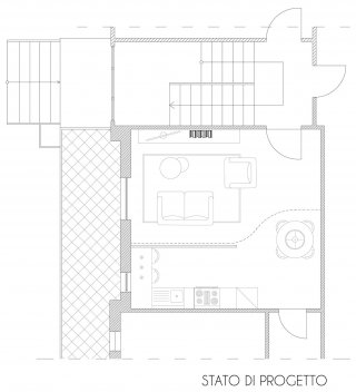
Si è pensato perciò di ricavare un unico locale formato dal soggiorno e da un angolo cottura posizionato sulla medesima parete che già in precedenza ospitava i mobili della cucina: in questo modo non saranno necessari interventi sugli impianti, poiché potranno essere utilizzati i vecchi attacchi di acqua e gas. Inoltre la piccola finestra a un battente consente di dare luce diretta ad un piccolo piano da lavoro che può essere utilizzato o per consumare un pasto veloce o la prima colazione. Tuttavia si è deciso di mantenere una definizione degli spazi evidenziando la zona cucina pranzo tramite un disegno del controsoffitto e mascherando il piano della cucina tramite l’installazione di una parete semitrasparente costituita da un telaio metallico e da tondini in ferro: ai tondini è stato dato un colore rosso in grado di trasformare la parete divisoria in un elemento d’arredo, una quinta scenografica per la zona conversazione. L’accostamento di toni vivaci, come il rosso del divisorio, e di colori neutri come il grigio dei divani e dei mobili della cucina dona all’ambiente un aspetto vivace ed al contempo elegante. È utile ricordare che, prima di realizzare un controsoffitto, è necessario verificare il regolamento edilizio del proprio Comune o il regolamento l’igiene della propria zona, in modo tale da rispettare le altezze minime indicate. Nel comune di Milano per esempio per il locale soggiorno è prescritta un’altezza minima di 270 cm: tuttavia ribassamenti dovuti esclusivamente ad esigenze impiantistiche non si computano ai fini del calcolo dell’altezza media di un locale, purché la loro proiezione in pianta non occupi una superficie superiore ad 1/3 del locale stesso.
Clicca sulle immagini per vederle full screen




















































