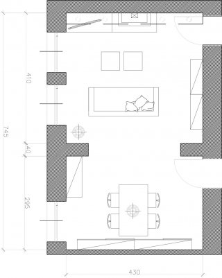
Arredare in modo contemporaneo un appartamento anni ’30 con uno spazio dedicato alla stufa da trasformare in caminetto. Alla richiesta della nostra lettrice Loreta ha risposto l’architetto Donatella Ciriaco – https://www.studiodag.it. Il living dell’abitazione, situata in uno stabile anni ‘30, ha forma rettangolare, strutturalmente composto da due ambienti comunicanti con soffitti di altezza superiore a 270 cm e con un camino posto al centro della parete del vano più grande. Si è scelto di sfruttare la naturale separazione degli ambienti, distinguendo la zona pranzo da quella living (piantina sol. A). In alternativa, se non interessa avere la zona pranzo, si può sfruttare lo spazio in modo da avere un soggiorno incentrato unicamente sulla convivialità e il relax (piantina sol. B).
In entrambi i casi è stato scelto un arredamento moderno di colore bianco (con preferenza per le finiture laccate lucide), per le pareti stucco a calce traspirante sui toni del grigio-beige, caratterizzato da maculature e velature tono su tono. Questa finitura è indicata sia perché ideale per una casa d’epoca, ma anche perché contrasta e mette in evidenza i mobili dal design moderno. Il punto di riferimento è il camino, che posto in posizione centrale influisce molto sulla disposizione di mobili e complemti.
L’ambiente più piccolo, di dimensioni 430 x 295 cm, è arredato con pochi elementi d’arredo sistemati in punti strategici. Innanzi tutto il tavolo viene sistemato centralmente rispetto alla parete più corta e allineato in modo che tutti i commensali possono rivolgere lo sguardo verso il camino. La struttura del tavolo è in metallo, mentre il piano è di vetro. In questo modo l’impatto visivo è più contenuto, visto le dimensioni della stanza, inoltre la trasparenza mette in risalto la forma delle sedie (che devono quindi avere un design accattivante).
Per arredare la parete si è scelto di utilizzare due contenitori pensili con antine scorrevoli di dimensioni 180 x P 33x H 33 cm, in modo poter sfruttare al meglio lo spazio per il tavolo. Nell’angolo dopo la finestra trova posto una madia, scelta per richiamare uno stile classico ma con elementi geometrici moderni. Misura 130 x H 131x P 50 cm. Sopra il tavolo, una lampada a sospensione molto scenografica ma allo stesso tempo leggera in quanto formata da numerose sfere trasparenti e riflettenti.
Nel secondo ambiente, di misura 430 x 410 cm, è sistemato un divano a tre posti in posizione non perfettamente centrale, ma ottimale sia rispetto alla bocca del focolare che alla posizione dell’apparecchio TV , collocato su un base in appoggio a lato della struttura del camino. Il leggero decentramento del divano consente inoltre di posizionare, sulla parete a fianco la porta, una doppia libreria composta da semplici moduli sfalsati tra loro. Invece di un tavolino, di fronte al divano, ci sono due pouf che possono essere utilizzati anche come piani di appoggio.
Sulla parete che ospita il camino, viene realizzato un piccolo controsoffitto in cui sono alloggiati quattro faretti ad incasso di tipo Led. Sul lato sinistro rispetto al camino, oltre a una base contenitore con anta ribalta in cui alloggiare apparecchi e accessori di complemento alla TV, sono sistemate due mensole in cartongesso di differente lunghezza con spessore 6/8 cm, in modo da integrarsi gradevolmente con il volume del camino. Sul lato opposto, invece, essendoci l’ingombro della porta, è possibile appendere uno o più quadri, valorizzati dalla luce puntata ad hoc, proveniente dai faretti del controsoffitto (prospettiva dall’alto).
Arredi utilizzati nel progetto: • pensili: Slim • madia: Conghiglia • libreria: Zigzag di Lema • tavolo: Pulsar 140 di Target Point • sedie: Panton di Vitra • divano: Sense i Samoa • lampada: a sospensione Caboche di Foscarini • pur: Barcelona di Knoll
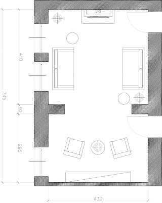
La soluzione alternativa invece (soluz. B) è molto minimal, caratterizzata da una grande libreria composta da vani giorno e contenitori chiusi (libreria: 505 di Molteni), posizionata centralmente sulla parete dell’ambiente più piccolo. Davanti sono posizionate due poltrone da lettura con schienale alto e forma sinuosa rivolte verso il camino (Mart di B&B Italia). La zona conversazione invece è delineata da due divani gemelli posti uno di fronte all’altro (Virtuose di Roche Bobois), dove il camino è il vero protagonista della stanza; un semplice volume lineare rivestito in pietra a focolare chiuso, al di sopra del quale viene installato il televisore.
Clicca sulle immagini per vederle full screen









































