Quesito di Piero G.: Il mio soggiorno, anche se abbastanza grande, non è semplicissimo da arredare. Ha una trave a vista che non giova all’estetica dell’ambiente. Vorrei che fosse pratico e funzionale, e valorizzarlo con l’arredamento e l’illuminazione più adeguati. Per le pareti mi piacerebbe una tonalità delicata di azzurro; le porte sono bianche.
Risponde l’architetto Ornella Musilli, https://www.libera-design.it
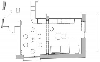
Lo spazio così come viene arredato e organizzato è un ambiente fluido che accoglie le diverse funzioni del soggiorno. Le zone sono al contempo divise dalla struttura esistente (pilastri e trave) ed unite da un’armadiatura con alternanza di “vuoti e pieni”. La zona pranzo è collocata adiacente alla cucina, il salotto sul fondo a contatto con l’infisso che apre sul terrazzo. L’elemento che unisce è costituito da una serie di moduli a tutta altezza (50×50 cm alla base) in legno che stabiliscono la continuità fra gli ambiti partendo dall’ingresso e attraversando tutto il locale e servono come contenitori a giorno o chiusi all’occorrenza.
Tre sono i punti dove l’uniformità è interrotta: nella zona d’angolo, in corrispondenza del pilastro e nella parte terminale a contatto con l’infisso esterno. Le interruzioni di modularità sono trattate con sottrazione di volume, ad esempio nell’angolo smussato che invita ad entrare ed è un espositore oppure sul fianco del modulo finale dove è stata ricavata una libreria con profondità ridotta; il sottofinestra è stato invece chiuso con ante scorrevoli.
L’elemento che divide senza chiudere è un portale che si innesta nell’armadiatura, prosegue in alto in orizzontale e scende lungo la parete opposta terminando in una penisola con piano d’appoggio. La trave ed i pilastri esistenti vengono utilizzati come spunto di variazione, le lamine di legno che li rivestono formano delle rientranze che ne danno a tratti la percezione di “assenza” più che di “presenza”.
La zona pranzo è servita da espositori, contenitori e cassetti inclusi nell’armadiatura; gli arredi mobili sono quelli essenziali: tavolo grande, sedie, lampada a sospensione. La parete rivestita con piastrelle in ceramica disegnate è disimpegnata per lasciare libertà di movimento intorno al tavolo. Il salotto è lo spazio più ampio: il portale e l’arredo fisso racchiudono l’area relax con divano ad angolo, tavolino e sgabello. Il divano ha di fronte la zona per apparecchiature tecnologiche; e qui c’è ancora spazio per aggiungere pouf e poltroncina. Per l’illuminazione: due sono i punti luce centrali (uno a sospensione sul tavolo da pranzo ed uno a soffitto nel salotto); sulle pareti libere ci sono delle applique.








































