Quesito di Giusi D.: Devo ristrutturare il bagno “principale” di circa 10 mq. La dimensione mi permette di sognare ma i preventivi mi fanno tornare con i piedi per terra. Il locale non è mai stato ristrutturato, risale a circa 30 anni fa con piastrelle al soffitto. Un muretto divide la zona lavabo dal resto. Vorrei togliere la vasca, tenendo solo un comodo box doccia, e cambiare i sanitari mettendo un doppio lavabo e una lavatrice con mobile coordinato, dato che è il mio unico bagno. O quest’ultimo dettaglio svalorizza l’ambiente?
- Risponde l’architetto Stefano Gatti – Bellagio, Como – stefano@stefanogatti.eu
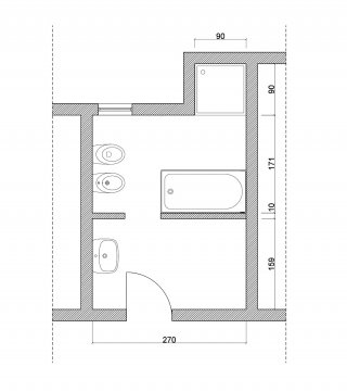
La necessità di rinnovare un bagno risalente agli anni ’80 che per stile e funzionalità non soddisfa più le esigenze dei proprietari dell’abitazione ha portato a ripensare alla ridistribuzione degli spazi e dei sanitari della stanza. L’esigenza alla base dei lavori di ristrutturazione è quella di eliminare la vasca da bagno, di avere un lavandino doppio e di ricavare uno spazio nel quale posizionare la lavatrice. Le ampie dimensioni del bagno, circa 10 mq, hanno permesso di trovare una risposta a queste esigenze suddividendo il locale in due zone distinte e ricollocando i sanitari in una diversa soluzione. Sono stati eliminati i muretti bassi che nascondevano la vasca da bagno e i sanitari ed al loro posto è stato ricavato un setto divisorio in cartongesso alto 220 cm (così possono filtrare aria e luce in alto). Questo intervento permette così di dividere il bagno in una zona nella quale sono presenti un piano in legno con due lavandini da appoggio ed una grande doccia ad angolo con piatto a filo pavimento e box doccia in cristallo. Passando attraverso l’apertura posta sulla destra della parete divisoria si raggiunge la seconda zona del bagno, dove sono stati collocati wc e bidet. La nicchia prima utilizzata per la doccia è stata chiusa con ante e trasformata in spazio lavanderia: è stato ricavato uno spazio da 60 cm per la lavatrice ed un altro più stretto nel quale riporre detersivi, stendipanni, ecc. Questa soluzione ha permesso di avere una zona lavanderia nel bagno senza per questo togliere “importanza” al locale. È stato creato un contrasto cromatico tra il rivestimento tra le piastrelle in gres effetto pietra della parete divisoria e della parte bassa dei muri perimetrali, la parte in intonaco bianco ed il pavimento in gres effetto legno dai toni caldi. In corrispondenza del passaggio tra le due zone è stato posizionato in diagonale un termoarredo dalla superficie piana quasi a simulare la presenza di una porta tra le due aree del bagno. La sua collocazione in diagonale permette di nascondere delle mensole che rimangono cosi parzialmente nascoste.
Clicca sulle immagini per vederle full screen















































