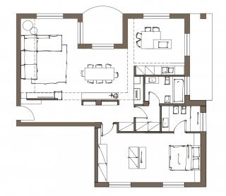
Quando i figli diventano grandi, la loro ex cameretta nella casa dei genitori può restare una stanza da letto per gli ospiti oppure essere sfruttata in altro modo per migliorare l’appartamento, in modo differente a seconda delle singole esigenze. I nostri lettori nelle loro lettere (elettroniche ovviamente) ce lo chiedono spesso. Vi proponiamo, a titolo di esempio, il progetto in 3D del nostro architetto Elisa Coffinardi, accompagnato da una planimetria dello stato di fatto (cioè la situazione dell’abitazione prima dei lavori) e da prospettive in 3D della trasformazione ideata. In questo caso il vincolo posto dai proprietari dell’appartamento era quello di riuscire a riutilizzare il divano e i mobili del soggiorno esistenti.
L’idea – nel progetto in 3D che vi presentiamo – è stata quella di trasformare la cameretta in cucina andando in questo modo ad ingrandire tutta la zona living.
Il soggiorno è rimasto nella posizione precedente ma è stata creata una quinta di ingresso che diventa la nuova parete tv, attraverso un gioco di geometrie e abbassamenti, andando anche a creare una mensola vicino alla porta d’entrata, comoda come svuotatasche, e una fioriera estetica.
Le pareti della vecchia cucina sono state interamente demolite ad eccezione di quella che separava il corridoio che è stato mantenuto come disimpegno. A causa della presenza di elementi strutturali. è stato reso più funzionale attraverso la creazione di nicchie.
Nella nuova zona ricavata tra l’attuale cucina e il soggiorno, dato che si tratta di uno spazio molto luminoso e vicino alla cucina, si è pensato di collocare la sala da pranzo, con un comodo tavolo per otto persone. La zona pranzo è stata valorizzata e resa ancora più accogliente e ospitale con la realizzazione di una parete camino con nicchie e faretti, soluzione resa possibile a seguito dello spostamento della porta del bagno di servizio. La cucina, parzialmente a vista, è stata studiata con una grande isola centrale con piano cottura e tavolo da 4 persone.
Clicca per vedere full screen le immagini del progetto in 3D


Clicca sulle immagini per vederle full screen











































