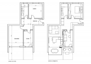
Ricavare uno spazio da dedicare esclusivamente al lavoro all’interno di casa con una comoda postazione home office, magari anche inserendo una poltrona o divanetto da lettura, che all’occorrenza diventi un posto letto aggiuntivo: questo progetto in 3D del nostro architetto Elisa Coffinardi ha puntato a non stravolgere (per questioni di budget) le murature e gli impianti esistenti e a ottimizzare gli spazi.
Trasferire la cucina nella zona soggiorno (sul lato opposto della parete rispetto alla posizione originaria per ridurre al minimo l’intervento impiantistico), permette di sfruttare il vecchio ambiente cucina come studio. La conformazione del piccolo porticato esterno ha permesso inoltre di andare a creare una veranda vetrata che dilata lo spazio del soggiorno e lo trasforma in un open space comodo e accogliente.
La zona giorno è quindi ora composta da una cucina a U con piano snack, un grande divano angolare e un tavolo da pranzo nella veranda. Un controsoffitto con veletta con gola led delimita e definisce visivamente le due zone funzionali.
Il disimpegno/ingresso è diventato parte della zona living grazie all’eliminazione della porta e vi è stato collocato un mobile libreria – contenitore, lasciando così il living libero da ulteriori ingombri; la tv è appesa a una controparete rivestita con il parquet del pavimento.
I toni scelti sono neutri con predominanza del bianco a parete; spiccano elementi più scuri a contrasto quali il top in cucina e il divano in soggiorno, il tutto ravvivato con un tocco di colore (rosso) degli sgabelli.
Clicca sulle immagini per vederle full screen








































