Aprire la cucina sul soggiorno o mantenerla come ambiente separato è una delle scelte più rilevanti nella progettazione degli interni contemporanei. Se da un lato la cucina a vista rappresenta una soluzione ormai largamente adottata – soprattutto da giovani, coppie e famiglie abituate a vivere lo spazio domestico in modo fluido e informale – dall’altro continua a suscitare qualche resistenza (leggi qui pro e contro della cucina a vista o separata), in particolare tra chi predilige un’impostazione più tradizionale, con ambienti ben distinti e funzioni separate.
Dal punto di vista progettuale, l’apertura della cucina verso la zona giorno consente di amplificare la percezione dello spazio, creare visuali più profonde e rendere l’ambiente più luminoso e relazionale. È una scelta che richiede attenzione all’organizzazione funzionale, alla gestione dei volumi e all’integrazione degli elementi tecnici ed estetici, ma che – se ben calibrata – può rappresentare una svolta significativa nella qualità dell’abitare quotidiano.
Altro tema sempre più frequente nella ristrutturazione di appartamenti risalenti a qualche decennio fa è l’esigenza di inserire un secondo bagno, anche di dimensioni ridotte, spesso richiesto sia per motivi pratici legati alla vita familiare, sia per offrire un servizio agli ospiti o inserirvi una zona lavanderia dedicata. Individuare la collocazione più efficiente di questo spazio aggiuntivo implica una lettura attenta della planimetria esistente, delle reti impiantistiche e delle possibilità di recupero di superfici residuali o sottoutilizzate.
Un interno ripensato con logica contemporanea
Il progetto che presentiamo come esempio riguarda la riorganizzazione funzionale di un ampio appartamento anni Settanta, in cui la distribuzione originale – cucina separata, soggiorno, sala da pranzo, due camere e un solo bagno – non rispondeva più alle esigenze attuali della committenza.
L’intervento ha previsto una ridistribuzione puntuale, mirata a migliorare la vivibilità senza stravolgere l’impianto esistente:
- apertura della cucina verso il soggiorno per ampliare le visuali e rendere la zona giorno più fluida;
- inserimento di un secondo bagno compatto ma completo, pensato anche come lavanderia;
- recupero di spazi inutilizzati attraverso arredi su misura e soluzioni intelligenti.
L’obiettivo? Restituire un’abitazione più funzionale, luminosa e accogliente, dove ogni ambiente è progettato per dialogare con gli altri, pur mantenendo identità e autonomia.
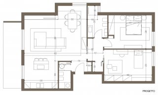
Pianta del prima: lo stato di fatto
Per ridurre al minimo gli interventi e contenere di conseguenza i costi, l’architetto Elisa Coffinardi ha affrontato il nuovo progetto, cercando di soddisfare le richieste menzionate, tenendo conto dell’impiantistica esistente nell’appartamento. Ha quindi deciso quindi di collocare la cucina a vista nella stessa posizione della precedente, aprendola però verso il soggiorno sul quale affaccia con’isola operativa attrezzata con piano a induzione e banco snack con sgabelli.
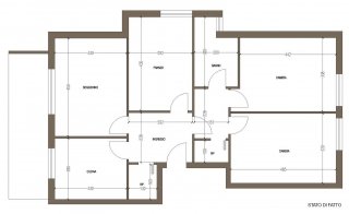
Pianta del progetto

Render 3D di come diventa la casa
I materiali e i colori scelti, delicati e chiari, dilatano visivamente lo spazio, beneficiando nel contempo del calore dato dal parquet in rovere chiaro, che ben si armonizza con tutte le tinte neutre, con il grigio del tessuto del divano e con la tinteggiatura a parete. Il bianco è stato utilizzato per i mobili della cucina e della base tv e di porte interne e serramenti.

La cucina sfrutta le posizioni di attacchi e scarichi dell’acqua preesistenti ed è pensata a “ponte”, con le due colonne laterali e la zona lavello/lavastoviglie centrale, i pensili molto capienti vanno fino al controsoffitto.
Accanto alla cucina a vista, con accesso dall’ingresso, si trova il nuovo piccolo bagno di servizio; l’antibagno è stato realizzato in vetro con porta scorrevole per enfatizzare lo spazio; contiene anche una zona lavanderia attrezzata sul fondo con mobile a tutta altezza con inserite lavatrice e asciugatrice. Questo ha permesso di poter riorganizzare il locale di servizio esistente come bagno privato esclusivo della zona notte.

L’ingresso è delimitato da un abbassamento con faretti ed accoglie in una nicchia ricavata da un ripostiglio preesistente, colorata a contrasto, un mobile contenitore comodo vicino all’entrata come svuotatasche.
La zona pranzo vicina alla grande nicchia in cui si trova la finestra è definita dall’inserimento di led a gola, utilizzato anche sul lato cucina, così da avere la sensazione della separazione delle varie funzioni anche senza pareti o tramezzi. L’illuminazione sul tavolo è affidata a una lampada da terra ad arco.

La tv è collocata frontalmente alla cucina su una parete rivestita con una carta da parati dai colori molto tenui e arredata semplicemente da basi; accanto, la zona pranzo con un comodo tavolo per sei persone e poltroncine imbottite accoglienti ed eleganti.











































