Quesito di Manuela: Abbiamo acquistato una casa su tre livelli (circa 30 metri a piano). Poiché nella precedente abitazione avevamo una zona giorno di 17 mq complessivi con cucina a vista e salotto di dimensioni ridotte, volevamo nella nuova dedicare il primo piano a un bel soggiorno con divani e grande tappeto. Siamo indecisi se adibire a cucina solo il piano terreno, quello quindi più vissuto, o replicare una zona cottura anche nel living al primo piano. Vorremmo un vostro suggerimento.
- Risponde l’architetto Ornella Musilli – https://www.libera-design.it
La proposta che accogliamo è la seconda, quella di tenere una cucina al piano terra e al primo livello, invece, ricavare un secondo spazio per la zona cottura con le necessarie predisposizioni impiantistiche. La regolarità del vano è interrotta da un tramezzo che delimita antibagno e bagno.
Ponendosi l’obiettivo di concretizzare l’idea di rendere lo spazio pluriuso, facendo coesistere funzioni fra loro eterogenee ma mantenendole separate, si ottiene:
- un soggiorno ampio con divano ad angolo, tappeto, poltrona, tavolino e parete attrezzata con base e pensili
- una seconda cucina, di estensione ridotta, con angolo cottura collocato lungo la parete indicata con attacchi degli impianti (la cucina più grande si trova al piano terra),
- un piano multiuso: scrivania/tavolo,
- un ambito più raccolto utilizzabile come studio e dotato di libreria
La cucina c’è ma risulta nascosta: la zona con lavello, piano lavoro e cottura, ha una schermatura a ribalta, quando è chiusa diventa estensione del soggiorno. Nell’armadiatura, collocata fra gli infissi esterni, c’è il frigorifero combinato da un lato e dall’altro il forno e la dispensa; gli elettrodomestici sono separati da una libreria. L’armadio ha profondità maggiore rispetto a quella standard, nel retro di frigo e libreria sono alloggiati gli elementi dell’impianto elettrico. Volendo all’occorrenza allestire una zona pranzo più ampia si può optare per una soluzione trasformabile: da piano snack a tavolo, in alternativa al tavolino del soggiorno.
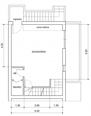
Pianta dello stato di fatto del primo piano
Progetto del primo piano








































