Quando si ristruttura e si modifica il layout distributivo di una casa, vi sono interventi che non si possono realizzare e altri per i quali bisogna preventivamente indagare per accertare l’eventuale fattibilità. Ad esempio, tra quelli che non si possono mettere in atto c’è sempre l’eliminazione di pilastri o di pareti portanti (a meno di rivolgersi a un ingegnere strutturista e di mettere in atto soluzioni particolari), di vecchi muri di spina e di quelli in cemento armato.
Per questi ultimi in particolare, anche una semplice modifica degli impianti, come lo spostamento di una presa e un interruttore, può rappresentare un problema cui occorre trovare soluzione.
Spesso, quindi, in situazioni in cui si presenti la necessità di interventi di questo genere, bisogna ricorrere a degli escamotage. Per esempio, nel caso del pilastro che crea ostacoli alla progettazione di un nuovo layout più razionale, in genere si ovvia con soluzioni che lo integrano nell’arredo.
Nel caso che vi osserviamo qui, le modifiche apportate internamente a un appartamento anni ’60 (progetto architetto Lisa Santin, studio S 2 ARCHITETTI di Milano, info@s2architetti.com), fra cui la demolizione del locale quadrato di entrata, richiederebbero per maggiore comodità di utilizzo, lo spostamento degli interruttori della luce e del citofono vicino all’ingresso. Il muro interessato, con pilastro portante e vano dell’ascensore adiacente, è però in cemento armato. Come procedere?
In questo caso la soluzione è stata la realizzazione di un armadio su misura, che pareggi anche le diverse sporgenze del muro e che “presti il fianco” per l’alloggiamento a vista di vari dispositivi (pannello comandi dell’antifurto, interruttori e citofono), tutti comodi vicini all’entrata. Dentro il mobile, inoltre, vengono nascosti alla vista diversi altri elementi, che pregiudicherebbero l’estetica dell’ambiente, come il quadro elettrico, il modem per il wi-fi, l’antifurto, il display delle termovalvole intelligenti per regolare la temperatura dei diversi radiatori di tutta la casa.
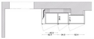
Per poter elettrificare il mobile, è stato creato un vano che serve come intercapedine in cui nascondere i cavi dell’impianto elettrico. Questi vi rimangono pertanto perfettamente celati grazie a un pannello di tamponamento interno, che scherma il solo vano alto e stretto, senza rubare spazio prezioso per riporre oggetti di diverso tipo.
Per quanto riguarda il pilastro, viene a sua volta completamente nascosto e integrato nel mobile, grazie alla scelta di moduli di diversa profondità e a un pannello esterno di tamponamento sul fianco destro, che copre sia la porzione di mobile sia il muro, così che non si ha più la percezione della presenza del pilastro.

È utile specificare che, parlando di mobile su misura, non si intende necessariamente un lavoro artigianale da richiedere a un falegname, perché alcune aziende che producono arredi a livello industriale (come nel caso in esame) sono in grado di fornire un adattamento sartoriale di librerie e armadi di produzione, appoggiandosi a rivenditori che si avvalgono di montatori esperti e qualificati.
Progetto per armadio Lema dello showroom Equilibri di Milano, Corso Sempione 21.











































