A volte la presenza di aperture (di porte o finestre) sui muri adiacenti rende difficoltoso arredare al meglio una parete. Il nostro lettore Armando, per esempio, ci ha chiesto un progetto “razionale” per inserire in soggiorno una parete attrezzata, funzionale, esteticamente bella ma poco profonda per la presenza, appunto, di finestre in prossimità dell’angolo. Vorrebbe avere una libreria che contenga oltre allo spazio per la tv anche un biocamino e moduli chiusi. Il nostro architetto, Donatella Ciriaco – https://www.studiodag.it ha preparato questa soluzione.
La libreria è stata pensata in modo che si possono evidenziare tre zone funzionali distinte: la parte centrale in cui è inserito un biocamino, la parte laterale destra attrezzata per ospitare la tv e eventuali apparecchi ad esso collegabili (Dvd, pc, decoder ecc.), la parte laterale a sinistra dedicata a contenere tutto il necessario per apparecchiare.
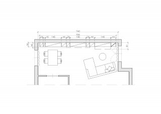
L’altezza utilizzata per la composizione è dettata dalla presenza del cassonetto della finestra che si trova in prossimità della parete da attrezzare, ma anche se non ci fosse questo impedimento, sarebbe comunque una altezza consigliabile; la libreria infatti supera i 7 metri di lunghezza e con un’altezza superiore apparirebbe troppo imponente, rendendo di conseguenza il soggiorno visivamente più piccolo e stretto.
I tre moduli principali, da 146 cm, sono affiancati da vani decisamente più piccoli con diverse larghezze: da un minimo di 16 cm a un massimo di 44 cm, in questo modo è facile trovare la configurazione più adatta per ogni esigenza. Inoltre grazie a questo gioco di volumi differenti, la composizione può avere dimensioni inferiori rispetto alla parete, che quindi le fa da cornice, valorizzandola. Funzionalmente poi, essendo nettamente distaccata dagli angoli, non si creano impedimenti all’apertura di finestre e/o portefinestre.
La libreria proposta ha una altezza di 230 cm ed è composta da moduli componibili con cinque differenti larghezze di profondità 36 cm. Un gioco di volumi in cui l’alternanza di vuoti e pieni crea una piacevole e armoniosa prospettiva, i vani infatti sono alternati da ante verticali con finitura color pietra e chiusure orizzontali in vetro o finitura laccata color bianco lucido.
In alternativa è anche possibile avere delle profondità maggiori, usando per alcuni elementi verticali di profondità 46 cm (per esempio nei moduli che contengono il biocamino), oppure per uno dei moduli base dei vani di ampiezza maggiore che possono avere profondità 60 cm (come ad esempio la base del vano Tv).
L’arredo di produzione utilizzato nel progetto – compreso il biocamino – è il sistema Pari & Dispari di Presotto.
Clicca sulle immagini per vederle full screen












































