Contenuti trattati
Non è una situazione frequente ma può capitare: all’unico bagno della casa si accede dalla camera, anch’essa l’unica. Come rendere più funzionale l’appartamento, soprattutto se devono abitarlo più persone o più semplicemente se un ospite deve utilizzarlo? Come rendere accessibile il bagno anche dal soggiorno?
Vediamo il caso proposto da un lettore, una casa dalla pianta molto irregolare, una camera singola per metratura* e con gli impianti della cucina lungo il muro a sinistra dell’ingresso.
Accesso al bagno: 5 ipotesi di progetto con diversa distribuzione
Si inverte la posizione di soggiorno e camera; si aggiunge un controsoffitto
L’ingresso al bagno avviene dal soggiorno, attraverso un essenziale spazio filtro. La camera da letto è stata riposizionata nella zona d’angolo dell’edificio ed ha l’entrata ad anta scorrevole curva e a scomparsa. Nel bagno è prevista una controparete ad altezza parziale per l’incasso dei sostegni di sanitari e lavabo sospesi.
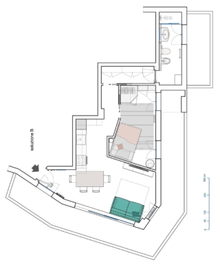
Si crea un disimpegno che collega bagno e soggiorno
In questa ipotesi progettuale la camera acquisisce una seconda portafinestra che affaccia sul balcone ed il soggiorno conserva le due finestre, di cui una molto ampia ad apertura scorrevole, e la portafinestra vicina al portoncino. Per raggiungere il bagno dal soggiorno viene realizzato un disimpegno che occupa parte dell’area perimetrale interna dell’appartamento.
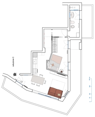
Oltre al disimpegno, in più anche un ripostiglio in quota
Rispetto alla versione precedente le entrate a camera e disimpegno sono diversamente posizionate ma è di nuovo presente lungo il corridoio un ripostiglio in quota formato da arredi pensili utili per riporre.
Il bagno cambia posizione (ammettendo che si possano spostare gli impianti), si guadagna una seconda doccia, la camera diventa matrimoniale
Questa soluzione e quella successiva presuppongono che sia possibile tecnicamente spostare gli impianti del bagno, oltre che sia ammessa l’ipotesi di una ristrutturazione. La camera da letto diventa doppia (ovvero acquisisce la metratura necessaria per legge per ospitare i letti di due persone) dispone di due ambiti, allestiti con armadi: uno si trova all’entrata della stanza ed uno nella zona stretta e lunga, dove viene installato oltre al guardaroba anche un box doccia. Il bagno è collocato in modo più central nella casa e vi si accede da un disimpegno attraverso una porta che è per metà scorrevole interno muro e per metà a battente.
Si aggiunge un secondo bagno, spostando la cucina che diventa anche più spaziosa e comoda
In questo ultimo caso, i bagni diventano due, sempre che sia possibile portare gli impianti dove serve per quest’ultima ipotesi di progetto: quello esistente resta dove si trovava, il secondo viene realizzato al posto della cucina che diventa più grande e vivibile.
* Si riportano di seguito alcune prescrizioni normative di carattere generale, poiché tali dati possono variare in base alla zona, per la verifica si consiglia di fare riferimento all’ufficio tecnico comunale:
- Le superfici minime ammesse sono per il soggiorno 14 mq, per la camera singola 9 mq, per la camera doppia 14 mq;
- Fra cucina e bagno deve essere previsto uno spazio filtro (anti-bagno);
- Almeno un bagno dell’appartamento deve essere dotato di finestra.
Confronta le planimetrie arredate dei 5 progetti
Alcune delle soluzioni d’arredo adatte a essere inserite nei progetti
- controtelaio per porta scorrevole curva a scomparsa, porta in laccato bianco o colorato, opaco o lucido, apertura 80 cm raggio 120 cm (camera soluzione A) – ORBITALE di SCRIGNO
- letto, una piazza e mezza, con contenitore alla base e testiera imbottita, tessuto beige, 140xp203xh110 cm (soluzioni A, B, C, E) – REBOOT di DORELAN
- armadio a due ante scorrevoli, struttura in legno chiaro ed ante in laccato bianco, 200xp66xh236 cm (soluzioni A, C) – PAX di IKEA
- poltroncina, in tecnopolimero e poliuretano imbottito e rivestito, bianco/grigio, 58×56,5xh85 cm (soluzione A) – CLAP di KARTELL
- mensole in legno chiaro, su misura (in camera da letto)
- tavolino rotondo in policarbonato trasparente, ∅48,5xh50 cm (in camera da letto) – TIP TOP di KARTELL
- radiatore verticale, bianco o colorato – SOHO di TUBES
- appendiabiti a parete, 60xh17xp10 cm – HANGER di KARTELL
- parete a specchio, su misura (all’entrata)
- portaombrelli, in polietilene tinto, grigio metallo, ∅37,5 h62,2 cm – ZONTIK di HORM CASAMANIA
- divano letto, in tessuto grigio chiaro, 182 (aperto 212) xp105xh84 (materasso 140×190) cm – URBAN di CALLIGARIS
- cucina, in laccato bianco con piano del tavolo e schienali degli elementi a giorno in legno chiaro – di SCAVOLINI
- basi porta tv, con cassetti (h36,7 cm) e pensili per il living, abbinate alla cucina, in laccato bianco con schienale in legno chiaro (soluzioni A, B, C, D) – di SCAVOLINI
- sedia, struttura in alluminio verniciato, sedile e schienale in polipropilene bianco, impilabile ed adatta anche ad uso esterno, 43×50,8xh46,5/80,5 cm – MYA di SCAVOLINI
- porta scorrevole, a scomparsa, telaio essenziale, senza stipiti e cornici coprifilo, apertura luce 70 e 80 altezza 200 cm (disponibile anche in versione fuori misura con altezze variabili al centimetro) in laccato opaco o lucido, bianco – ESSENTIAL di SCRIGNO
- porta scorrevole parzialmente a scomparsa (metà scorrevole e metà battente) – ARMONICO DI SCRIGNO
- composizione di armadio con elemento ad angolo, in laccato opaco bianco, p59,2 e 30,4 h 265 cm (soluzione B) – di DOIMO CITYLINE
- composizione di armadio, in laccato opaco bianco, h 265 cm – di DOIMO CITYLINE
- controtelaio per porta scorrevole a scomparsa parziale, la porta è per metà scorrevole e per metà a battente 80×210 cm (soluzione D) – ARMONICO di SCRIGNO
- piatto doccia su misura, h4 cm, in SILEXPOL (miscela di silice e quarzo), bordato su un lato o filo pavimento, finitura: ardesia nature bianco – SILEX di FIORA
- controparete in struttura metallica e cartongesso con sostegni per sanitari sospesi tipo DUOFIX di GEBERIT
- sanitari sospesi, in ceramica bianca, 54×36 cm – 4ALL di CERAMICA GLOBO
- lavabo su base sospesa, con due cassetti, ceramica e laccato bianchi – 80x48x50 cm (soluzioni B, C, E) – 4ALL di CERAMICA GLOBO
- lavabo consolle con contenitore alla base, ∅58 cm (secondo bagno soluzione E) – STARCK1 di DURAVIT
- lavabo da appoggio o sospeso, bianco, 75x40x15 cm (soluzioni A, D) – DISPLAY di CERAMICA GLOBO
- pensili alti (soluzioni B, C)
- scaldasalviette
- lampada da tavolo, in policarbonato trasparente, ∅21 h28 cm (camera) – PLANET di KARTELL
- lampada da tavolo, in vetro, ∅25 h24 cm (camera) – FADO di IKEA
- lampada a sospensione in policarbonato bianco lucido, ∅83 h55 cm (camera) – BIG FLY di KARTELL
- lampade a sospensione (L max 340 cm), ∅40, ∅30 e ∅22 cm (zona pranzo) – CHOUCHIN di FOSCARINI
- lampada a soffitto, bianca, ∅60 cm (ingresso, disimpegno) – CLARA di FLO
- faretti incassati nel controsoffitto
- sistema per tende steccate, a pacchetto con azionamento a catenella per installazione a soffitto, a parete, o direttamente sul serramento – di MOTTURA




















































