Una cameretta per tre figli, con tre letti preferibilmente fissi, tanto spazio per contenere, due scrivanie ed una libreria. Alla richiesta di un progetto da parte della nostra lettrice Mariateresa L. risponde uno dei nostri esperti, l’architetto Donatella Ciriaco, labD.interior – labdinterior.wordpress.com
Si può ipotizzare questo tipo di soluzione:
- I letti sono disposti sul lato destro della stanza: due lungo la parete e uno perpendicolare ad essa (il calorifero è situato sotto la finestra e su entrambi i lati lunghi della stanza sono presenti delle prese elettriche). Sono tutti dotati di ruote, quelle sul lato esterno hanno sempre un dispositivo bloccante, che si può inserire in modo molto semplice facendo una pressione con la punta del piede.
- Due sono fissi, nel senso che non devono essere mossi per essere utilizzati, il terzo invece deve essere necessariamente estratto. Il vantaggio è che quando non è utilizzato scompare sotto il letto più alto, permettendo di sfruttare i due ripiani estraibili o a ribalta che consentono di avere a disposizione una pratica scrivania che può ospitare anche due persone.
- I letti attrezzati a soppalco sono un’ottima soluzione per sfruttare lo spazio al meglio; ne esistono numerosi modelli con scrivanie incorporate estraibili o piani a ribalta.
- Per illuminare il piano di lavoro, si può pensare di utilizzare una lampada da tavolo a energia solare, come quelle proposte da Ikea. Hanno una autonomia di almeno tre ore, non hanno bisogno di presa elettrica e si possono riporre nel vano, una volta chiusa la scrivania.
- Due dei tre letti hanno un cassettone estraibile, che può essere a vano unico oppure diviso in due vani indipendenti. Può anche contenere se necessario un quarto letto.
- Il letto sul lato della finestra, che è attrezzato con un unico cassettone, ha ovviamente un’apertura limitata dall’ingombro della colonna posta di fronte, ma per essere aperto di più basterà spostare la struttura verso la finestra; per questo si consiglia di usarlo per riporre ad esempio vecchi giocattoli o biancheria stagionale.
- Lo spazio sopra è sfruttato con moduli contenitori ad ante battenti che possono essere attrezzati con ripiani oppure con appendiabiti. Ci sono inoltre tre colonne gemelle di dimensioni 47x59xH260, con cassetti e ripiani in modo che ciascun figlio abbia il proprio spazio personale.
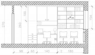
- Sul lato opposto, subito dopo l’ingombro della porta, si può mettere una colonna sempre con cassetti e ripiani di dimensioni 60x59xH260 cm; subito dopo si affianca una scrivania di 140 cm/160 cm al massimo, sopra di essa una mensola e un modulo contenitore a ponte, di 140 cm di larghezza per H 100 cm.
- Infine a destra verso la finestra, dove lo spazio si riduce ad una profondità di 30 cm, trova posto un modulo libreria di tipo sospeso. Ha dimensioni 180 x H 154 cm ed è diviso in tre settori con cinque ripiani in modo che ognuno dei ragazzi abbia il proprio spazio dedicato per i propri libri e materiale scolastico.
- Sotto la libreria si possono disporre le sedie girevoli su ruote in modo che la stanza sia sfruttabile anche per giocare liberamente. In alternativa può diventare tutto uno spazio libreria; una sedia rimane accostata alla scrivania, ma la seconda ed eventualmente anche la terza, rimangono “in giro” per la stanza.
- Viste le misure della camera, l’arredo su entrambi i lati tenderà a renderla ancora più rettangolare e stretta, per ovviare a questo inconveniente si consiglia di dipingere le pareti più corte di un colore scuro (nel caso la stanza sia ben illuminata dalla luce esterna) in modo da ingannare l’occhio e rendere la stanza più proporzionata.
- Inoltre preferire finiture chiare e uniformi per l’armadiatura, giocando con il colore solo con i letti, le mensole e la libreria.
- Per distinguere gli spazi di ogni ragazzo, si può scegliere il colore preferito di ognuno e utilizzarlo anche sulle maniglie, in modo che ognuno identifichi immediatamente l’area a lui dedicata.
Clicca sulle immagini per vederle full screen

















































