Quando la cucina si sviluppa su una parete sola, anche se magari è dotata di una penisola, può servire altro spazio per contenere. È la richiesta di Arianna, che nel suo comodo soggiorno-cucina vuole ricavare un vano in cui mettere provviste e magari anche gli attrezzi per pulire. Il nostro esperto, l’architetto Ornella Musilli – https://www.libera-design.it, ha preparato per lei questo progetto.
Il ripostiglio/dispensa è ricavato sfruttando parte del corridoio. La zona notte è divisa in due: ognuna ha camera, bagno e piccolo disimpegno con rientranza attrezzata, le camere conservano la superficie dello stato di fatto e sono entrambe doppie.
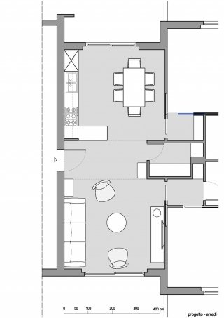
Per creare il ripostiglio-dispensa è stato ricavato un nuovo volume che sporge per 75 cm nella zona giorno, con controsofitto in cartongesso, che contribuisce a definire l’ambito di ingresso all’appartamento. La parete di chiusura e la porta raso-muro del ripostiglio sono rivestite con carta da parati d’effetto e sono illuminate da lampade a led incassate nel controsoffitto.
Il living è uno spazio fluido: nella zona centrale affacciano tutte le aperture agli ambienti, ai due lati dell’ingresso ci sono il soggiorno e la cucina con area pranzo. Il soggiorno è arredato con divano, poltrone, tavolino, credenza e tv a parete, la cucina è a L, con penisola e armadio frigo-congelatore a doppia anta nella parte terminale. Le pareti della zona pranzo sono rivestite in legno.
Prodotti utilizzati nel progetto: porta a battente Rasomuro di Lualdi, porta scorrevole Essenzial di Scrigno, carta da parati Graffitisme di Wall & Decò; tavolo Mirto, sedia Metropolitan e poltrona Grande Papilio di B&B Italia, panca Pathos e credenza Alcor di Maxalto; sospensioni serie Beat Light di Tom Dixon e lampada da tavolo Atollo di Oluce.










































