Quesito di Flora M.: Ho bisogno di disporre di una terza camera. Vorrei liberare l’attuale cucina (per destinarla a camera) e prevedere la zona cottura e pranzo nell’ambiente oggi destinato ad ingresso-soggiorno.
scala 1:100

Risponde l’architetto Barbara Piccinno dello studio Patetta – https://www.studiopatetta.wix.com/studio
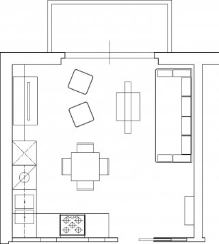
La metratura minima sufficiente per adibire una stanza a camera per una persona è di 9 mq, per cui la cucina può cambiare destinazione d’uso. Per creare la nuova zona giorno si è preferito “chiudere” il locale costruendo una parete così che cucina e soggiorno non risultino in comunicazione con l’ingresso. Questo permette soprattutto di guadagnare una parete di appoggio in più per distribuire basi e pensili della zona operativa. Per poter dare luminosità al corridoio-ingresso sono stati studiati due tagli di luce nella parete in modo da illuminare con luce naturale anche questo spazio di entrata e di passaggio. L’utilizzo di una porta in vetro permette poi di amplificare il risultato. La porta, vicina alla stufa, è stata prevista scorrevole per portare via il minor spazio possibile.
Il soggiorno è stato diviso in due ambienti: una cucina-pranzo e una zona conversazione con divani, mobili contenitori e tv. Per ottenere un effetto omogeneo l’arredo è giocato su due-tre tonalità di colore, che si alternano con un risultato più movimentato. Il frigo è utilizzato come elemento di divisione tra le due zone. Tra le due aperture sulla parete dell’ingresso è stato posizionato un pensile a giorno bicolore, coordinato a quelli del living, mentre nella zona operativa sono stati previsti pensili su due file sovrapposte.











































