Contenuti trattati
Una delle prime decisioni da prendere quando si deve ristrutturare casa è quella che riguarda il tenere separati o uniti soggiorno e cucina.
Nel primo caso, fumi e odori di cottura restano circoscritti alla zona cottura, penalizzando però lo stare insieme con gli ospiti mentre si cucina e le dimensioni del locale.
Nel secondo invece si privilegiano la convivialità e la luminosità dell’ambiente, c’è più spazio, ma gli odori e i rumori della cucina (quello della cappa e della lavastoviglie per esempio) si sentono anche in soggiorno, disturbando la conversazione o l’ascolto (più che la visione) della tv.
Vediamo un esempio concreto proposto del lettore Mario M, che ha più di altri una giusta motivazione a unire soggiorno e cucina: quella di riportare alla sua interezza una decorazione a pavimento, divisa con i lavori da precedenti proprietari. Ecco dunque come ristrutturare e arredare la zona giorno, realizzando anche un camino nell’angolo del soggiorno.
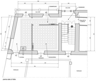
La zona giorno – che originariamente era stato un unico ambiente – era già stata divisa in soggiorno, cucina separata e corridoio (che riceve luce naturale da un affaccio tripartito, caratteristica che contribuisce a svelare l’inserimento della casa in un tessuto urbano storico).
Il bellissimo pavimento risalente ai primi del ‘900 – formato da piastrelle decorate in pastina di cemento delle dimensioni 20 x 20 x 1,8 centimetri – deve essere conservato, sia perché piacevolmente decorativo e in linea con le attuali tendenze, sia perché evoca ricordi di famiglia nel proprietario.
In origine, nell’unico luminoso vano, le piastrelle quadrate accostate formavano un tappeto con cornice, a motivi geometrici fitti e con colori dal contrasto marcato.
Nello stato di fatto la superficie utile è così divisa:
- ingresso – 3,76 mq
- disimpegno – 5,14 mq
- soggiorno – 17,49 mq
- cucina – 14,60 mq
L’ipotesi è di mantenere il divisorio fra cucina e soggiorno, ampliando l’apertura di collegamento (installando un controtelaio per porta scorrevole a due ante, a scomparsa in unico cassonetto) e aprendo una finestra interna tra living e zona operativa, anch’essa con ante scorrevoli in vetro (vedi sotto prospetto d-d).
Al vivace pavimento esistente è affiancato un arredo attuale dalle forme lineari e dai colori neutri. Il camino è frontale con focolare chiuso ed è rivestito con materiali ignifughi.
Superfici utili – progetto A
INGRESSO – 3,68 mq
SOGGIORNO – 22,85 mq
CUCINA – 14,60 mq
Soggiorno e cucina open space, eliminati tutti i divisori – Progetti B e C
Soluzione B
Con isola centrale che integra il tavolo da pranzo; divano piccolo con due poltroncine
Demolire i divisori precedentemente costruiti e riportare l’ambiente al suo originario assetto permette di valorizzare al massimo la pavimentazione, non interrompendo il decoro e riportando a vista nella sua interezza il tappeto in piastrelle d’epoca. Enorme vantaggio si ha anche dal fatto che la stanza risulti così illuminata dalla luce naturale di ben 4 finestre.
La cucina è allestita prevalentemente lungo la parete di fondo e dove sono presenti le predisposizioni impiantistiche.
La zona pranzo si integra nella cucina: il tavolo è addossato all’isola nella soluzione.
Il camino è ad angolo: nella soluzione B è minimale e sospeso.
Superfici utili – progetto B (come progetto C)
- INGRESSO – 3,76 mq
- LIVING – 38,00 mq
Soluzione C
Più spazio libero al centro con la penisola-tavolo; divano più grande
Anche nella soluzione C, la luce proveniente dai vari infissi esterni fluisce all’interno dell’open space grazie all’eliminazione di tutti i divisori.
In questa soluzione il tavolo si appoggia alla base ribassata in cucina, di fianco alla colonna forno che prevede anche il microonde.
Il camino – sempre d’angolo – è inserito in una composizione fissa, da realizzare su misura, che comprende oltre al rivestimento del monoblocco fino al soffitto, un ampio ripiano con scomparti e porta legna alla base.
Superfici utili – progetti C, come nel B
- INGRESSO – 3,76 mq
- LIVING – 38,00 mq
Quali prodotti scegliere
Nel progetto A: controtelaio per due porte scorrevoli in vetro, in un unico cassonetto, a scomparsa, collegate tra loro da un sistema di trascinamento, telaio senza stipiti e cornici coprifilo, i pannelli sono in vetro trasparente (Essential Dual di Scrigno)
Nei progetti A e C: camino a legna versione frontale e ad angolo, monoblocco, con possibilità di canalizzare aria calda e trasportarla in più stanze (un modello di MCZ); rivestimento con materiali ignifughi
Progetti soggiorno e cucina
- Una quinta per dividere soggiorno e cucina e far sembrare gli spazi più grandi
- Unire soggiorno e cucina: un progetto in 3D con altri tre vantaggi
- Soggiorno e cucina open space: ma quale finitura scegliere per i mobili?
- Dividere soggiorno e cucina con le porte scorrevoli
- Soggiorno e cucina in un unico ambiente: progetto d’arredo in 3D
















































