Siamo alla ricerca di una soluzione funzionale per il nostro salotto… Come sistemare il divano, la tv e il tavolo da pranzo, e soprattutto le luci, perché il tutto sia funzionale? Quesito di Roberta B.
Risponde l’architetto Stefano Gatti – Bellagio, Como – stefano@stefanogatti.eu
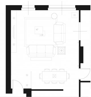
La soluzione più razionale per la collocazione degli arredi all’interno di questo locale è sicuramente quella di utilizzare l’area in prossimità delle finestre come zona living e di collocare in questa posizione divani e poltrone. Dando le spalle ala grande porta scorrevole della cucina, il divano è rivolto verso la parete libera alla quale sarà addossato un mobile basso sul quale sarà posizionata la televisione. Al di sopra del mobile verranno fissate alla parete delle mensole utili per appoggiare libri, soprammobili, ecc…

Il tavolo da pranzo sarà tra la porta d’ingresso e quella che conduce al disimpegno: per separare la zona pranzo dalla zona dell’ingresso si è pensato di utilizzare un telaio all’interno del quale posizionare una lastra metallica tagliata a laser: questa soluzione permette di dividere le due aree ed allo stesso tempo, grazie alla superficie metallica forata, di non appesantire la stanza con un setto in muratura o cartongesso. Sulla lamiera decorata possono anche essere appesi dei ganci attaccapanni ai quali appendere giacche e soprabiti una volta entrati nell’appartamento.
Per aumentare visivamente le dimensioni dell’area ingresso è stato appoggiato un grosso specchio alla parete di destra. L’illuminazione è stata studiata in modo da poter illuminare separatamente le varie aree del soggiorno a seconda che siano utilizzate o meno. In prossimità dell’ingresso sono stati posti faretti a plafone, così come vicino al mobile che ospita la tv. I faretti sopra la televisione saranno dimmerabili per poter regolare l’intensità della luce quando il televisore è acceso. La zona pranzo è invece illuminata da un lampadario a soffitto posto in corrispondenza del centro del tavolo. Un’illuminazione generale e diffusa è data da alcune applique fissate alla parete alle spalle del divano e da una lampada a terra (collegata ad una presa comandata) posta nell’angolo accanto alla porta-finestra. Questa soluzione consente di suddividere il soggiorno in diverse zone caratterizzate da un diverso tipo di luce e di creare così diverse scenografie luminose a seconda dell’occasione.











































