
Ecco un progetto in 3D del nostro architetto Elisa Coffinardi, che punta sulla nuova grande parete scorrevole vetrata a tutta altezza, in metallo nero, per creare l’atmosfera desiderata, rafforzata dal richiamo cromatico della medesima finitura scelta per altri elementi, come le sospensioni della zona pranzo, e soprattutto il rivestimento del pilastro e della parete della cucina in mattoni bianchi. I toni scelti per tessile e arredi vertono tutti sulla scala di grigi o sui toni neutri.
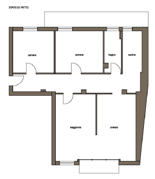
La vecchia cucina stretta e lunga è stata eliminata e la nuova inserita in un ambiente unico open space. Ricavate due camere da letto, di cui una con cabina armadio e bagno, un bagno di servizio ed una piccola lavanderia.
La pianta della casa è stata organizzata sulla base dell’orientamento dei locali: partendo dal presupposto che alcuni ambienti affacciano sulla corte interna e sono pertanto più silenziosi e tranquilli, mentre gli altri affacciano su una via di transito molto rumorosa, le camere sono state mantenute pressoché nella posizione originaria. Il bagno principale viene previsto laddove era posizionata precedentemente la cucina e, adiacente, è stato creato il secondo servizio, con accesso esclusivo dalla camera matrimoniale. Entrambi i bagni hanno quindi ora aeroilluminazione naturale.
La cabina armadio, comoda e spaziosa, si trova nella parte più interna, così come la lavanderia, cui si accede dal bagno principale. Il lungo corridoio preesistente viene ridotto al solo spazio di accesso alle camere, aprendosi poi lo spazio nel grande living.
Per questione di impianti, si è deciso di collocare la parete attrezzata con la cucina sul fondo ed è stato creato un piccolo ripostiglio laterale. La cucina è separata dal soggiorno tramite una grande vetrata stile industriale a tutta altezza, elemento caratterizzante di tutta l’abitazione; è composta da una parte fissa con integrato un piano snack ed una parte con ante scorrevoli.
In questo modo la luce naturale delle finestre illumina la cucina, ma questa all’occorrenza può anche esse chiusa e isolata, per evitare il passaggio dei fumi di cottura e degli odori.
Il divano a centro stanza è rivolto verso la parete attrezzata con basi e pensili che ospita la tv. Il tavolo da pranzo, nello spazio prima occupato dal corridoio, è illuminato da tre lampade che richiamano lo stile industriale della vetrata, così come il rivestimento del pilastro e della parete della cucina in mattoni bianchi. La zona pranzo è definita da un controsoffitto in cartongesso.
Clicca sulle immagini per vederle full screen











































