Da cucina a seconda camera

Posso trasformare la cucina in una seconda stanza da letto? Quesito di Raffaella C.

Redazione
A cura di “La Redazione”
Pubblicato il 05/08/2013Aggiornato il 05/08/2013
Da cucina a seconda camera

Ho un bilocale di 55 mq con cucina separata e vorrei sapere se è possibile ricavare dalla cucina una camera in più, per mia figlia. Si può fare?
Quesito di Raffaella C.

Model

Risponde l’architetto Marco Zuttioni – Studio MODOURBANO Architettura, Milano – https://www.modourbano.it

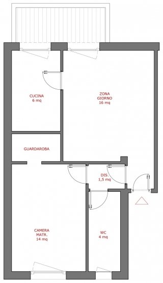
ModelLa soluzione progettuale per l’ottenimento di una seconda camera prevede delle modifiche sostanziali dell’intero appartamento. Viene mantenuta la posizione esistente del bagno per evitare problematiche legate allo spostamento di scarichi e pendenze relative. Viene invece eliminato il locale cucina, a favore della nuova camera singola, per optare per un angolo cottura direttamente in sala e inoltre si prevede l’eliminazione del disimpegno. Il bagno verrà comunque disimpegnato attraverso la suddivisione dello spazio attuale dedicato, posizionando nell’antibagno il lavabo.

Per suddividere gli ambienti principali (camera matrimoniale, camera e soggiorno) si è optato per un elemento diagonale che rende più dinamico lo spazio stesso e al contempo permette di ottenere le metrature minime e i rapporti aeroilluminanti adeguati. Per dare enfasi al nuovo muro divisorio il materiale del pavimento viene portato anche in verticale a formare una sorta di boiserie in legno con le aperture complanari (filo muro). Il pilastro esistente viene infine prolungato verso la muratura principale a creare un piccolo ingresso riservato, diventando al contempo la spalla su cui impostare il mobile giorno/cucina.

ricavare-seconda-camera-1ricavare-seconda-camera-2

Iscriviti alla nostra newsletter

Riceverai una volta alla settimana una mail con i più significativi articoli del nostro sito divisi per categoria. Riempi il form col tuo indirizzo mail e sarai automaticamente iscritto alla newsletter.
Come valuti questo articolo?
12345
Valutazione: 2.33 / 5, basato su 3 voti.
Avvicina il cursore alla stella corrispondente al punteggio che vuoi attribuire; quando le vedrai tutte evidenziate, clicca!
A Cose di Casa interessa la tua opinione!
Scrivi una mail a info@cosedicasa.com per dirci quali argomenti ti interessano di più o compila il form!