Spesso la presenza di porte e finestre nella stanza rende più difficile la progettazione dell’arredo. Soprattutto quando le aperture sono su ogni parete. Ecco il progetto, realizzato dall’architetto Donatella Ciriaco – https://www.studiodag.it – per il nostro lettore Frank.
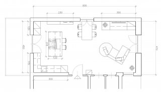
La forma rettangolare dell’ambiente e la presenza di finestre o porte su tutte e quattro le pareti suggeriscono di dividere la stanza in tre zone operative distinte. Entrando a sinistra si sviluppa la cucina con isola centrale, al centro in corrispondenza alla finestra trova posto il tavolo da pranzo. Infine sul lato destro, la zona living composta da un divano componibile di forma sinuosa e una parete attrezzata con basi sospese e pensili a vasistas che incorporano la tv appesa alla parete.
La cucina è organizzata in modo tale che le zone operative e gli elettrodomestici non sono visibili nel momento in cui si accede alla stanza. Altezza delle colonne è di cm 219, basi e pensili con gola (quindi privi di maniglie), finitura in polimerico bianco, mentre i due top e fianchi dell’ isola sono in Okite color tortora. La zona operativa a forma di “L “Inizia con una colonna a uso dispensa, seguono in ordine: una base con cestoni, la lavastoviglie, la base lavello ad angolo e due basi con anta, di cui una su misura. Dopo la portafinestra trova posto una colonna a uso ripostiglio (in cui riporre scope, scaletta, prodotti per la pulizia della casa ecc.) e una con frigorifero ad incasso. In alternativa, si può scegliere un freestanding con doppia anta, più capiente. Sulla parete a lato delle colonne sono disposte due lunghe mensole, sfalsate una sopra l’altra. Quella inferiore è sistemata poco sopra il calorifero.
L’isola è sistemata al centro in corrispondenza della portafinestra, attrezzata con delle basi su entrambi i lati: le basi verso il lato soggiorno sono ridotte di profondità. In questo modo il piano di lavoro può essere sfruttato anche per usare il piano come appoggio per la prima colazione o per un pranzo veloce. Essendo l’isola più alta rispetto al piano di un tavolo, è necessario prevedere degli sgabelli. Le basi sono delimitate da un top e da due fianconi di spessore 4 cm che ne delineano la struttura. La parte di isola rivolta verso la finestra è attrezzata con una base centrale che contiene il forno, ai lati due cestelli estraibili, affiancati da una base con quattro cassetti e una base con due cestoni.
Il piano cottura posto al centro ha di fronte a sé una cappa filtrante di tipo estraibile per basi. Il volume, oltre alla sua funzione aspirante, una volta azionato, permette anche di riparare da eventuali schizzi mentre si cucina proteggendo chi è seduto dal lato opposto. Il piano cottura suggerito in questo progetto è di tipo elettrico ad induzione. Sopra il piano cottura, invece della cappa si suggerisce di posizionare un lampadario moderno, di dimensioni e potenza tale da illuminare correttamente sia l’ambiente cucina, sia la zona pranzo collocata poco più in là in prossimità della finestra. Se invece si preferisce la tradizione, si può scegliere una cappa d’arredo che sia anche esteticamente molto accattivante e che si integri con il resto dell’arredamento della stanza. Il tavolo da pranzo è in cristallo con struttura in alluminio, di tipo allungabile. Il suo aspetto leggero e riflettente rende piacevole la sua presenza senza creare una barriera ingombrante tra la cucina e il soggiorno. Le sedie hanno anch’esse struttura in alluminio e rivestimento in cuoio bianco.
Il divano è sistemato a 45 gradi in modo da spezzare la linearità della disposizione degli arredi, rendendo la zona living più accattivante e fruibile. Si è scelto per la finitura il colore bianco, in modo da limitare visivamente il suo ingombro e integrarlo al meglio con il resto degli arredi. Lo stesso, per il mobile tv: le basi sospese e i pensili richiamano lo stesso colore scelto per le finiture della cucina.
Arredi a cui il progetto fa riferimento: modello cucina Open di Scavolini, cappa per basi Adagio di Elica, mobile soggiorno 36e8 di Lago, divano Evans di Ditre Italia, tavolo Label di Bontempi.
Clicca sulle immagini per vederle full screen
Stato di fatto

Stato di progetto
Pianta della sola cucina















































